'Kijk maar eens naar de plattegrond van een willekeurig appartementencomplex. Je ziet dat die gebouwen vaak een kernontsluiting hebben waar die woningen in groepen omheen liggen. Hierdoor is de afstand tussen de kern en de gevel vrij groot en moet je een vrij lange gang maken die je in zo’n appartement helemaal niet nodig hebt.'
Zucht. Veel architecten weten dit al lang, maar krijgen tegenwoordig de kans niet om te tonen dat het anders kan. Genoeg ontwikkelaars en wooncorporaties hebben de plattegrond al ‘helemaal uitgedacht’ en vragen architecten alleen nog voor de gevel en de entree. Een gegeven waar de vakgemeenschap overigens haar handjes voor in elkaar mag knijpen, waarschuwt Henk Hartzema in de podcast Over Architectuur Gesproken.
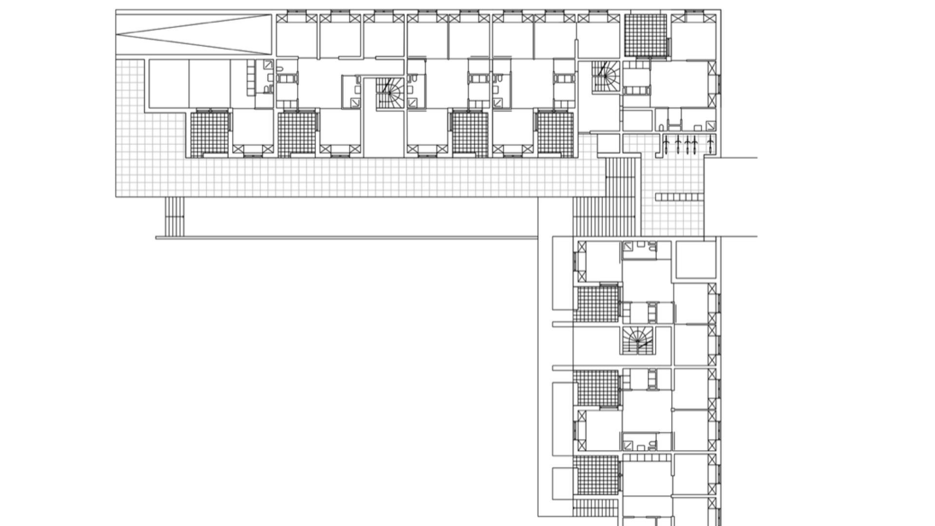
Gelukkig buigt architect Gus Tielens zich voor de Architect regelmatig over een fantastische plattegrond waarin de meerwaarde van de architect zich manifesteert. Dit keer kwam ze op de proppen met een sociaal woongebouw in Dijon door de Franse architect Sophie Delhay. De woningplattegrond is gebaseerd op een modulesysteem van gelijkwaardige ruimtes van dertien vierkante meter.
Ook de hal is zo’n ruimte. En dat is volgens Tielens een gouden vondst: ‘Als de hal een beetje maat heeft, kan het van alles zijn, ook een eetkamer voor een eindeloos diner met vrienden. Helaas is in Nederland de hal naar de achtergrond geraakt. We noemen het een verkeersruimte die uit efficiëntie is verworden tot een smal gangetje waar je elkaar nauwelijks kunt passeren.’
Misschien moet ik Kuipers en Tielens maar een keer aan elkaar voorstellen.
Lees alle must-reads van deze week en luister de podcast met Henk Hartzema!
Groet, Merel
PS Daan Bruggink heeft even uitgerekend wat dat eigenlijk allemaal aan CO2-uitstoot kost bomen op de veertiende verdieping









