Ten zuiden van de snelweg tussen Antwerpen en Gent ligt de begraafplaats Heimolen in Sint-Niklaas. Hoge bomen en schuine oevers omsluiten de locatie aan drie zijden, waardoor deze nauwelijks zichtbaar is vanaf de snelweg. Op de bestaande begraafplaats heeft KAAN Architecten een receptiegebouw en een crematorium gerealiseerd.
Opsplitsing programma
Vanuit de omgeving bestond een sterke weerstand tegen de komst van het crematorium. Daarom is besloten om de verbrandingsovens in een apart gebouw onder te brengen. Zo ontstaat een duidelijke scheiding in het programma tussen de ceremonie- en de crematieruimtes.
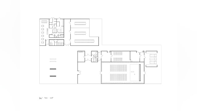
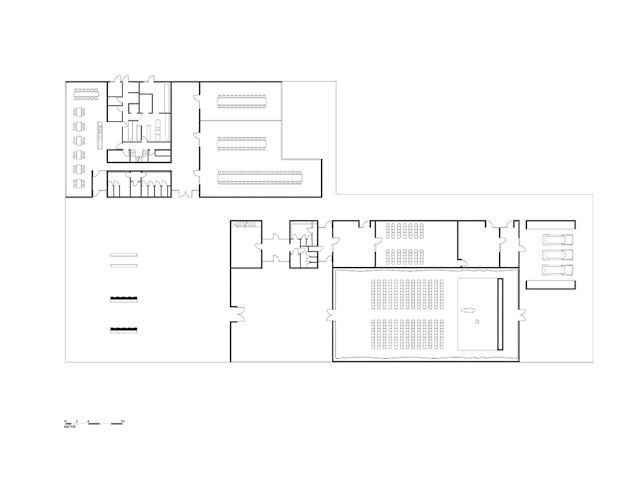
In de zuidwestelijke hoek van de begraafplaats ligt het ontvangstgebouw met de foyer, aula's en het restaurant. Aan de noordelijke zijde bevindt zich het vrijstaande crematoriumgebouw. Deze twee gebouwen zijn door middel van een schuine as, die over de begraafplaats loopt, met elkaar verbonden.

Ontvangstgebouw
Uitgangspunt voor het ontvangstgebouw is een groot dak waaronder de verschillende volumes van het programma zijn ondergebracht. Zo kunnen de functies van elkaar worden gescheiden, terwijl wel toch een herkenbaar gebaar ontstaat. Daartussen bevinden zich overdekte buitenruimtes, die functioneren als een overdekt plein.
NIEUW: Monografie Architectuur
In deze digitale monografie vind je naast een selectie van de belangrijkste gebouwen van KAAN Architecten, een inleiding op het werk en een interview. Circa 60 pagina’s inspiratie! Lees meer en bestel >
Vanuit de foyer hebben bezoekers toegang tot de twee aula's. Deze zijn volledig naar binnen gericht met koepels in het plafond, die de ruimte volledig verlichten. Deze versterken het idee van introspectie.
In de dakstructuur, met een hoogte van 2 meter, is een dubbele verdieping ondergebracht voor extra programmaonderdelen en de technische infrastructuur. Het plafond is afgewerkt met pleisterwerk in een lichte steenkleur.

Crematoriumgebouw
Waar het ontvangstgebouw zich kenmerkt door het overkoepelende dak, is het crematoriumgebouw juist op een grote betonnen plaat gepositioneerd. Daarmee is het gebouw naar de hemel gericht.
De gevel kenmerkt zich door vierkante prefab elementen, waarvan sommige zich openen. Binnen ontstaat zo een spannend spel van licht. Gedurende de dag krijgt de ovenruimte zo telkens een andere uitstraling.
Hier zijn drie ovens achter elkaar opgesteld. Deze zijn volledig wit afgewerkt en de installaties zijn onder de vloer weggewerkt. In deze serene ruimte kunnen de familieleden op een rustige manier de kist in de oven plaatsen.

Lees verder

















































