Toelichting Mecanoo | Beeld Stijn Poelstra
De stad Ede ligt in het hart van Nederland, heeft bijna 120.000 inwoners en staat bekend om de nabijheid van het Nationaal Park Veluwe, een 55 vierkante kilometer groot natuurgebied met heidevelden, zandduinen en bossen.
In 2008 hebben ProRail en de gemeente Ede besloten om het treinstation Ede-Wageningen uit te breiden, gezien de geplande vastgoedontwikkeling in de buurt. Naar verwachting zal het aantal passagiers toenemen tot ongeveer 25.000 per dag in 2030. Het nieuwe stationsontwerp zou uitgebreidere diensten, functionaliteit en veiligheid voor passagiers bieden, en duurzaamheid in het ontwerp.

Als meest iconische element van het ontwerp van het station, bootst het houten dak een boomkruin na. Het heeft een visuele eenvoud en verfijning, verbindt de verschillende kwadranten van het transportknooppunt op uniforme wijze en zorgt voor oriëntatie van alle kanten. Het dak bestaat uit 23 houten driehoeken, elk 27 meter lang. Bijna elk knooppunt en elke kolom is in een andere richting gericht, draagt een aanzienlijke krachtbelasting terwijl de architectonische ambitie behouden blijft. De driehoekige dakramen laten daglicht op het perron vallen en leiden passagiers naar de voetgangerstunnel.
Geïnspireerd door het lokale Veluwse landschap, maken het gebruik van complementaire natuurlijke materialen zoals hout, steen, glas en staal, samen met de robuuste architectonische details, het ontwerp niet alleen duurzaam maar ook tijdloos, waardoor een gevoel van natuur in het treinstation zelf wordt gebracht.
Naast mooi design stond functionaliteit ook centraal in de gezamenlijke aanpak van de bureaus. Het team verbond alle elementen van de passagiersreis door intuïtieve ruimtelijke bewegwijzering in de ontwerpen te integreren en mensen in staat te stellen zich snel en gemakkelijk te verplaatsen. Door de omgeving van het station te omarmen, was het mogelijk om een echt gevoel van plaats te creëren vanaf het moment dat passagiers uit een trein stappen.

Binnen de ontwerpen moest het team ook rekening houden met specifieke ecologische overwegingen. Er werden aanpassingen gedaan om een onderstation op zijn plaats te houden dat als vleermuizengrot kon dienen, samen met geoptimaliseerde verlichting. Eumodicogryllus Bordigalensis, een zeldzame krekelssoort die alleen op spoorrails leeft, werd ook ondergebracht - zij vormden het startpunt van het landschapsontwerp langs de sporen, om ervoor te zorgen dat hun leefgebied behouden bleef.
Comfort en veiligheid staan voorop
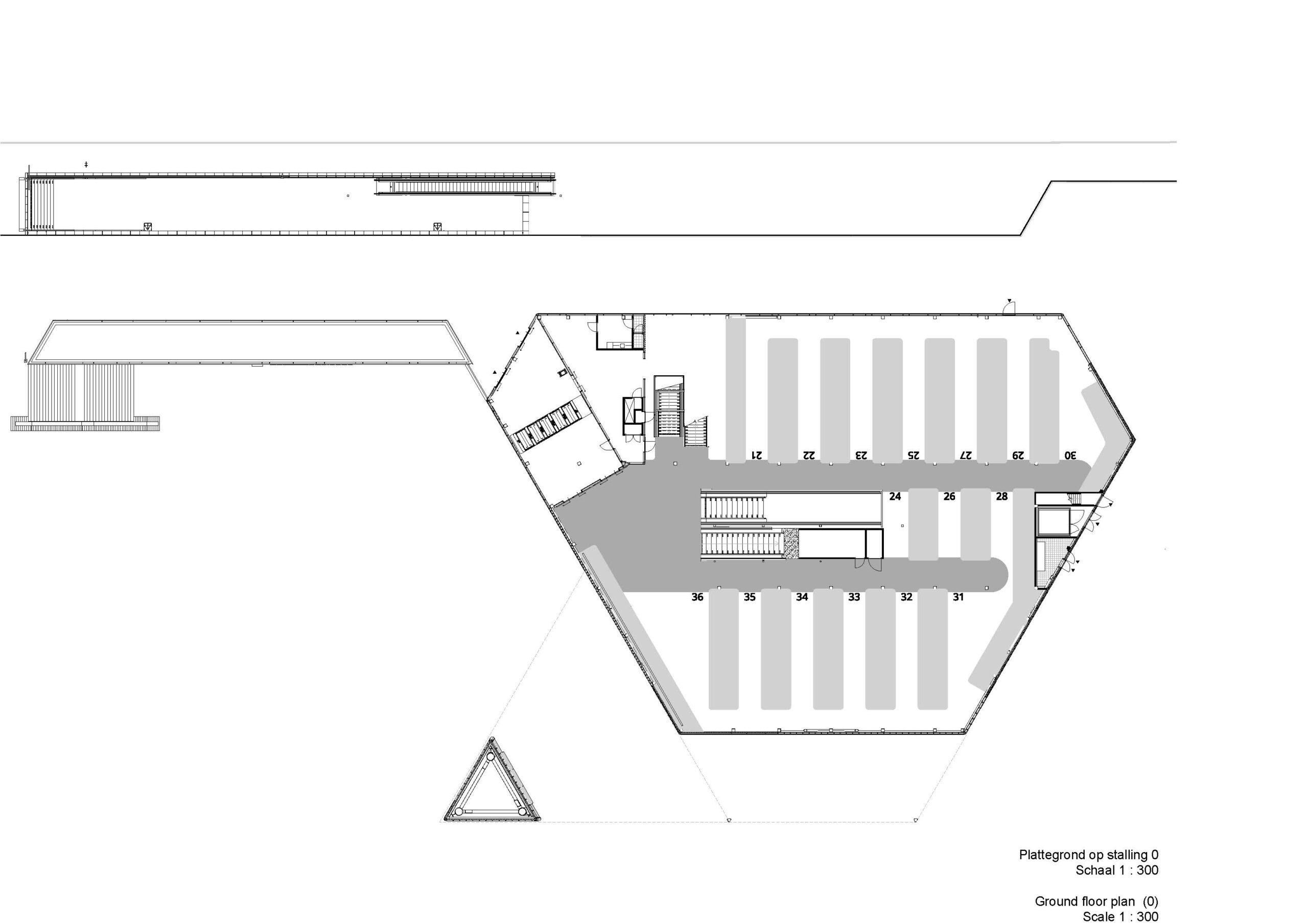
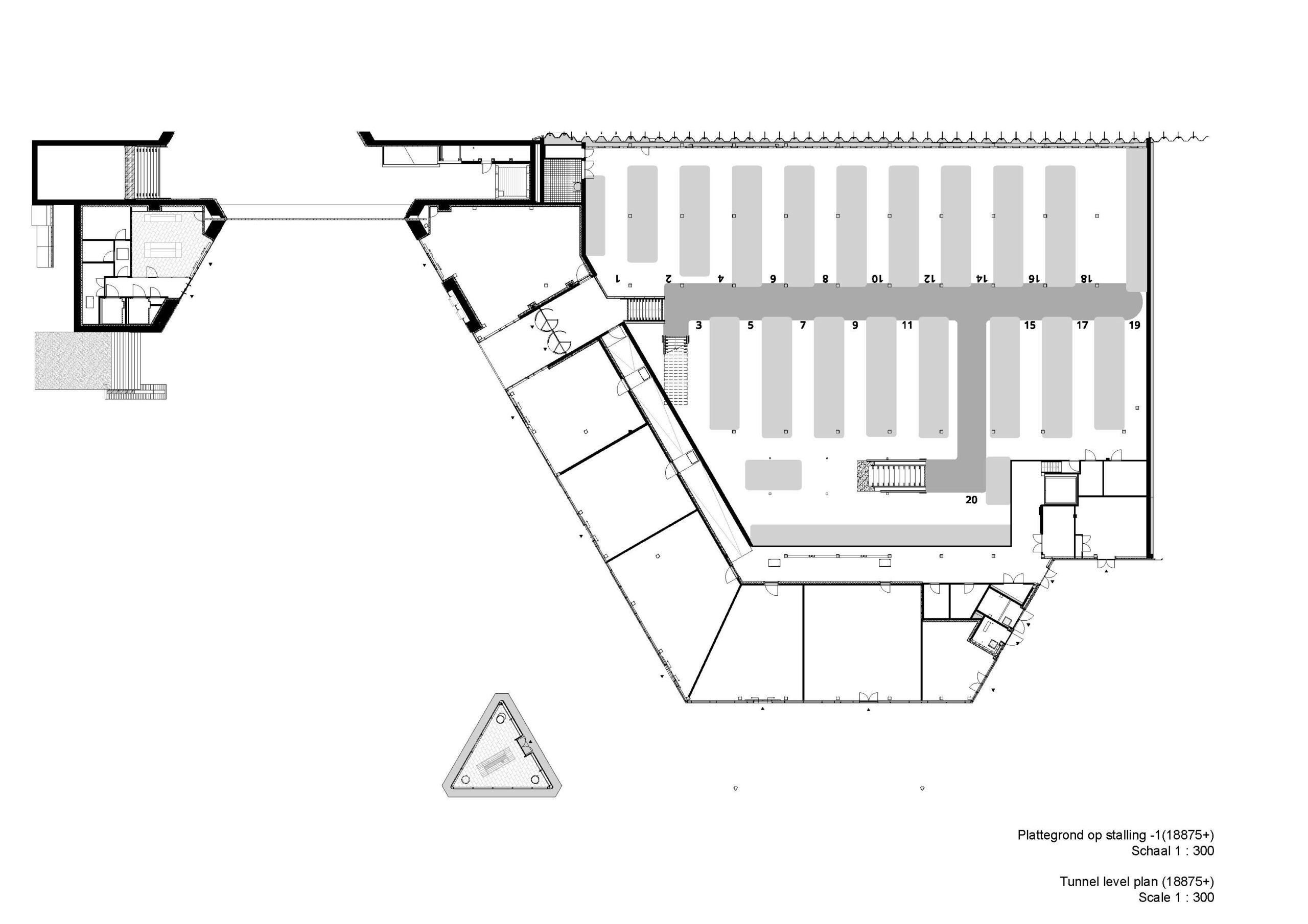
Het station is ontworpen voor de veiligheid en het comfort van reizigers. Winkelunits bevinden zich bij de zuidelijke ingang van de voetgangerstunnel die toegang geeft tot de perrons, en vanaf de perrons zelf zijn alle vervoerswijzen te zien: het stationsplein, busplein, afzetzone, taxistandplaats en fietsenstalling. Een grote overdekte fietsenstalling is geïntegreerd in het ontwerp en biedt plaats aan maximaal 5.500 fietsen, samen met een voetgangers- en fietsbrug ten oosten van het station - die een ongeëvenaard uitzicht biedt op de Veluwe. Door de slimme indeling van functies kunnen forenzen eenvoudig overstappen tussen verschillende vervoerswijzen, waardoor Ede-Wageningen een echt groen vervoersknooppunt is.
2026
Het nieuwe station is al open voor reizigers. De ontwikkeling van de parkeergarage en de landschappelijke inpassing, plus een nieuwe voetgangers- en fietstunnel tussen Ede en Wageningen onder het spoor, is momenteel in aanbouw en zal naar verwachting in 2026 voltooid zijn. Samen zullen de ontwerpen het treinstation Ede-Wageningen op de kaart zetten en zijn positie als toegangspoort tot het Nationaal Park Veluwe verstevigen.





























































