Toelichting door Powerhouse Company - In 2016 heeft Powerhouse Company, in samenwerking met RED Company, de prijsvraag voor het 11.600 vierkante meter tellende EMEA-hoofdkantoor van ASICS gewonnen. Het ontwerp kenmerkt zich door haar elegantie en helderheid. De overstekken benadrukken de horizontale lijn in de gevel en beschermen tegelijkertijd de werkvloeren tegen direct zonlicht. Een diepe uitsparing met ASICS-logo markeert de hoofdentree.

De horizontale overstekken van de verdieping en de centrale positie van de entree zorgen voor een symmetrische compositie. Dit wordt onderbroken door een vide aan de ene zijde en een uitsparing met een groen terras aan de andere zijde.

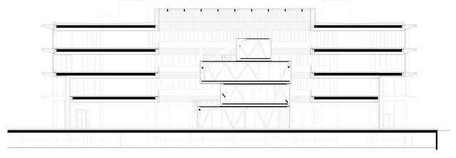
Verbindend atrium
In navolging van de palazzo-traditie vormt het atrium zowel de symbolische als de fysieke kern van het gebouw. Het atrium verruimt de functie van een conventionele kantoorlobby door de informele kwaliteit van een ontmoetingsruimte te combineren met de grandeur van een tentoonstellingsruimte. Deze ruimte met glazen dak wordt aan vier zijden omringd door de balkons van de werkvloeren.
Een speels trappenstelsel verbindt de verschillende verdiepingen met elkaar en breekt de horizontale continuïteit van de vloeren. De prominente positionering van de trappen en de transparantie in het gebouw zorgen voor een dynamiek. Dat stimuleert de interactie tussen medewerkers en nodigt hen uit om te bewegen.

ASICS World
In het hart van het atrium ligt 'ASICS World', een vierlaagse, driedimensionale showcase met een tentoonstelling van alle merken. Powerhouse Company ontwierp een speelse compositie van op elkaar gestapelde blokken. Hiermee vormt de showcase de belangrijkste visuele referentie naar het merk ASICS. Tevens dient het als een multifunctionele ruimte die geschikt is voor informele activiteiten.

Op de begane grond, rondom 'ASICS World', biedt het gebouw een scala aan functies. Zo zijn hier een restaurant, Power Health Bar, de ASICS fitnessruimte en een ASICS winkel gevestigd.

Toekomstbestendig en welzijn
Het ontwerp van Powerhouse Company kenmerkt zich door een efficiënte en flexibele indeling. De verdiepingshoge ramen zorgen voor veel daglicht en bieden een panoramisch uitzicht over de Stelling van Amsterdam. Op elke verdieping zorgen uitsparingen in de gevel voor speciale buitenruimtes waarmee een vloeiend spel tussen binnen en buiten ontstaat.
Het nieuwe hoofdkantoor heeft een WELL Gold- en LEED Gold-certificering. In het ontwerp van het gebouw wordt rekening gehouden met de omgeving door energie en water te besparen en de CO2-uitstoot te verminderen. Daarnaast waarborgt het ontwerp het welzijn van werknemers door een gezond binnenklimaat en een comfortabele werkomgeving te creëren.
Hoofdkantoor ASICS EMEA in Hoofddorp is ontworpen door Powerhouse Company. CBRE voorzag ASICS van strategisch advies in het gehele traject. Powerhouse Company en CBRE waren in co-creatie verantwoordelijk voor het interieurontwerp. RED Company leidde de ontwikkeling van het nieuwe hoofdkantoor.
Bekijk ook













































