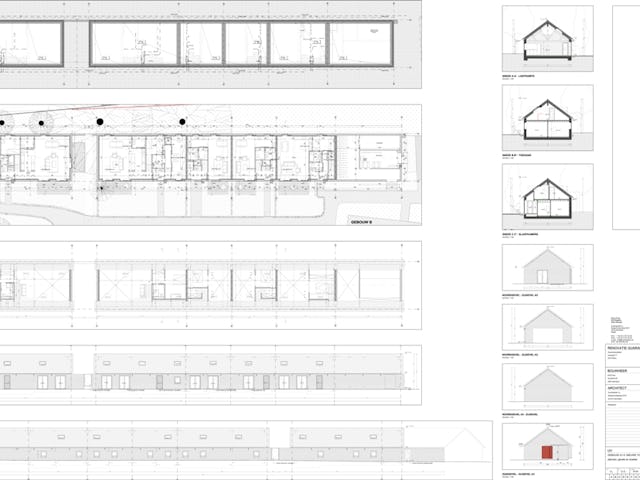
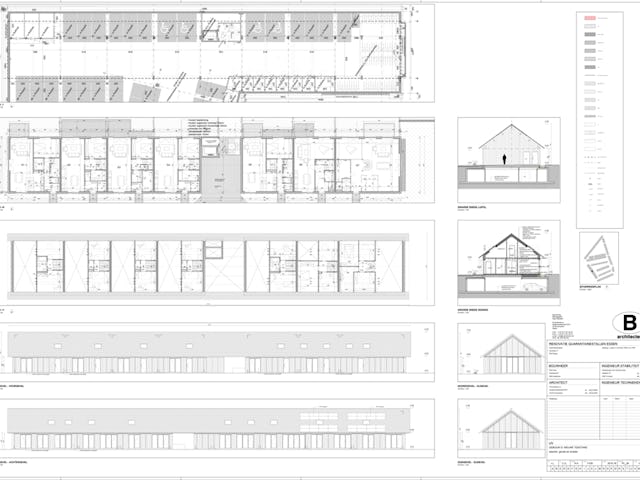
Toelichting B-architecten - De quarantainestallen, een beschermd monument in een natuur- en landbouwgebied in Essen, werden getransformeerd tot een ecologisch cohousing project Qville. De oorspronkelijke volumes van deze historische site werden hersteld en verdwenen gebouwen werden herbouwd.

Qville
Het domein van 1,7 ha telt 44 bijna energieneutrale woningen, zoals woningen met 1 tot 4 slaapkamers en intergenerationele woningen. Elke woning heeft haar eigen privétuin en terras. De gemeenschappelijke ruimtes bevatten een binnenzwembad, een wellnessruimte, een gemeenschapscentrum met flexwerkplekken en een overdekt terras met zwemvijver. De bewoners hebben toegang tot autodeellocaties en laadpalen voor zonne-energie.

Verkeersvrij
In het commerciële gedeelte aan de voorzijde van het terrein bevinden zich een pub en B&B voor toeristen. Bij de ingang is er een expositieruimte met informatie en meer verklarende historische details over de site. De grote ondergrondse garage en de nodige fietsenstallingen ondersteunen het autovrije karakter van de site.


























































