In binnen- en buitenland wint de bibliotheek aan populariteit als onderdeel van de sociale infrastructuur van een stad. Tegenwoordig spreek je er af in de skybar, ga je er heen om rustig te werken in een van de studieruimten of juist om een film te pakken in de bioscoop. Tegen het decor van boeken is een huiskamer van de stad ontstaan waar een nieuw publiek op afkomt. De combinatie van een bibliotheek met andere sociale functies en een opvallende architectuur speelt een belangrijke rol bij deze aantrekkingskracht.1
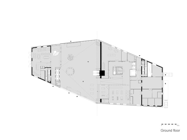
Dat geldt zeker voor Forum Groningen dat onlangs in het centrum van de Hanzestad is verrezen. Dit complex draagt zelfs niet de naam bibliotheek, maar is volgens directeur Dirk Nijdam een “cultuurgebouw waar je ook een boek kan lenen”. Naast de 95.000 boeken vind je er vijf bioscoopzalen, twee expozalen, de VVV, een auditorium, driehonderd studieplekken, een museum, verschillende horecagelegenheden en een skybar. Ondergronds is bovendien een vijflaagse parkeergarage met 382 parkeerplaatsen gerealiseerd.
Dat zorgt voor een rijke mix aan functies onder één dak. Boeken staan verspreid door het hele gebouw en zijn gecombineerd met andere programmaonderdelen, waardoor de onderlinge grenzen vervagen. Bezoekers rollen van de ene in de andere wereld. Overal staan ontmoeting en interactie voorop. Dat zorgt voor een inspirerende omgeving waar de diverse functies elkaar versterken.
Ontwikkeling Grote Markt oostzijde
Forum Groningen maakt onderdeel uit van een groter ontwikkelingsplan dat het oostelijke deel van de binnenstad terug op de kaart moet zetten. Door de oostelijke rooilijn van de Grote Markt zeventien meter naar voren te leggen, krijgt dit plein weer dezelfde afmeting als voor de Tweede Wereldoorlog. Achter de nieuwe oostwand is, mede door de sloop van een oude parkeergarage, ruimte ontstaan voor een plein met een cultureel gebouw.
Voor het ontwerp van deze nieuwbouw schreef de gemeente in 2006 een prijsvraag uit.2 Deze werd gewonnen door NL Architects. In de jaren die volgden, kampte het project met een aantal tegenslagen. Door de crisis ging in 2009 Bureau Bouwkunde, dat verantwoordelijk was voor de detaillering en aansturing, failliet. ABT nam vervolgens naast de rol van constructief adviseur ook de bouwkundige uitwerking en coördinerende taken op zich. Twee jaar later dreigde de provincie om de toegezegde subsidie in te trekken, wat na een onderzoek door een commissie onder leiding van Jan Terlouw uiteindelijk niet doorging.
En in 2015 bleek het gebouw volgens nieuwe conceptrichtlijnen niet aardbevingsbestendig. De bouw werd stilgelegd en ABT en BAM hebben een jaar lang gewerkt aan een oplossing voor het probleem. De NAM kwam uiteindelijk met 68 miljoen euro over de brug om de bouwstop en de meerkosten voor aardbevingsbestendige maatregelen te compenseren.

Rots in de binnenstad
Ondanks deze tegenslagen kon eind vorig jaar het nieuwe cultuurcomplex worden geopend. Het ontwerp van NL Architects positioneert zich als een langgerekte sculptuur op het plein. Door de natuurstenen gevelplaten van grijsgeel Wachenzeller Dolomiet krijgt het een bijna rotsachtige uitstraling. Afhankelijk van je standpunt verandert het silhouet van het Forum Groningen voortdurend. Soms slank, als een scheve toren. Dan weer een stuk breder en opener dankzij de horizontale glasstroken.
Met een hoogte van 45 meter en 17.000 vierkante meter aan bovengronds programma is het een flinke kolos in het fijnmazige centrum van Groningen. De omliggende bebouwing onttrekt echter een groot deel van het gebouw aan het zicht. Vanaf de Grote Markt gezien, steekt alleen het topje boven de nieuwe oostwand uit. Een smalle steeg toont een deel van de basis, maar als geheel is het Forum niet zichtbaar. Dat maakt nieuwsgierig en trekt bezoekers door de steeg richting het nieuwe plein.
Vanaf hier leiden de schuine gevels richting de zijkanten van het gebouw, waar de twee entrees liggen. Door dit gebaar lijkt de Nieuwe Markt het Forum te omarmen. Bovendien krijgt de omliggende bebouwing in de stegen op deze manier een sterkere relatie met de nieuwbouw en het plein. Het doet denken aan de wijze waarop middeleeuwse kerken en kathedralen in oude binnensteden gepositioneerd zijn, zonder groot plein en dicht tegen de naastgelegen laagbouw aan.

Gestapelde pleinen
Bij het betreden van het Forum wacht bezoekers een totaal andere wereld. Een wit atrium van 37,5 meter hoog laat iedereen als vanzelf stilstaan en naar boven kijken. Eveneens witte roltrappen domineren deze open ruimte en verbinden de split level verdiepingen met elkaar. Op reis naar boven verandert het uitzicht door de glazen gevel mee. Van de intieme binnenstedelijke ervaring op de begane grond tot aan de vergezichten op de achtste verdieping.
Horizontale vertakkingen breiden het atrium verder uit met ‘gestapelde pleinen’. NL Architects verwijst op deze manier naar de sequentie van markten die zo kenmerkend is voor de Groningse binnenstad. Op elk plein zijn functies naar een thema geclusterd, zodat deze elkaar versterken. Dat geeft bezoekers de mogelijkheid om zich als in een warenhuis door het gebouw te bewegen en zich te laten verleiden door het rijke aanbod.
Architectencollectief deMunnik-deJong-Steinhauser (dmdjs) was verantwoordelijk voor de inrichting van de publieke pleinen. Het heeft telkens een andere sfeer weten te scheppen, die aansluit bij de functionele clustering op iedere verdieping. Zo is Wonderland een speelse wereld voor kinderen, doet het Leesplein denken aan een statige herenkamer en wekt het Kennisplein juist een futuristische indruk.

Aardbevingsbestendig gebouw
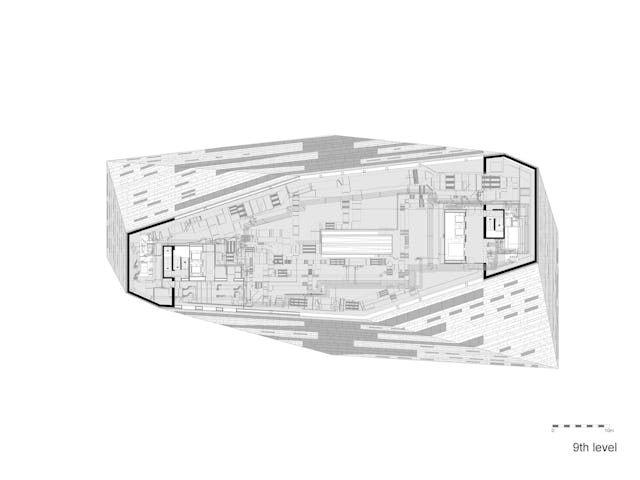
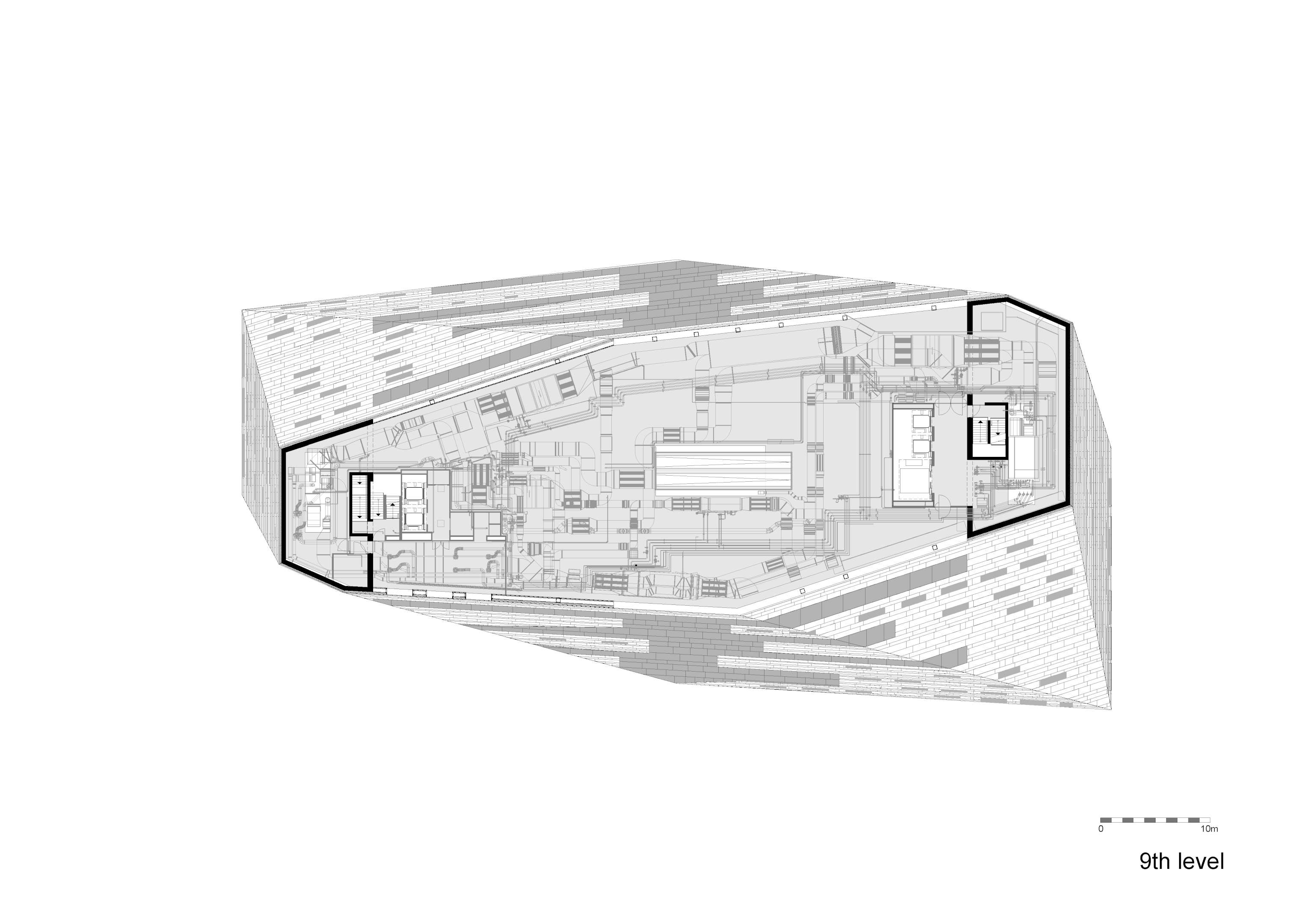
Constructief gezien kent het complex een hybride opzet. Op de koppen staan twee betonkernen die alleen op de negende en tiende verdieping met elkaar zijn verbonden door middel van een brug. Aan deze kernen zijn vervolgens stalen volumen opgehangen, bestaande uit vakwerkspanten en staalplaatbetonvloeren. Tussen deze volumen bevinden zich de open pleinen waar slechts enkele kolommen zijn geplaatst voor de krachtoverdracht.
Deze constructieve opzet is ondanks de te nemen aardbevingsbestendige maatregelen gehandhaafd. Wel is het ontwerp waar nodig versterkt. Zo zijn beide kernen verstevigd met een hogere betonkwaliteit en extra wapening. Bovendien zijn enkele openingen verkleind of weggelaten, toen meer beton nodig bleek. Ook de stalen volumen zijn versterkt door zwaardere profielen en sterkere knopen toe te passen.
In de bevestiging van de gevel zijn eveneens aanpassingen doorgevoerd. De voegbreedte van de verdiepingshoge glasgevel is afgestemd op de te verwachten vervorming bij een aardbeving. En een verzwaarde verankering van de gevelpanelen van Wachenzeller Dolomiet borgt de veiligheid van voorbijgangers. Ondanks deze wijzigingen staat het concept van NL Architects fier overeind.
Spel van contrasten
Bovenop het dakterras, oftewel de Hoge Markt, is het uitzicht over Groningen subliem. Dit is waar historie en moderne architectuur elkaar ontmoeten. Wonder boven wonder gaat dat goed. Oud en nieuw botsen niet, maar weten elkaar te versterken. Juist deze onverwachte samenkomst zorgt voor een zekere spanning die nieuwsgierig maakt.
Niet alleen in de stedenbouwkundige inbedding, maar ook in de rest van het ontwerp speelt contrast een belangrijke rol. Tussen de wat grauwe gevel en het stralend witte atrium, tussen de open pleinen en de gesloten volumen en tussen het ouderwetse boek en de hippe skybar. Telkens kom je voor nieuwe verrassingen te staan. En dat is misschien wel de grootste kracht van het Forum Groningen.
Noten
1. Forum Groningen past in een rij van recent geopende stadsbibliotheken. Wil je meer lezen over de nieuwe rol van de bibliotheek in de stad? In onze Monografie Stadsbibliotheken gaan we aan de hand van vijf actuele projecten uitgebreid in op deze opgave. Naast Forum Groningen bespreken we ook de LocHal in Tilburg, Het Predikheren in Mechelen en de centrale bibliotheken van Helsinki en Christchurch.
2. Begin 2007 mochten zowel de inwoners van de stad als de vakjury onder leiding van Wytze Patijn zich buigen over de ontwerpen van Erick van Egeraat associated architects, Foreign Office Architects, Neutelings Riedijk Architecten, NL Architects/Bureau Bouwkunde, UNStudio, Wiel Arets Architects en Zaha Hadid Architects. Bij beide stemmingen kwam NL Architects samen met Bureau Bouwkunde als winnaar uit de bus.
de Architect maart 2020
Dit artikel verscheen eerder in ons maartnummer. In deze editie bespreken we ook de transformatie van Belvédère Maastricht door Palmbout, het hoofdkantoor van ING door HofmanDujardin en Basisschool Veerkracht door Ard Hoksbergen. Daarnaast gaan we in op het thema Hotels.























































































