De gevel van het nieuwbouwdeel bestaat uit een zin uit het gedicht Awater (1934) van Martinus Nijhoff, vertaald in de 24 talen en 6 schriften die aan de UvA worden onderwezen. De letters zijn ontworpen door typograaf Erik van Blokland, 3D geprint en in brons gecoat. Het gevelscherm staat voor de glazen gevel en fungeert als zonlichtfilter en privacyscherm. Het nieuwbouwdeel beslaat circa tien procent van het totale bouwvolume; het grootste deel betreft de renovatie en restauratie van de twee monumenten.
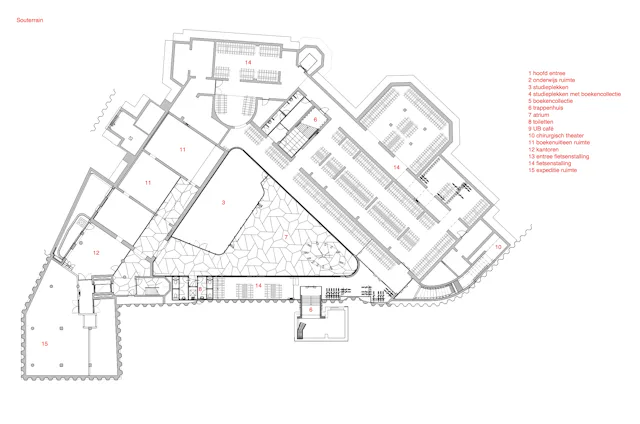
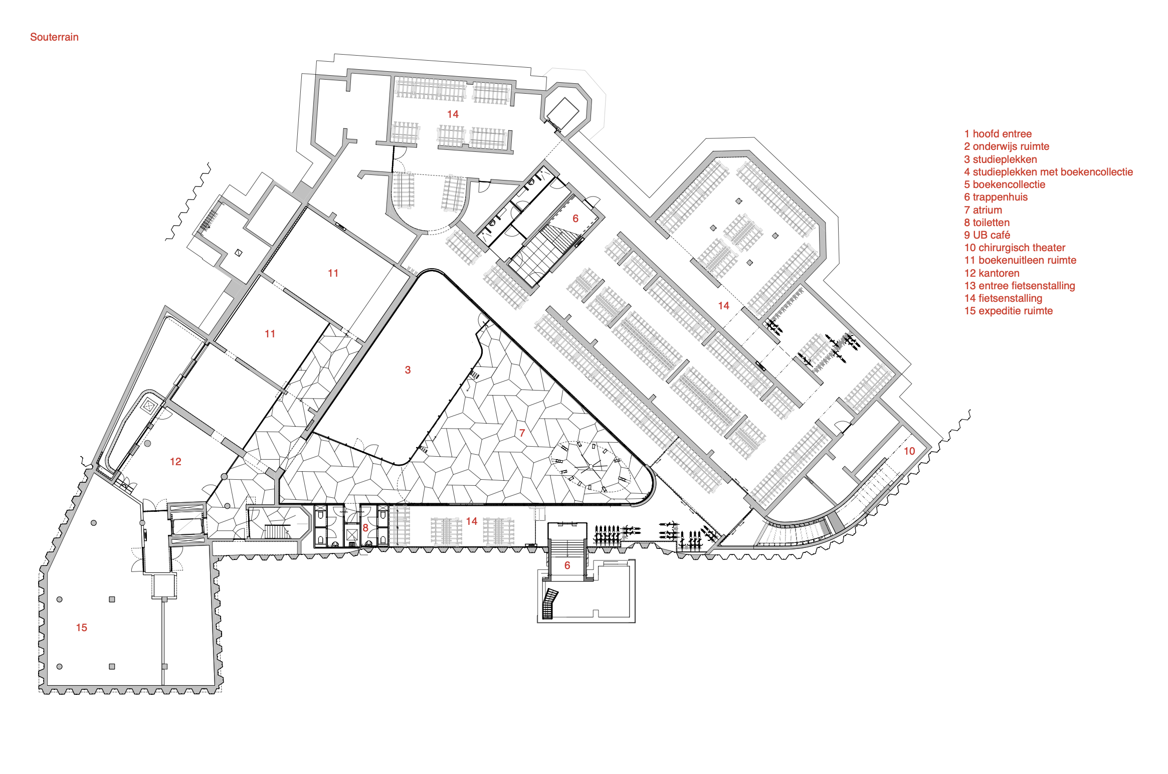
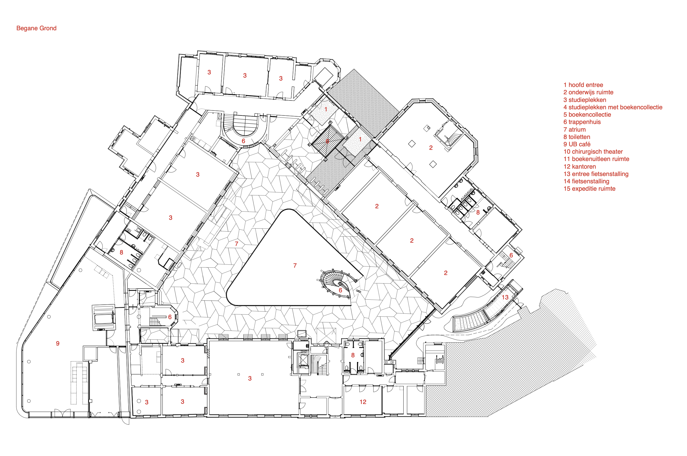
De kern van het vernieuwde complex is een overdekt atrium, dat de vroegere binnentuin beslaat. Het atrium wordt overkapt door een glazen dak, gedragen door een constructie van wit staal. Doordat deze constructie vrijstaat van de bestaande bebouwing, hoefden er geen zware ingrepen in de monumentale oudbouw te worden gedaan. In het atrium bevinden zich een infobalie, studie- en collegezalen en ruimte voor lezingen en tentoonstellingen. In de kelderverdieping zijn een uitleenbalie en een stalling voor 900 fietsen ondergebracht. De oude ziekenzalen van het Zusterhuis zijn omgebouwd tot 1100 studieplekken, aangevuld met projectruimtes en samenwerkruimtes.
De renovatie van de Tweede Chirurgische Kliniek leidde tot discussie met Monumentenzorg, dat het Chirurgisch Theater zo authentiek mogelijk wilde behouden. Uiteindelijk is één rij stoelen in de negentiende-eeuwse staat bewaard; twee rijen zijn verwijderd. Elders zijn details als het trappenhuis en het binnenbalkon hersteld. In de vernieuwde UB zijn boeken niet langer de enige bestemming: het gebouw herbergt ook het Data Science Centre, waar wetenschappers van alle faculteiten samenwerken. De collectie telt ruim vijf kilometer aan boeken; de overige negentig kilometer staat in depot in Amsterdam-Zuidoost en is daar opvraagbaar.


























