De hal is verworden tot de meest gedegenereerde ruimte in een woonhuis, schrijft Bill Bryson in zijn boek At Home. A Short History of Private Life. Lange tijd was de hal de belangrijkste, zo niet enige ruimte in een huis: de hal wás het huis. Het Brouwhuis in Oisterwijk zou je een moderne – en uiterst comfortabele – variant van het archaïsche hallenhuis kunnen noemen.
Gelegen in bossig gebied tussen twee vennen herinneren het materiaalgebruik en de eenvoudige bouwvorm met zadeldak aan een bosschuur. De verwijzing naar een typologie, passend bij traditionele Brabantse buitengebieden, was een van de voorwaarden van Natuurmonumenten om op deze fraaie plek te mogen bouwen. Door het zwart gebeitste, verduurzaamde hout en de ingetogen, vrij gesloten gevel naar de weg toe zou men het huis tussen de donkere stammen bijna over het hoofd kunnen zien. Maar hiermee stopt dan ook wel de gelijkenis met een schuur.

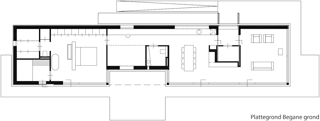
De verticale ruwhouten bekleding heeft een ritmisch patroon, dat doorloopt over de gevel- en dakvlakken. Het hout is met roestvrijstalen nagels respectievelijk schroeven op de onderconstructie bevestigd. Ook de halfronde koppen van de nagels en schroeven vormen een subtiel patroon. Een aantal elementen is doelbewust verborgen of zo terughoudend mogelijk gedetailleerd, zoals de goten, de hemelwaterafvoeren en de aluminium waterslagen. De west- en zuidgevel van het huis bestaan grotendeels uit glas. Dit zorgt voor een ongestoorde visuele verbinding met het landschap. “Zwart aan de buitenkant, licht vanbinnen”, en voldoende wandoppervlak voor twee grootformaat schilderijen, zo omschrijven de opdrachtgevers de essentie van de opzet. De ruimten zijn lineair geordend en bestaan uit vernauwingen en ver- bredingen binnen het grote volume van de ‘hal’. Woonkamer, eetkeuken en studio worden alleen door vrij in de hal staande kubussen en glas tussen de onderzijden van de dakvlakken van elkaar gescheiden. Doorzichten maken de lengte van het huis voelbaar en vormen een frame voor het landschap. Dit zijn ruimtelijke strategieën die vaker zijn toegepast, bijvoorbeeld in Glenn Murcutts Frederick Farmhouse, en die wellicht geïnspireerd zijn op de adellijke en burgerlijke enfilades. Dit huis neem je waar door je er doorheen te bewegen. De basis van het interieur bestaat uit drie materialen en kleuren: grijs gietbeton (vloer), crème-wit pleisterwerk (wanden) en met een witwaas behandeld vurenhout (kolommen, spanten, balken en latten). Deze terughoudendheid in materiaalgebruik en de uitgekiende detaillering van, bijvoorbeeld, de matglazen vensterbanken, de ledverlichting tussen de balken, de in de kubussen geïntegreerde kasten en planken en een deur die, eenmaal geopend, nagenoeg wegvalt in het wandvlak, versterken de ruimtewerking.

Duurzaamheid
Uitgangspunten voor Murcutts architectuur zijn het zo min mogelijk verstoren van de locatie en zorg voor een efficiënte energiehuishouding door het aanpassen van zijn gebouwen aan het specifieke klimaat. Deze uitgangspunten zijn ook in het ontwerp van het Brouwhuis te herkennen. Door de vrij gesloten noordgevel, de geopende zuidgevel met warmtereflecterende, isolerende triple- beglazing, vloerverwarming en warmteterug- winning is het gebouw goed aangepast aan locatie en klimaat. De stookkosten zijn, volgens de opdrachtgever, te verwaarlozen. De gevelbekleding zal vergrijzen en waarschijnlijk zullen zich mossen op de van de zon afgewende zijden hechten. Het huis zal met de locatie vergroeien.
Zelf had ik op deze bijzondere plek een andere strategie verwacht: een autonoom huis, dat zijn energie zelf opwekt en het gereinigde ‘afval’ aan de natuur teruggeeft. Of een demontabel huis dat na afbraak geen sporen achterlaat. Maar hier gaat het architect en opdrachtgever niet om: hen gaat het om woongenoegen in een comfortabel huis en om genieten van het landschap. En om tijdloosheid, weg van de waan van kortstondige modes. Deze opzet is zeker geslaagd.

Bronnen
B. Bryson, At Home. A Short History of Private Life, Londen 2010.
W. Wilms Floet (red.), Het ontwerp van het kleine woonhuis, Amsterdam 2005, p. 56 e.v. Video: www.bedauxdebrouwer.nl/bureau/info/filmpjes/ filmpjes-single/100-bedaux-jacq.html.
Gesprek auteur met de opdrachtgever d.d. 4 september 2015.
Telefoongesprek auteur met Jacq. de Brouwer en e-mail Bedaux de Brouwer Architecten d.d. 7 september 2015.




