Toelichting archipelago | Beeld Johnny Umans, Gil Plaquet en archipelago
Oorspronkelijk het postkantoor van Louvain-la-Neuve, daarna gebruikt als bijgebouw voor verschillende UCL-opleidingen, en finaal bestemd als 'school voor geluid'. De incrementele ‘overcompartimentering’ van dit brutalistische gebouw en de plaatsing van akoestische isolatie om te voldoen aan strenge geluidsnormen, leidden tot een toestand waarin de helderheid van de architectuur en de eenvoud van de materialen verloren zijn gegaan.
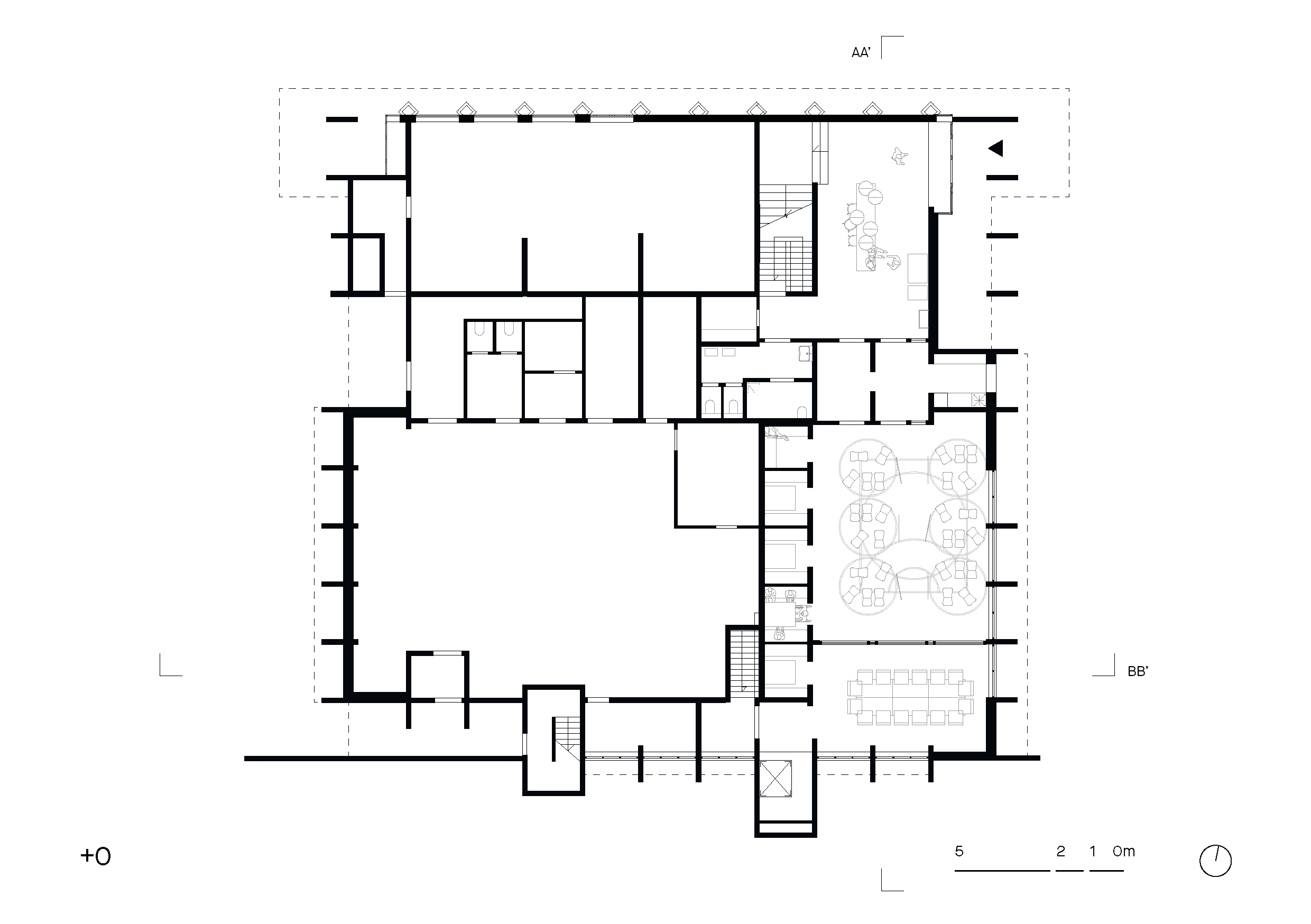
Onthulling van de architectuur
De eerste taak was het ontmantelen van het gebouw: beton herstellen waar het nog hersteld kan worden, oorspronkelijk metselwerk opknappen en het schrijnwerk zoveel mogelijk behouden.
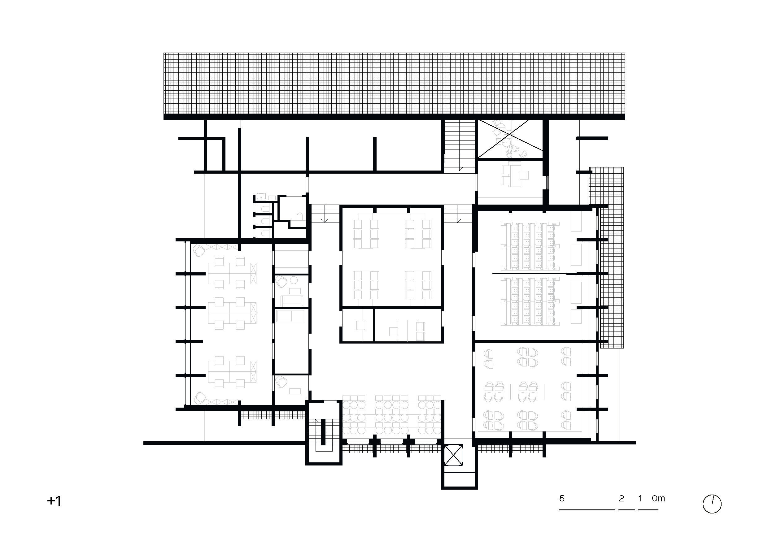
De ruimtes worden functioneel en ruimtelijk ontvlochten. De uitzonderlijke hoogte van de bovenste verdieping wordt hersteld, alsook het samenspel van de balken en het licht dat door de glazen bouwstenen valt.

Het doel van de renovatiestrategie is om het gebouw in zijn oorspronkelijke staat te herstellen en tegelijkertijd te voorzien van de technologie en het thermisch comfort nodig voor de volgende
levenscyclusfase. We grijpen daarom enkel in op de muren die voordien al werden aangepast. De oostgevel is de enige gevel waar we op ingrijpen, om zodoende de ruimtelijke continuïteit op de
begane grond te versterken.
Co-creatie
Het Centre d'enseignement supérieur, de promotion et de formation continuée en Brabant wallon (CPFB) is een leercentrum verbonden aan de UCLouvain en is voornamelijk gericht op sociale ontwikkeling. Toen het CPFB een oproep lanceerde om het voormalige postkantoor om te vormen tot een leercentrum, stelden ze de architecten één vraag: hoe kan dit gebouw worden aangepast aan nieuwe onderwijsmethoden en een brede waaier aan opleidingen?
Een instituut als het CPFB is divers op vlak van de opleidingen die het aanbiedt, alsook haar studenten, de grootte van de groepen, het onderwijzend personeel en de lesroosters. Het lijkt ons daarom essentieel om dit project te beginnen met een co-creatieproces, om de visie van alle toekomstige gebruikers in het project te integreren.

Voor een efficiënt en productief co-creatieproces tekenden we een set van grafische hulpmiddelen om informatie te verzamelen over groepsdynamiek, werkplekken en relaties tussen plaatsen, gebruikers
en apparaten. In een tweede fase analyseerden we de informatie en begonnen we met het definiëren van verschillende activiteiten en plaatsen.
Activity-based design
Eens de resultaten van het co-creatieproces zijn bevestigd, beginnen we met een ‘activity-based’ ontwerpproces om verder de ruimtelijke en programmatorische mogelijkheden te verkennen.
Traditioneel wordt een programma op de volgende manier bedacht: Plaats = Functie = Activiteit. Om het gebouw aan te passen aan nieuwe leermethoden, stellen we voor om de permanente toewijzing van een plaats aan een functie af te schaffen. Functies zijn mobiel en mensen verplaatsen zich afhankelijk van de activiteit die ze uitvoeren (om vervolgens de juiste plaats vinden).
We kiezen daarom om doorheen het gebouw plekken te definiëren met een sterk ruimtelijk karakter, ontworpen om een activiteit te huisvesten in plaats van een functie. Plaats = Activiteit, Functie is Mobiel.



























