Met de realisatie van het nieuwe stadhuiskwartier in Deventer is het de architecten gelukt een groot programma in te voegen op een kwetsbare locatie, gelegen in het historische stadscentrum. De aanleiding voor een nieuw stadskantoor was de wens om de verspreiding van gemeentelijke kantoren tegen te gaan en de ambtelijke diensten bijeen te brengen op één locatie.
In 2006 organiseerde de gemeente daartoe een aanbesteding, waarna Neutelings Riedijk Architecten in de tweede ronde de opdracht werd gegund. Het ingezonden ontwerp moest worden herzien nadat twijfel was gerezen bij belangenorganisaties over de inpassingen de zorgen bij de gemeenteraad over de financiering. Het herziene ontwerp voegde zich beter inde morfologie, waarop de gemeenteraad het plan in 2011 goedkeurde.

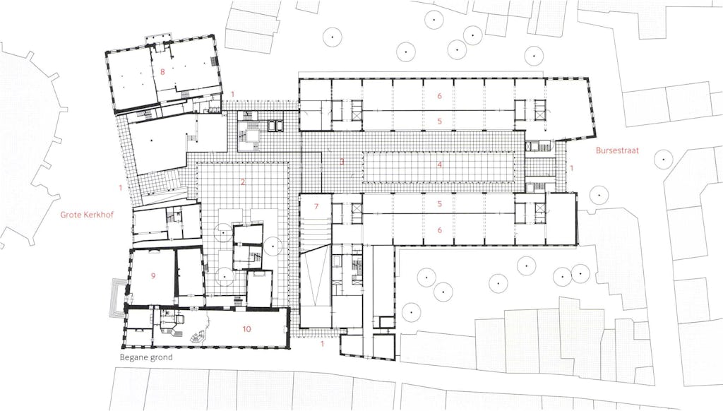
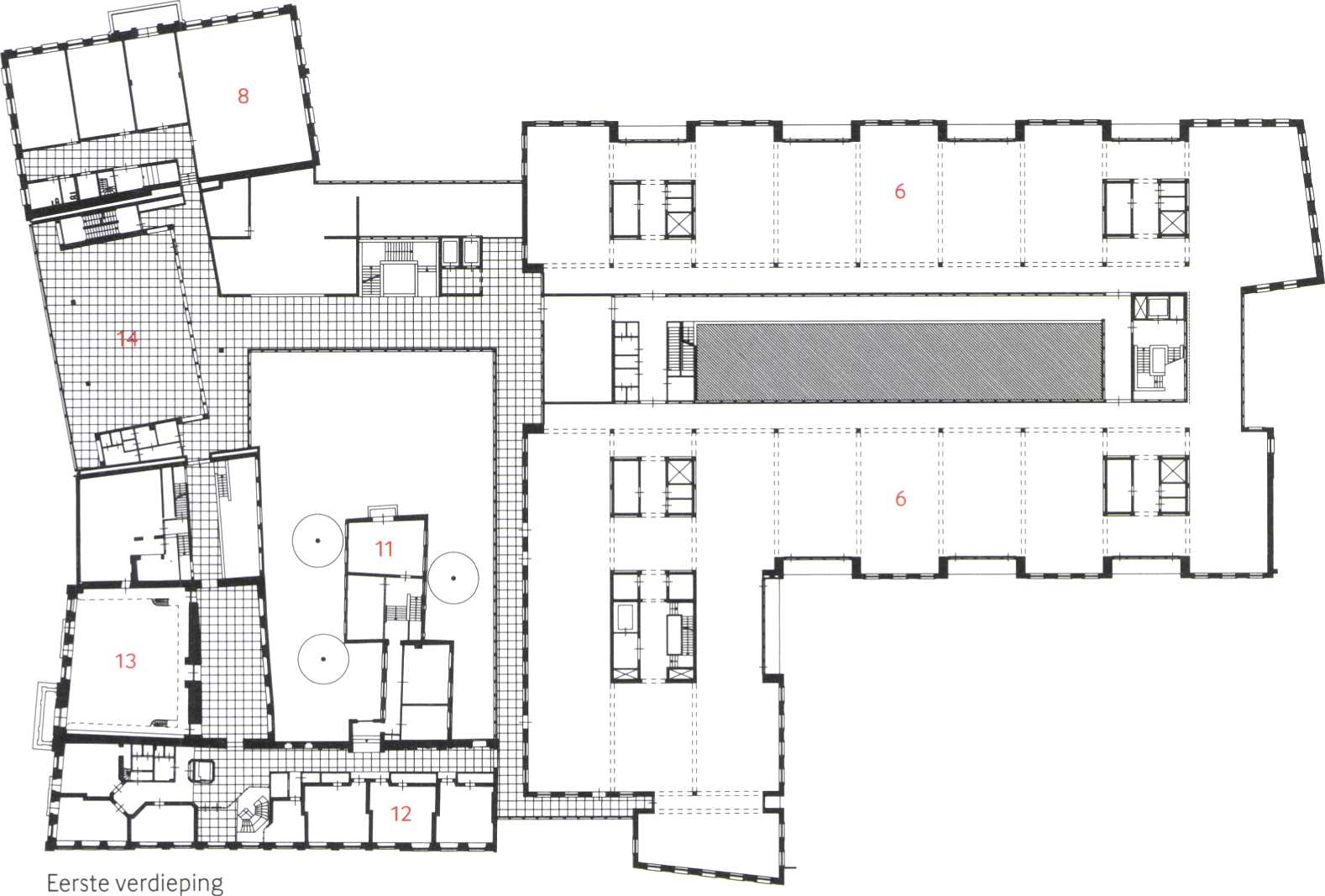
In het gerealiseerde ontwerp is de stegen- en hovenstructuur van het historische stadsgebied aangegrepen om het complex te organiseren. Op de locatie is al sinds oudsher een stadhuis aanwezig dat door samenvoegingen en verbouwingen een aantal keren is vergroot. In de huidige opzet zijn de bestaande panden onderdeel geworden van het nieuwe drielaagse complex, via een intern circuit op de eerste verdieping.
De monumentale panden bevinden zich aan de meest representatieve zijde van de kavel, tegenover de Lebuinuskerk, aan het Grote Kerkhof. Deze gebouwen doen onder meer dienst als trouw- en raadzalen worden gebruikt door het bestuurslichaam. Aan de meer informele zijde is het orthogonale stadskantoor geplaatst dat zich op markante posities voegt naar de bestaande context.
Doorwaadbaar gebouw
Het programma is over de kavel gedistribueerd waardoor aan alle zijden verschillende aansluitingen bestaan. Waar het gebouw zich aan de ene zijde als gevelvlak toont en onderdeel van de straatwand is, manifesteert het zich aan de informele zijde als volume.
Gelukkig is de gemakkelijke vertaling naar iconisch kolos vermeden. De bouwmassa is aangepast aan de stedelijke morfologie door sprongen in gevels en verzelfstandigde daken. Het complex kan zich daarmee als een nieuw hart hechten aan de kwetsbare stedelijke context.

In het ontwerp valt het openbare programma samen met het stedelijke weefsel. Het complex is doorwaadbaar doordat het op straatniveau alzijdig toegankelijk is. Vier ingangen vormen een essentieel instrument om stedelijke wandelrouten als vanzelf uit te laten komen in het gebouw. De routen bevestigen het publieke, levendige karakter van het stadhuis. Ze worden visueel intensief begeleid in de vorm van houten arcaden.
Twee stadskamers maken onderdeel uit van de routen. Bezoek laveert vanaf de representatieve zijde aan het Grote Kerkhof door het zogenoemde burgemeesters-hofje naar een overdekt atrium, centraal gelegen in het stadskantoor. De bezoeker heeft nauwelijks notie van de bouwvolumes. De arcaden leiden de bezoekers visueel zodanig af, dat het publiek als het ware wordt opgezogen in het complex.
Montage
Aan het Grote Kerkhof is een nieuwe gevelinvulling geplaatst die de reeks verschillende gevels aan die zijde op een bijna Grassiaanse manier continueert: in een radicaal afwijkende signatuur. De geraffineerde gevel bestaat uit eikenhouten kaders die op straatniveau open zijn gelaten, waarmee het stadhuis zich heel transparant vestigt in de stad.
Acht horizontale banden zijn opgedeeld in vijf verschillende soorten kozijnafmetingen, allemaal in de gulden-snedeverhouding. Door de terugliggende dakverdieping op de derde etage is het gevelvlak als houten raamwerk verder verzelfstandigd. De kavelgewijze aaneenrijging van panden is ruimtelijk gemaakt door het gevelidioom naar binnen voort te zetten en zo de publieke routen met elkaar te verknopen.

Het houten raamwerk is ook gebruikt voor de kunsttoepassing die in samenwerking met beeldend kunstenares Loes ten Anscher is ontwikkeld. Verspreid over de houten buiten- en binnengevel hangen unieke, gegoten aluminium roosters.
De roosters zijn de uitvergrotingen van teen- en vingerafdrukken van 2.264 inwoners van de stad. Het kunstwerk staat symbool voor het bouwprogramma maar ook voor de omarming van het gebouw door de bevolking. De gevels van het stadskantoor zijn opgetrokken uit kleurrijke, gootformaat bakstenen.
Meervoudig gebruik
Het atrium verenigt het publieke circuit op de begane grond met dat van de ambtenaren erboven. In hoofdzaak heeft het atrium een publieke informatiefunctie, maar kan ook worden gebruikt voor een openbare muziekuitvoering of een nieuwjaarsborrel. Een weldadig daglicht valt hier naar binnen,dat mede door de honderden kozijnkaders een indringend warme impressie achterlaat.
Het gebouw is uitgewerkt met behulp van een efficiënte maatvoering op een stramien van 2,70 meter, waardoor het in de toekomst eenvoudig van functie kan veranderen. Het kantoorgebouw heeft een in het werk gestort betonskelet dat op veelplaatsen in het zicht is gebleven. Het skelet heeft betonkerenactivering waarmee de warmte en de koude worden gebufferd die bijdragen aan een aangenaam werkklimaat.

Het nieuwe stadhuiskwartier van Deventer weet dankzij zijn inpassing goed aan te sluiten op de omringende morfologie. Het complex kent hierdoor aan alle kanten een gevarieerde verschijning. Tegelijkertijd bezit het gebouw een hoge graad van openbaarheid en een warme sfeer waarmee het een rol opeist als kloppend hart van de stad.
























