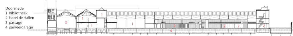
In de passage van De Hallen is het een komen en gaan van mensen. Deze voormalige traverseerhal, waar tramwagons vroeger dwars van de ene naar de andere werkhal werden verplaatst, is de ruggengraat van het gebouw. De meeste mensen komen hier voor een bezoek aan de bibliotheek, de Food Hallen, de koffiebar of de filmzalen. Deze bevinden zich achter de hoge deuren langs de passage. Aan de andere zijde van de passage zijn voormalige werkplaatsen met een galerie en fietsenmaker. De passage wordt ook gebruikt als verbinding tussen de Tollenstraat en Ten Katemarkt. Aan de zijde van het Bellamyplein, waar het in de twintigste eeuw een komen en gaan van trams was, is het voor- alsnog vrij rustig. Hier bevinden zich de ingang van het hotel en de parkeergarage. In de zomer wordt het plein deels uitgerust met een groot terras voor de Food Hallen. Dan zal het ook hier gezellig druk worden, verwacht Van Stigt.
Remise voor elektrische trams
In De Hallen wijzen de rails de weg. De bestaande rails van de voormalige tramremise vormen de basis voor de routing door het gebouw. Tegelijkertijd maken ze de oorspronkelijke logistiek afleesbaar. In de twintigste eeuw werden elektrische trams vanaf het Bellamyplein de vijf hallen binnengereden. Via de hoge deuren werden ze vervolgens naar de traverseerbaan getransporteerd waar ze door middel van een rolwagen van de ene naar de andere hal werden vervoerd. Van Stigt wijst op de driewegwissel in Hal III, één van de laatste in Nederland. In De Hallen is de kwaliteit van het gebouw optimaal benut, of in de woorden van Van Stigt: “Er is ‘geluisterd’ naar het gebouw.” De architectuur is voor een utilitair gebouw bijzonder rijk uitgevoerd met baksteen profielstenen en natuursteen details, kenmerkend voor de Amsterdamse School. Het metselwerk dat is gerestaureerd, contrasteert met de slanke staalconstructie. In de vroegste hallen uit 1909 worden twee zadeldaken gedragen door polonceauspanten die aan een zijde rusten op stalen kolommen. In een uitbreiding uit 1928-1932 is een vakwerkconstructie toegepast die een overspanning van achttien meter in één keer mogelijk maakte. In de hallen komt het daglicht via twee rijen verhoogde daklichten de ruimte binnen. De staalconstructie en daklichten zijn in alle hallen in het zicht gelaten, wat een positieve uitwerking heeft op de daglichttoetreding.

De voormalige tramremise en de centrale werkplaats zijn tussen 1904 en 1909 in opdracht van de Dienst Publieke Werken gebouwd en in 1928 en 1932 uitgebreid richting het Bellamyplein. Dit project is het startpunt van de geëlektrificeerde tramlijnen in Amsterdam. Hal I, nu bibliotheek en hotel, werd gebruikt voor de grote revisie. De overige vier hallen werden gebruikt als remise. In een voormalige remisehal laat Van Stigt de smeerputten zien, waarin nu leidingen zijn weggewerkt.
Planvorming van vijftien jaar
In 1996 begon de planvorming voor de herbestemming van het vrijgekomen complex. In het eerste plan (1996) werd het complex gehandhaafd en werd nieuwbouw op de tramremise geplaatst om behoud financieel mogelijk te maken. In het tweede plan (1997) werd een deel van de hallen – aan de zijde van de traverseerbaan – gesloopt ten behoeve van openbare ruimte in het hart van het complex. Aan dit hart werden nieuwbouwwoningen geplaatst. In 2001 werd het complex aangewezen als rijksmonument. Dit verhinderde verdere plannen voor sloop en maakte woningbouw op de hallen onmogelijk.
Lees ook: Nieuwe plannen De Hallen Amsterdam
In 2002 werd het stedebouwkundig plan vastgesteld dat de basis vormt voor de huidige situatie. In het plan is een scheiding gemaakt tussen de rijksmonumentale hallen en nieuwbouw op het kavel daarnaast (tussen de Tollenstraat en Bilderdijkgracht). Vanaf dat moment begon een jarenlange zoektocht van het stadsdeel naar de juiste projectontwikkelaar die erin zou slagen om een plan voor de voormalige tramremise te bedenken dat financieel haalbaar was en gedragen werd door de buurt. Na negen jaar eindigde dit in een strijd tussen twee kansrijke plannen: die van Lingotto en van de trom (Tramremise Ontwikkelings Maatschappij). Het plan van de trom wint, met als sterke punten “de verankering van de initiatiefnemers en de ondernemers in de buurt en in de stad en een groot commitment met maatschappelijke voorzieningen”.
Duurzaam gebruik en exploitatie
De plannen van de trom beginnen in 2010 met een initiatief van Van Stigt om een Ambachtenhal te realiseren, met ruimte voor onder meer praktijkopleidingen, ondernemers, een bibliotheek en galeries. Hij vindt een groep toekomstige gebruikers en wint draagvlak binnen de buurt. Wanneer het plan haalbaar blijkt te zijn, wordt de trom opgericht, een organisatie die de totale verantwoordelijkheid voor een lange tijd op zich neemt. Alle hallen hebben eenzelfde structuur, maar in iedere hal is een andere functie en sfeer. Van Stigt koos functies die passen bij de eigenschappen van het gebouw: ‘function follows form’. In de eerste hal, met veel geveloppervlakte, zijn het hotel en de bibliotheek geplaatst. In de middelste hallen, met alleen daklichten, zijn de Food Hallen, tv-studio’s en filmzalen gesitueerd. Om zo veel mogelijk vloeroppervlakte voor de functies te realiseren maakte hij tussenvloeren. Dit leverde 25 procent extra vloeroppervlakte op. Onder drie hallen moest de fundering vernieuwd worden, omdat deze was verzakt als gevolg van de latere opbouw (1928-1932). Dit was aanleiding om hier een kelder met parkeergarage en fietsenkelder te realiseren.

De kracht van De Hallen is de combinatie van maatschappelijk gewenste en economisch rendabele functies: hierdoor functioneert het complex nu als kloppend hart van de buurt. Dit is financieel mogelijk gemaakt door een gedifferentieerde huur. De huurprijzen van kleine huurders worden niet gecompenseerd door subsidies, maar door de huurprijzen van grote huurders zoals het hotel, de horecafuncties, filmhallen en tv-studio’s. Deze huurders betalen hogere huurprijzen dan de bibliotheek, galerie, ambachtenhal en fietsenmaker Recycle. De huur kan verder worden verlaagd wanneer tegenprestaties worden verricht zoals een bijdrage aan het onderhoud, schoonmaken en beheer van het gebouw. “Grote commerciele huurders, zoals het hotel, gaan hierin alleen mee als ze vroeg in de planvorming worden betrokken en als ze voor honderd procent achter het plan staan”, benadrukt Van Stigt.
Lees ook: De Hallen wint EU-conservatieprijs voor cultureel erfgoed
Financiering
Voor de trom was de financiering van het project een van de grootste uitdagingen. Van Stigt laat foto’s zien van de vervallen tramsremise vlak voor de restauratie: “Er was veel overtuigingskracht nodig om investeerders in dit plan te laten geloven.” Banken zagen investeren in dit project als een te groot risico. Uniek is dat het grootste deel van de financiering niet afkomstig is van banken, maar van private partijen (veertig procent) en achtergestelde leningen (twintig procent). Uiteindelijk waren banken onder veel voorwaarden bereid om voor veertig procent mee te financieren. Om de financiering tot slot rond te krijgen is een deel van het gebouw verkocht (onder meer de passage en parkeergarage aan de gemeente). Wat banken vertrouwen gaf, was het feit dat direct betrokkenen bij het project, zoals aannemer De Nijs en architectenbureau Van Stigt, mede risicodragend waren. Ook het feit dat het grootste deel van het complex al verhuurd was, hielp hen over de streep. Voor particulieren was financiering van het project aantrekkelijk, omdat het bedrag als kosten voor achterstallig onderhoud van een rijksmonument afgetrokken kan worden van de inkomstenbelasting. In dit project is Van Stigt binnen de trom een bouwmeester in de ruimste zin van het woord: initiatiefnemer, architect, verbinder, medefinancierder en hij blijft nog ten minste tien jaar als onderdeel van Stichting trom betrokken bij het onderhoud en beheer van De Hallen. Zo ziet hij zijn rol als architect het liefst. “Steeds vaker wordt een architect gevraagd voor een vo+, waarbij je tijdens de uitwerking van het ontwerp nog slechts een controlerende rol hebt. Een project als dit was in die vorm niet mogelijk geweest. Een architect hoort in een kernteam (de ‘vitale coalitie’) die de kar van begin tot eind trekt.”

Kloppend hart in het Hallenkwartier
De Hallen is een groot succes. Met het project is niet alleen nieuw leven geblazen in een vervallen tramremise, maar in een hele buurt. De buurten rond De Hallen noemen zich trots het Hallenkwartier, een nieuwe ‘place to be’. Ondernemers in de buurt bloeien op en willen terecht meeprofiteren van het succes van De Hallen. De sterke punten op basis waarvan het plan gekozen is boven het plan van Lingotto, de verankering van de initiatiefnemers en ondernemers in de buurt en een commitment met maatschappelijke voorzieningen, werpen hun vruchten af. Naast De Hallen wordt een groot nieuw appartementencomplex gerealiseerd. In de oudste plannen voor De Hallen werd nieuwbouw nog beschouwd als middel om de restauratie financieel haalbaar te maken. Volgens Van Stigt is dit nu andersom: “Het succes van De Hallen heeft juist een positieve impuls gegeven aan de stagnerende verkoop van de appartementen.
Lees ook: De Hallen Amsterdam wint StiB Award 2015

Noten
1 Over het twintig jaar durende proces en de zoektocht naar een projectontwikkelaar schijft Eisse Kalk, medeoprichter van de trom, kleurrijk in zijn boek Nieuw leven in De Hallen.
2 Bestuur trom: architect André van Stigt, advocaat Casper Schouten, vastgoedspecialist Haas Kuijper, ontwikkelaar en vastgoedbeheerder Lex de Boer en herbestemmingsdeskundige Eisse Kalk.



