De uitbreiding ligt aan de provinciale weg en is daarom niet de meest logische locatie voor leslokalen. Een glazen voorzetgevel loste het probleem van de geluidsoverlast echter op, waardoor de kavel toch voor deze functie kon worden benut. De ramen van de lokalen kunnen nu worden geopend zonder last te hebben van het verkeer.
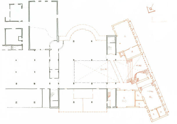
Verglaasd atrium
Een verglaasd atrium verbindt de nieuwe lokalen met de oudbouw. Dit bouwdeel herbergde een overblijfruimte en lokalen. Naast het feit dat er weinig daglicht was, hadden de bestaande ruimtes geen enkele kwaliteit. De ingreep van Ton Voets Architecten revitaliseert de oudbouw, voorziet het ruimschoots van daglicht en geeft het een allure die aansluit bij de nieuwbouw. De kleuren van de glazen dakdelen en het linoleum maken het een prettige ruimte.
Energieneutraal
In de nieuwbouw is lage temperatuurverwarming toegepast. Ook wordt de warmte van de ventilatielucht teruggewonnen en is op de platte daken sedum geplant. Dit maakt dat de uitbreiding energieneutraal is en de eerste in zijn soort in Delft.
Tekening begane grond: de uitbreiding in rood aangegeven.



