Toelichting en beeld Bas Vogelpoel Architecten
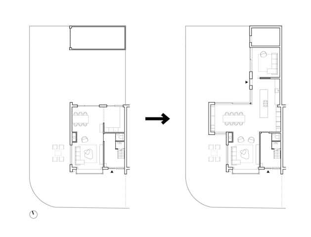
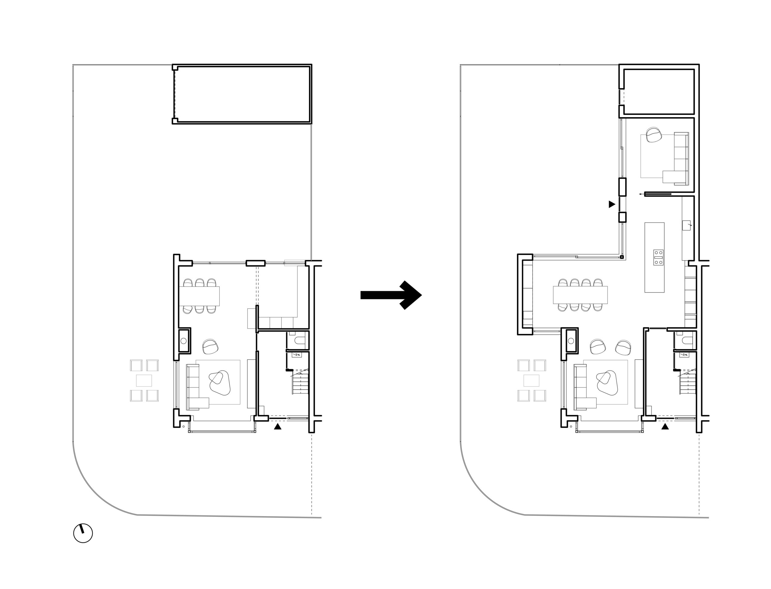
Bij deze woningrenovatie waren het de planningsrichtlijnen die het bureau inspireerden om van een standaard hoekrijhuis een plattegrond van een soort villa op de begane grond te maken. De opdrachtgevers wilden hun begane grond uitbreiden om hun eetruimte te maximaliseren en een aparte recreatieruimte voor de kinderen te realiseren.
Lastig bij deze vraag was dat de extra kamer bij de meeste oplossingen de toegang tot de tuin blokkeerde. Bij nadere bestudering van de stedenbouwkundige richtlijnen bleek dat aan de achterzijde meer ruimte gecreëerd kon worden als ook aan de zijkant van de woning een uitbouw zou worden gemaakt. Door de zij-en achteraanbouw te scheiden sloot het programma mooi aan en voelde de tuin zelfs groter en meer verbonden met binnen.

Visueel is er voor gekozen om de twee uitbouwen met elkaar te verbinden, waardoor een mooi panoramaraam naar de tuin kon worden geplaatst. Door al deze ingrepen veranderde het woonkamerplan van een lineair georiënteerde naar een multidirectionele ruimte. Eentje die meer zou associeren met een modernistische villa dan met een hoekrijhuis.
De gebruikte materialen en kleuren in de gevel bouwen voort op het bestaande palet, maar de tektoniek en detaillering zijn veel eigentijdser. De verschillende oppervlakken liggen in hetzelfde vlak of hebben juist een flinke terugsprong. De plint en dakrand zijn zo gedetailleerd dat de uitbouw een slanke, elegante uitstraling krijgt, in tegenstelling tot wanneer de nogal ruwe hoogte van het goed geïsoleerde dak direct was doorgezet in de dakrand. Alles tussen de twee ranke lijnen loopt van vloer tot plafond, waardoor zowel exterieur als interieur ondanks de complexe oriëntaties een rustig figuur krijgen.

Plaatselijk komt de buitenbeplating terug in het interieur, waardoor de relatie tussen binnen en buiten nog eens wordt benadrukt. Voor de andere interieurelementen is gekozen voor een lichte smaak, waarbij het contrast tot een minimum werd beperkt om een zuiderse sfeer te creëren. De compositie is vrij minimalistisch, maar heel huiselijk in z’n geheel.


































