Toelichting wUrck
De wijk Kerckebosch te Zeist ondergaat een grote verandering. De elf grote flats die in het bos lagen maken plaats voor een volledig nieuwe wijk, opgezet volgens het Scheggenmodel. De wijkontwikkelingsmaatschappij WOM Kerckebosch maakte samen met de bewoners, ondernemers en maatschappelijke organisaties uit de omgeving een integraal ontwerp. In samenwerking met WOM maakte wUrck de deelinrichtingsplannen voor de gehele wijk. Hieronder vallen onder andere de inrichting van de verschillende scheggen, de ruimtelijke opzet van de hoofdinfrastructuur en overige plangebieden, zoals het herbestemmen van de natuur tussen de scheggen.
Voor één van de scheggen, in de buurt Stuifduinen, maakte wUrck in opdracht van MOD Invest het architectonisch ontwerp voor negen levensloopbestendige bosvilla’s.

Meanderende opzet
De per drie geschakelde villa’s volgen een meanderende opzet. Zorgvuldig ingepast, ogen ze als donker bakstenen monolieten in het landschap. De villa’s liggen aan de rand van de buurt, hebben een relatief gesloten entreegevel aan de kant van de achterliggende appartementengebouwen en grenzen aan de andere zijde direct aan het Utrechts Landschap.
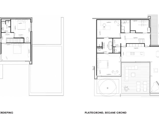
Patio’s
Vanwege de ligging in het bos hebben de villa’s geen tuinen, maar wel ruime terrassen. Doordat deze deels terug liggen binnen het bouwvolume van de woningen en zijn opgetild ten opzichte van het maaiveld is een zekere mate van privacy gegarandeerd zonder dat de ruimte introvert wordt. Op deze ‘patioterrassen’ kunnen de bewoners beschut buiten zitten terwijl mooie diagonale zichtlijnen ontstaan en de relatie met de omgeving maximaal blijft.
De patioterrassen vormen het hart van de woning; alle woonruimten zijn er omheen georganiseerd. De verdiepingen geven de woningen een verticaal accent, maken ze individueel herkenbaar en vormen een overgang naar de hogere achterliggende bebouwing. Bovendien bieden ze een hoger uitkijkpunt vanwaar van het uitzicht op het Utrechts Landschap kan worden genoten.

Open karakter
De eyecatchers van de villa’s zijn de glazen puien aan de op het zuidwesten georiënteerde boszijde. Hun slanke detaillering en verzonken profielen – zowel aan de boven- als aan de onderzijde – zorgen voor maximale transparantie en een optimale beleving van het bos. Elke villa heeft een frame met schuifpanelen om zoninval en privacy individueel te kunnen regelen.
De volumes hebben een sterke horizontale compositie. Langformaat stootvoegloos metselwerk met sterk terugliggende lintvoegen versterken dit karakter. De donkere, gemêleerde kleur van de baksteen oogt bescheiden en laat de bomen de sfeer bepalen.
Levensloopbestendig
Er zijn drie hoofdtypen villa’s, met oppervlakken van respectievelijk 187, 204 en 214 vierkante meter. De levensloopbestendig woningen hebben het hoofdprogramma op de begane grond en rondom de patio georganiseerd. Voor alle drie de typen zijn indelingsvarianten ontworpen waarmee op individuele woonwensen kan worden ingespeeld ook in de toekomst. In contrast met het donkere kleurenpalet van het exterieur is het interieur helemaal wit gehouden.
Elke villa beschikt over twee parkeerplaatsen op eigen terrein, vanzelfsprekend ingepast in het meanderende volume van de villa’s.
gerelateerde projecten.
Lees ook:





















