Toelichting Wiersema architecten & de Architekten Cie. | Beeld Ernst van Raaphorst (de Architekten Cie.)
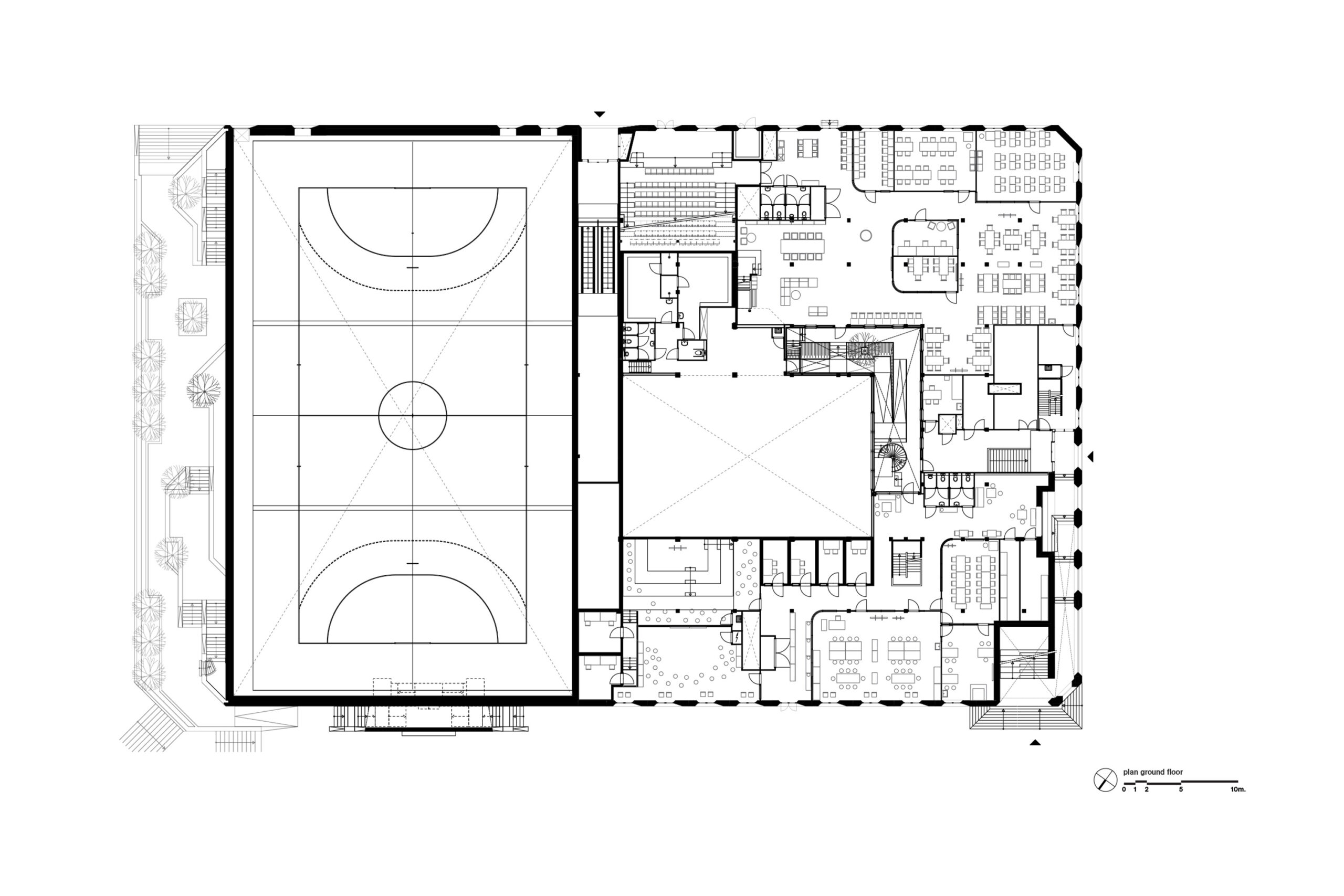
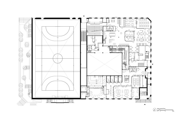
Het gebouw, naast de Pathé bioscoop gelegen, huis-vest naast leerlingen ook studenten van docentoplei-dingen van MBO, HBO en de Universiteit, in een school van 11.700 vierkante meter. De sporthal beslaat 2600 vierkante meter met een openbaar plein van 2000 vierkante meter op het dak. De ingang van de school is aan het Berlijnplein 300, terwijl sporthal en plein via de Zagrebstraat bereikbaar zijn. Met veel glas, erkers, een open indeling en een openbaar plein op het dak is het een toegankelijk en uitnodigend gebouw.

School weerspiegelt de echte wereld
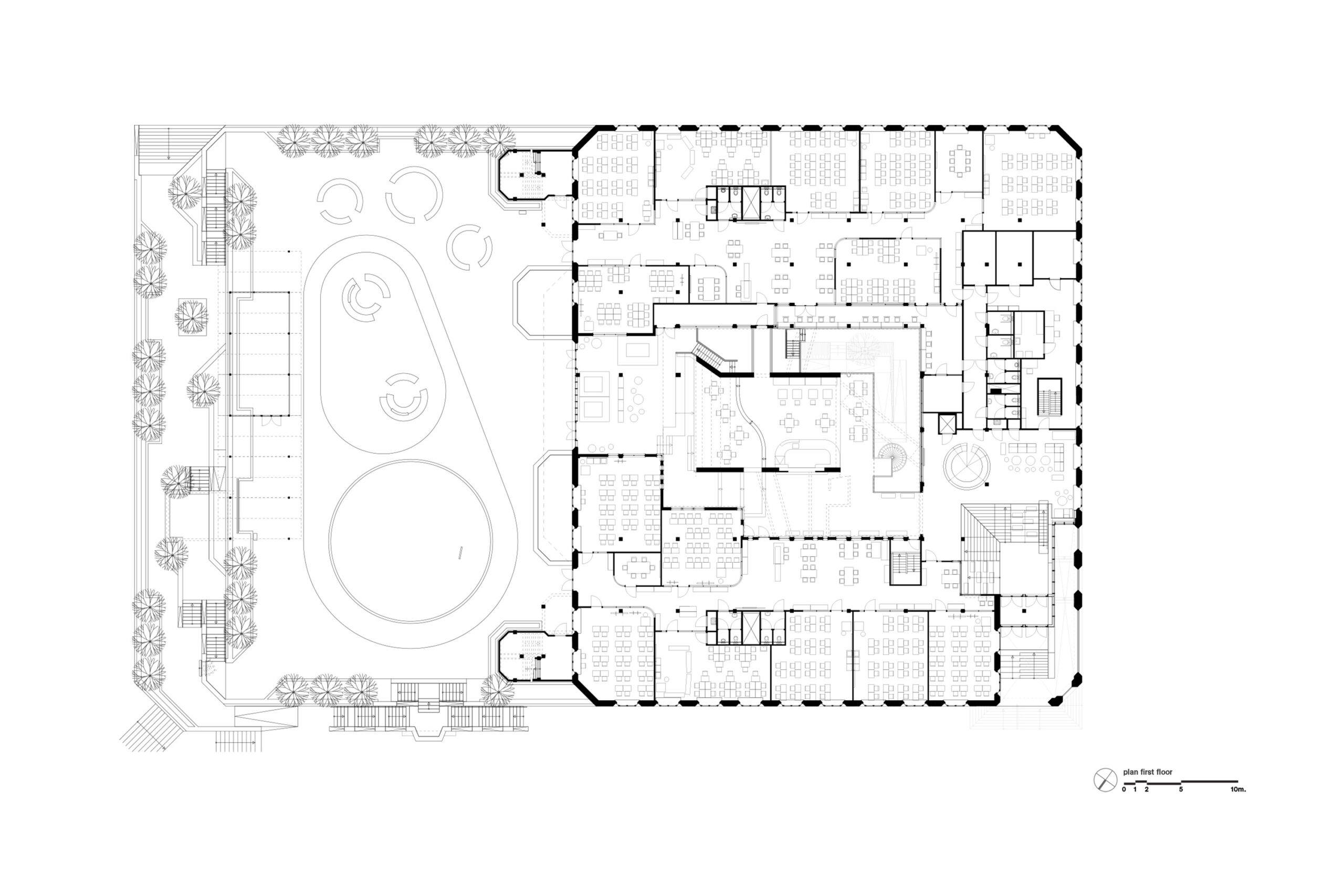
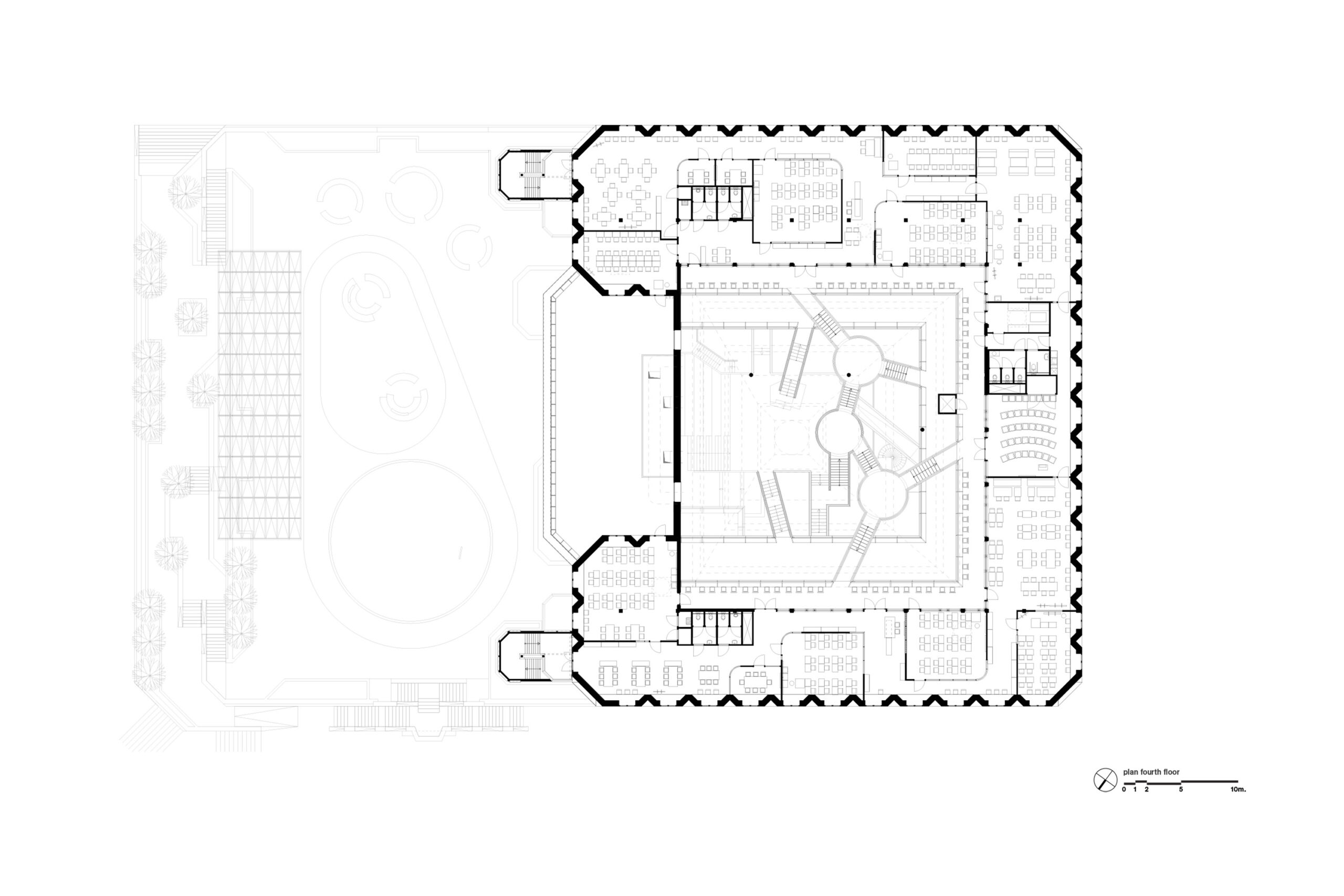
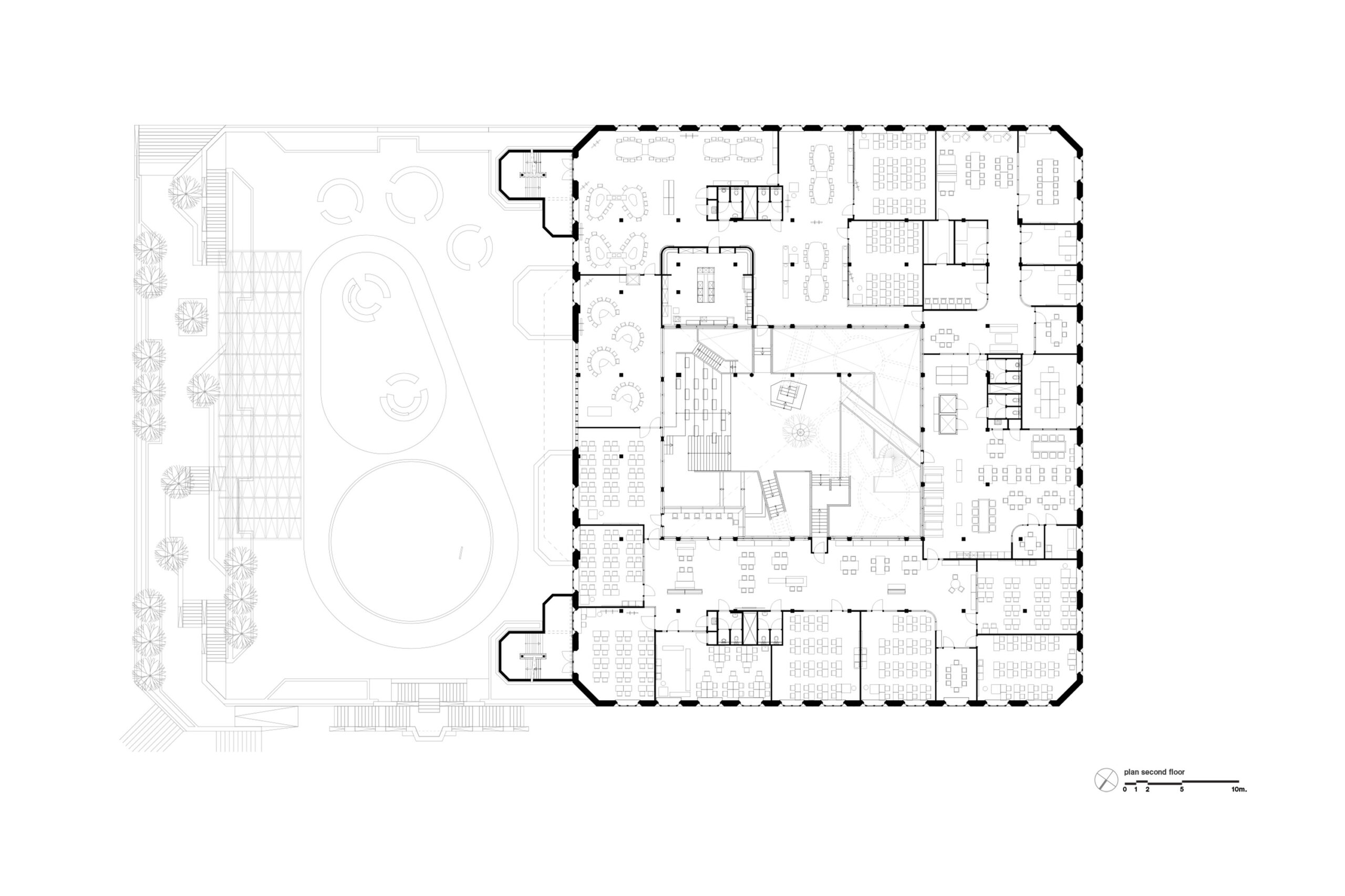
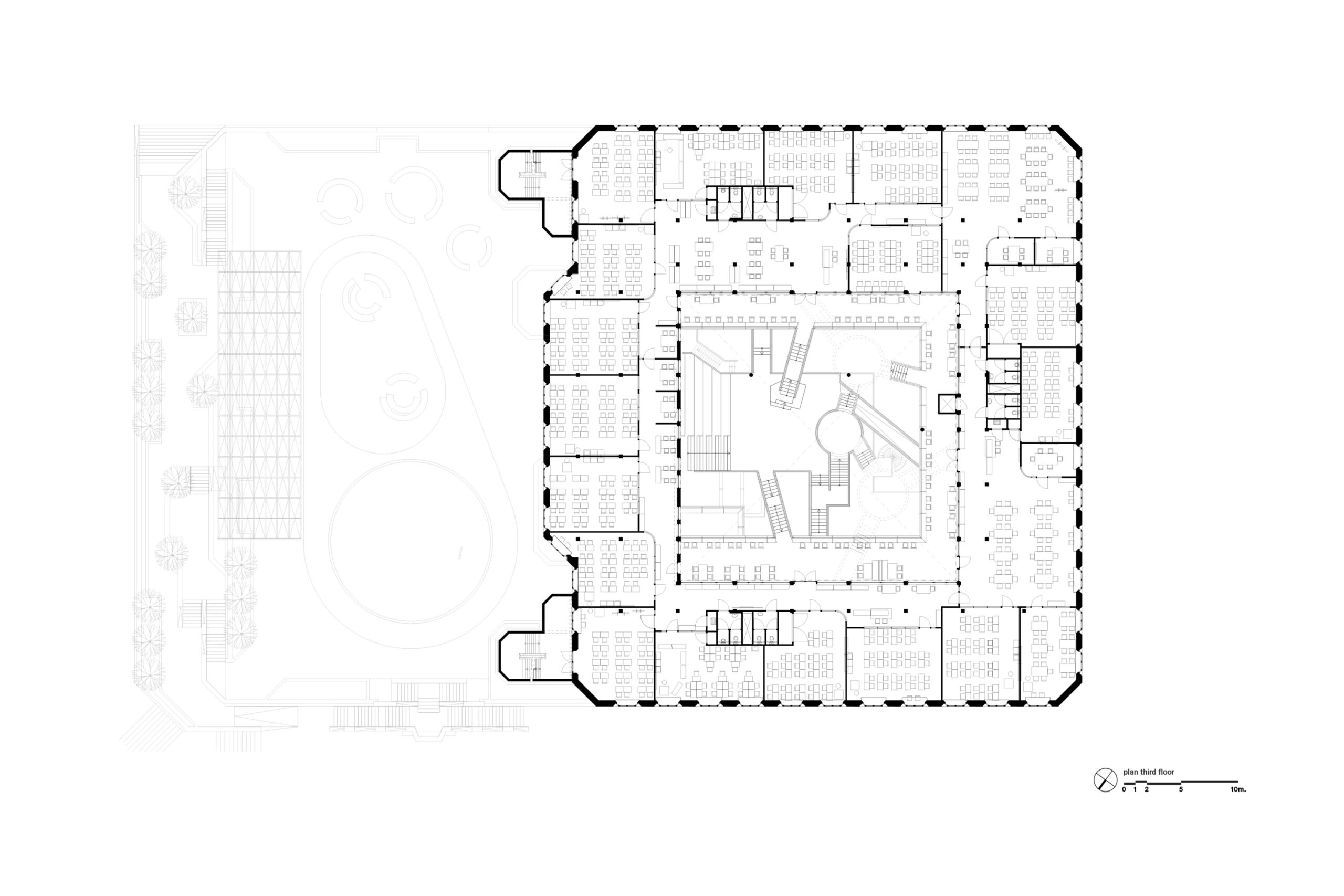
Academie Tien is een openbare, brede middelbare school voor mavo, havo en vwo en is onderdeel van NUOVO Scholengroep. Het ontwerp van het nieuwe schoolgebouw past bij het onderwijsconcept van Academie Tien: leren met lef. De school weerspiegelt de echte wereld, waarbij de school niet alleen de leerlingen voorbereidt op hun toekomstige maatschappelijke rol maar ook aan de leerlingen vraagt om actief de wereld een beetje beter te maken. Om dit op de best passende manier te doen is de school opgedeeld in 8 thuisunits; kleinschalige en huiselijke leergebieden voor groepen van 180 leerlingen. Deze thuisunits liggen met een eigen toegang rond de centrale hal en een deel van de werkplekken ligt aan de balkonranden rond deze hal. Naast dat de school een plek is waar leerlingen worden voorbereid, is Academie Tien ook een bijzondere plek voor studenten van de docentopleidingen. Binnen de school bevindt zich het opleidingshuis, een samenwerkingsverband tussen NUOVO, Hogeschool Utrecht en de Universiteit Utrecht. Binnen het opleidingshuis worden studenten opgeleid volgens de meest recente onderwijskundige inzichten. Ook de studenten en hun opleiders hebben een bijzondere plek, een mini-hogeschool, binnen de school.
Centrale hal is het hart van het gebouw
De centrale hal is daarmee een collectieve werkplek die doet denken aan moderne bibliotheken of werkcafés. Iedere thuisunit biedt een variatie aan werkplekken: van leren en concentreren in de lokalen aan de gevel, naar samenwerken en communiceren op het leerplein en het balkon in de centrale hal. Vanuit elke thuisunit kunnen leerlingen een groot deel van de hele school overzien. Door het open karakter van het gebouw voelen alle gebruikers zich sterk met elkaar verbonden, thuis in één school.

Verticale spreiding bijzondere schoolonderdelen
De bijzondere schoolonderdelen zijn als ‘steppingstones’ in de hoogte gespreid: het kunstencluster en de gymzaal bevinden zich op de begane grond, de ontvangstruimte, conciërge en het centrale plein op de eerste verdieping, het science cluster en de personeelsruimtes centraal op de tweede verdieping. Op de bovenste twee verdiepingen bevinden zich nog vier thuisunits.
Gemeentelijke sporthal ‘Het Plein’
Binnen het integrale denken bevindt de grote sporthal zich direct aanpalend aan de school. De sporthal is 28 meter breed, 49 meter lang en 9 meter hoog. Overdag gebruiken de leerlingen van Academie Tien de sporthal voor hun bewegingsonderwijs. ’s Avonds en in het weekend is deze te huren via de gemeente Utrecht. De sporthal heeft een eigen toegang via de voorzijde aan het centrale plein.
Dakterras voor iedereen
De sporthal is voor twee derde ondergronds geplaatst en biedt daardoor ruimte voor een riant verhoogd openbaar plein. Het openbare dak sluit aan op het hoofdniveau van de school. Dit openbare plein fungeert als ontmoetingsplek voor de buurt en als pauzeruimte voor de leerlingen. Het is een plein met hoogteverschillen en veel groen en daarmee een verrijking van de openbare ruimte in het stedenbouwkundig plan van Leidsche Rijn-centrum.
Gevel met levendig mozaïek
De gevels van het gebouw trekken van veraf de aandacht. Ze zijn bekleed met een levendig mozaïek van keramische tegels, waarin de voorgeschreven opbouw van plint, middendeel en top herkenbaar is. Daarmee voegt het gebouw zich op een eigentijdse manier naar het klassieke beeldkwaliteitsplan van supervisor Jo Coenen. De gevel is extra expressief door een gelaagde, driedimensionale inpassing van erkers die in het gevelvlak zijn teruggelegd.

Zeven kunstwerken die verwondering oproepen
Kunstenaar Elisabet Stienstra heeft zeven kunstwerken ontworpen, die vanaf het voorjaar van 2024 worden geplaatst. De bronzen beelden zijn geïnspireerd door het Geheugentheater van Giulio Camillo. Deze Italiaanse filosoof bouwde een theater dat bezoekers toegang moest geven tot alle kennis op de wereld. De kunstwerken van Elisabet weerspiegelen deze thema’s van menselijke groei, dromen, kennis en wijsheid. De meer dan manshoge bronzen beelden komen op het openbare plein, bij de trappen naar het plein toe en op en aan het schoolgebouw.
Duurzame energie en slimme ventilatie
Het gasloze gebouw, aangesloten op stadsverwarming, is uitgerust met meer dan 500 PV-panelen op het dak. Voor een efficiënte luchtkwaliteit wordt de ventilatie geregeld door een CO2-gestuurde meting, afgestemd op de aanwezigheid van personen in de ruimte. Het schoolgebouw heeft het label ‘Frisse School’: dat betekent dat het gebouw een laag energieverbruik en een gezond binnenklimaat heeft.
Projectteam
Dit project is een ontwikkeling van de Gemeente Utrecht en NUOVO Scholengroep, met Academie Tien als hoofdgebruiker. Het ontwerp is verzorgd door Wiersema architecten en de Architekten Cie., terwijl WAM&VanDuren Bouwgroep de bouw heeft gerealiseerd. De inrichting is eveneens ontworpen door de Architekten Cie. en de kunstwerken zijn van de hand van Elisabet Stienstra.










































