Toelichting a + r Architekten
De stad Aalen wilde een plek creëren met een bovenregionale aantrekkingskracht, een ‘baken voor cultuur en creativiteit’ in het gebied in de binnenstad dat nu bekend staat als Stadtoval. Vroeger werd het terrein bezet door spoorlijnen en later werd het gebruikt door een constructiestaalbedrijf.

In het kader van deze forse uitbreiding van de binnenstad speelt het Kulturbahnhof een centrale rol: het gebouw is niet alleen bedoeld om de diverse culturele instellingen en horecagelegenheden van de stad te huisvesten, maar ook om een grote uitstraling te hebben in de hele regio.
Nadat a + r Architekten in 2015 als eerste was geëindigd in een besloten competitie, ontwikkelde het project zich tussen 2018 en 2020. De inhuldiging van het gebouw in het noordwesten van Aalen's Stadtoval, waar nu een bioscoop, een theater, de muziekschool en Zalen voor culturele evenementen en lokalen voor catering werd gevierd in oktober 2020.

Brand
Voor het architectenbureau, vormde de bouwopgave 'een uitdaging om een harmonieus geheel te creëren uit de bestaande bouwfragmenten en nieuwe elementen'. Na een brand in 2014 vonden alle architecten een aantal historische gebouwengroepen, waaronder het voormalige spoorwegadministratiegebouw en de overblijfselen van de grote hal van een voormalige reparatiewerkplaats. De bestaande industriële architectuur vormt een belangrijk structureel document van de spoorweggeschiedenis in Aalen - dit zijn de overblijfselen van typische lokale gebouwen met enkele opvallende kenmerken, zoals een zandstenen gevel en korte zijgevels.
(Zij)gevel
De sterk verwoeste gevel werd op een gestileerde manier vervangen door gekleurd zichtbeton. Waar mogelijk probeerden de architecten het historische karakter nieuw leven in te blazen. Zo werd de zandstenen gevel op de daarvoor bestemde plaatsen door steenhouwers afgewerkt en gerepareerd. Door de gladdere oppervlakken van de nieuwe zandsteen zijn de nieuwe componenten bewust als zodanig zichtbaar gelaten.

Ook de daken van de korte zijgevels werden herbouwd volgens het historisch ontwerp. De langwerpige gevel werd daarentegen heel anders behandeld: a + r Architekten verving hem door een langwerpig, kubusvormig volume bekleed met gevouwen geperforeerde plaat, waardoor een ruimtelijke verwijzing naar de stadsranden van de wijk naar het zuiden ontstond. De semi-transparante gevel van geperforeerde platen laat het volume van de balk doorschijnen en creëert associaties met een doekachtig gordijn en hedendaagse industriële architectuur ”, beschrijft de projectmanager het ontwerpconcept.

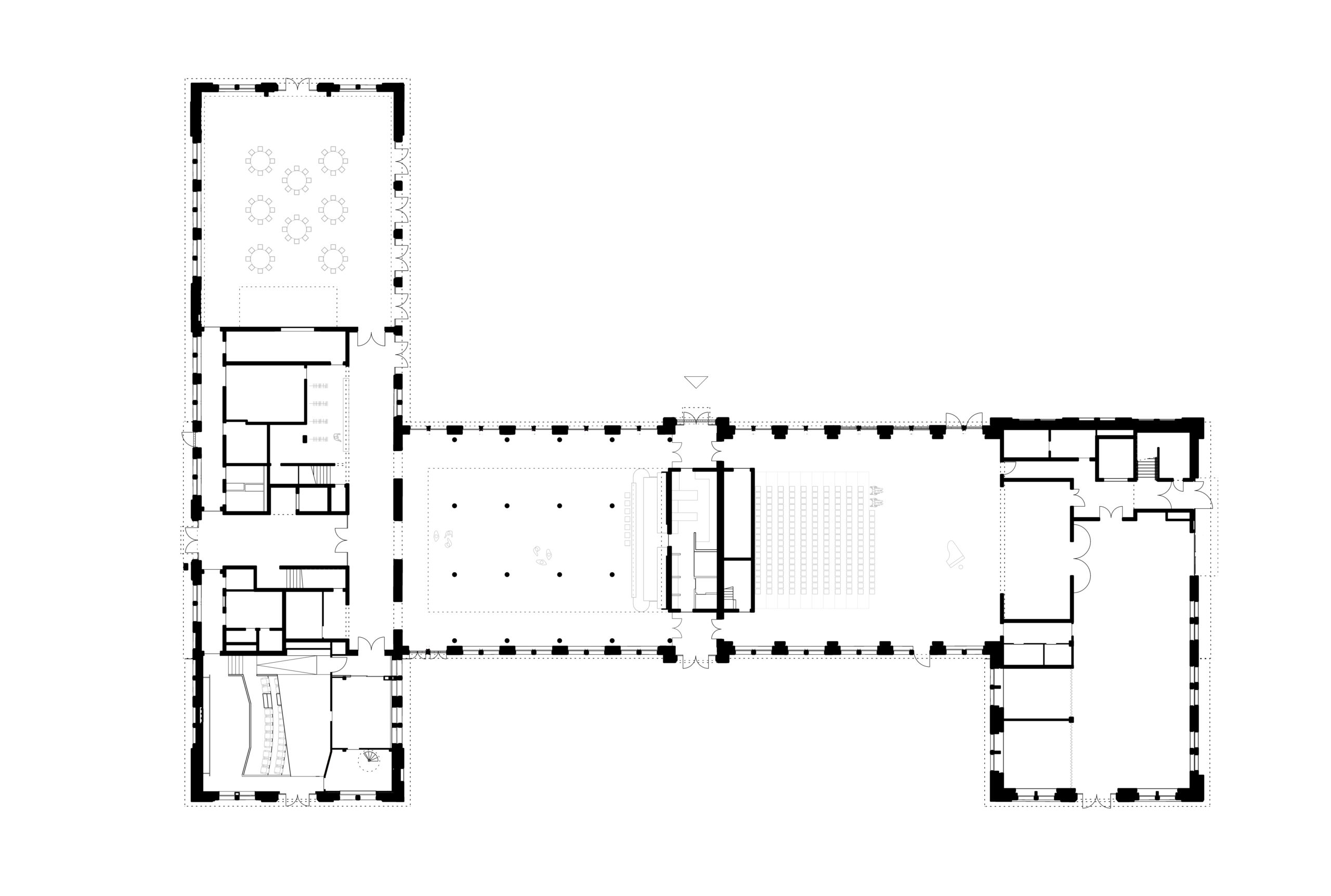
De historische gevel vormt de schil van een royale ruimte. In deze volledig gestripte ruimte zijn nieuwe dozen geplaatst, die voor verschillende doeleinden zijn ingedeeld. Deze boxen ondersteunen en verstijven ook de nieuwe draagconstructie. De grote zalen en openbaar gebruik bevinden zich in het oude gebouw. De muziekschool en de theaterateliers zijn ondergebracht in het nieuwe, kubusvormige volume dat er bovenop is gebouwd.
Deze ruimtes die culturele productie en educatie 'dienen', buigen symbolisch over de showpodia voor het cultureel geïnteresseerde publiek. Een belangrijk aspect voor de architecten was het gebruik van historische componenten zoals materialen, ramen en een zichtbare dakconstructie om een authentieke en zelfstandige sfeer te creëren voor de verschillende culturele locaties.













































