Toelichting door Bureau Fraai - Red Ruby staat op het industriële Oostenburger Eiland in Amsterdam. Het eiland bood in de 17e en 18e eeuw ruimte aan de scheepswerf van de VOC, maar bleef ook daarna een industrieel gebied waar onder andere machines en locomotieven gebouwd werden in de nog steeds bestaande iconische Van Gendthallen.
Transformatie
Oostenburger Eiland wordt de komende jaren getransformeerd tot een hoogstedelijke, levendige en gemengde wijk. Voor het ontwerp van het rode unikleur gebouw Red Ruby heeft Bureau Fraai zich laten inspireren door de bestaande Van Gendthallen die gekarakteriseerd worden door roodbruin metselwerk en zadeldaken. Om die reden is er veel aandacht besteed aan het metselwerk van Red Ruby met een focus op een afgewogen compositie van metselverbanden, metselrichtingen en verspringende dieptes.

Contrastrijk Red Ruby
De combinatie van het rood gevoegde metselwerk, de rode kozijnen, hekwerken en beplating heeft geresulteerd in rijke en verfijnde unikleur gevels. Dit gecombineerd met het archetypische zadeldak past daarmee naadloos in het beeldkwaliteitsplan van het gebied waarin gevraagd werd om contrastrijke gebouwen uit één stuk met elk een sterke eigen identiteit.
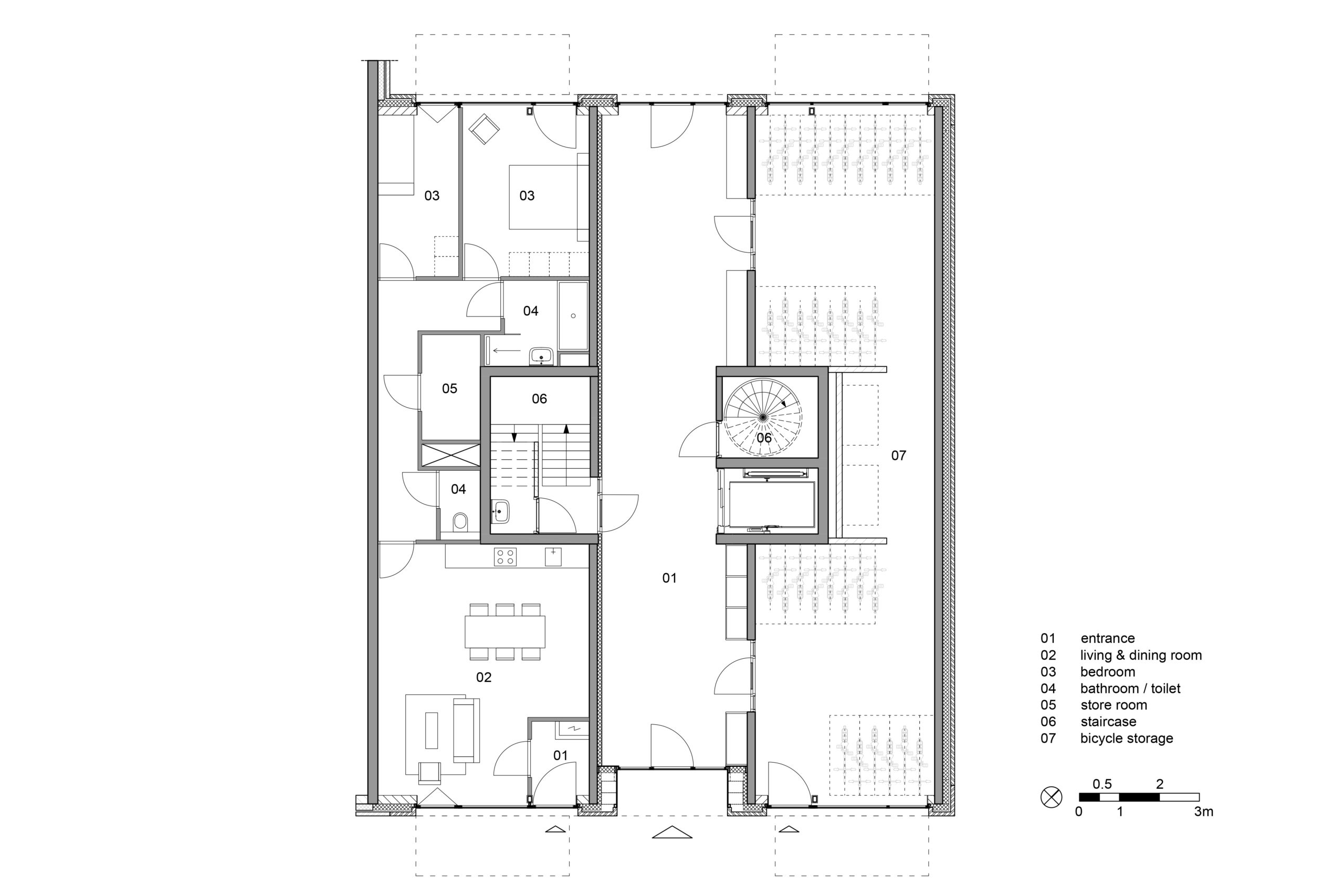
Het woongebouw bestaat uit zes verdiepingen met in totaal 21 middelgrote appartementen. De 20 appartementen op de verdiepingen hebben een open indeling met ruime balkons en grote raampartijen waardoor de woningen heel ruimtelijk aanvoelen. De vier appartementen op de bovenste verdieping die zich onder de schuine kap bevinden hebben tevens een extra hoge verdiepingshoogte waardoor bijvoorbeeld een tussenvloer tot de mogelijkheden behoort.

Op de begane grond is de ruime entreehal vormgegeven als een interne steeg die de straat verbindt met de collectieve binnentuin en de fietsenstalling. Meer dan alleen een entreehal is het de plek bij uitstek om je buren tegen het lijf te lopen. De fietsenstalling is bewust niet verstopt in een kelder maar juist vormgegeven als een integraal onderdeel van de entree met een prominente positie aan de straat en een hoogwaardige afwerking en belichting.



























