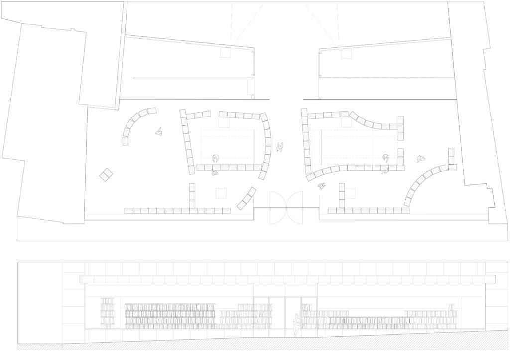
Toelichting door Atelier Tomas Dirrix - Het ontwerp voor de algemene scenografie voor Collectible in het modernistische Vanderborght-gebouw zorgt voor een speelse en wonderlijke entree, een ruimte die ontdekt kan worden - zoals een paleis, een ruïne of een grot.

Als reactie op de zeer unieke en bijzondere objecten op de Designbeurs is in plaats daarvan een vrij algemeen materiaal gebruikt, namelijk AAC-blokken, blokken van lichtgewicht beton. Door deze aan te passen en te stapelen, heeft Atelier Tomas Dirrix een ruimte, een architectuur, bedacht met een vergelijkbare inventiviteit als het maken van een meubelstuk.
Sommige onderdelen, zoals aan te raken oppervlakken, zijn afgewerkt met kleipasta of een laag vilt.

















