Toelichting MVRDV | Beeld Ossip van Duivenbode
Het gebouw uit 1891 is ontworpen door Jan van Looy en heeft een rijke geschiedenis. Na de bouw voor de New York Life Insurance Company was het pand een van de hoogste bedrijfsgebouwen in Amsterdam. Gedurende het grootste deel van de 20e eeuw was het de thuisbasis van het Metz & Co warenhuis. In 1933 werd het gebouw uitgebreid met een dakkoepel van staal en glas ontworpen door modernistisch architect Gerrit Rietveld. Ondanks dit erfgoed werd het gebouw in 2013 een Abercrombie & Fitch-winkel. Als gevolg hiervan werden de bovenste verdiepingen, inclusief het Rietveld-paviljoen, voor het publiek gesloten en werden veel van de oorspronkelijke interieurdetails bedekt.

Net als op hun andere locaties wereldwijd, verandert de komst van een NIO House het gebouw niet in een doorsnee autoshowroom. Het NIO House Amsterdam is een openbaar gebouw met diverse functies die bijdragen aan de buurt waarin het zich bevindt. Boven de autoshowroom op de begane grond bevindt zich een café met kinderhoek. De tweede verdieping is de thuisbasis van het Forum, dat lokale bedrijven en evenementenorganisaties kunnen gebruiken voor workshops, presentaties en kleinschalige lezingen, samen met een 'Joy Camp' waar kinderen kunnen spelen. De derde verdieping beschikt over coworking ruimtes die geboekt en gebruikt kunnen worden door het brede publiek. De vierde verdieping heeft een kunst- en designgalerie die gebruikt kan worden om NIO-producten te tonen of als platform voor het werk van lokale kunstenaars. De vijfde verdieping is gereserveerd voor NIO's eigen kantoren en op de zesde verdieping en het dakterras-paviljoen bevinden zich evenementenruimtes.
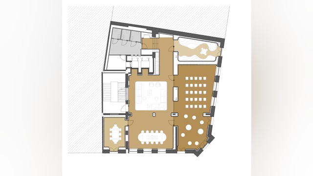
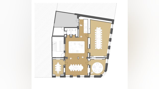
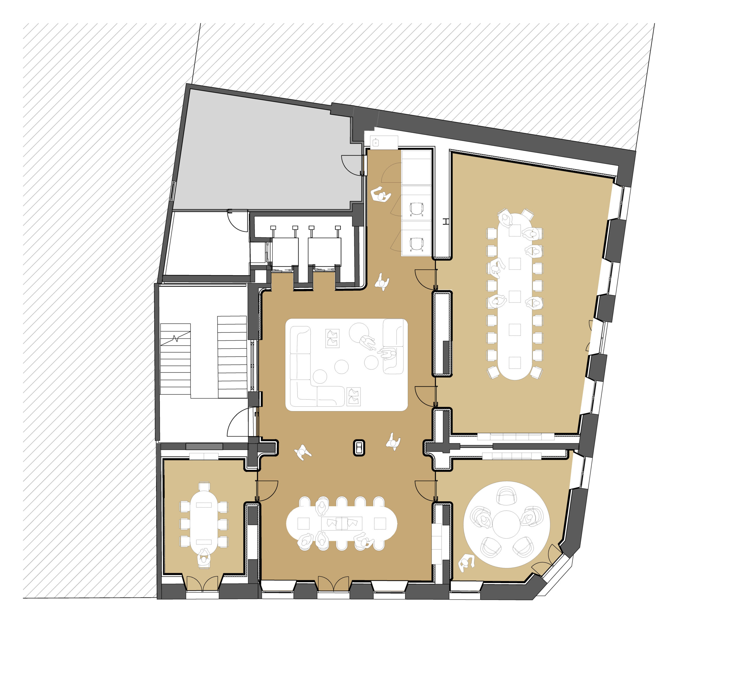
De trap is een centraal element in het ontwerp van MVRDV en zichtbaar vanuit de belangrijkste ruimtes op elke verdieping ter oriëntatie van de bezoekers. Ook zijn de historische details van de trap opnieuw zichtbaar gemaakt. De ruimtes zijn open om een lichte omgeving te creëren met verhoogde plafonds en zonder onnodige binnenmuren. Verticale verbindingen, zoals het atrium dat de begane grond met het café verbindt, zijn in het ontwerp benadrukt.

'De uitdaging van dit project was het samenbrengen van de geschiedenis van dit gebouw met de identiteit van NIO, een bedrijf dat in vele opzichten geïnteresseerd in de toekomst is', zegt Jacob van Rijs, medeoprichter van MVRDV. 'In zekere zin stonden we voor dezelfde uitdaging die Rietveld zo'n 90 jaar geleden zo elegant had opgelost. NIO House Amsterdam laat zien hoe het oude en het nieuwe elkaar kunnen aanvullen en uiteindelijk verrijken.'
Het ontwerpteam heeft een selectie materialen gebruikt die geleidelijk met elke verdieping lichter wordt. Dit verwijst naar een reis door de atmosfeer van aarde naar lucht. Op de begane grond en
eerste verdieping zijn de muren bekleed met een 3D-geprint materiaal gemaakt van gerecyclede drankkartons, ontwikkeld in samenwerking met het in Amsterdamse bedrijf Aectual. Dit materiaal geeft de muren een aardse kleur en gegroefde textuur. Op de tweede verdieping zijn de muren en vloeren afgewerkt met hout. De houten vloer op de derde verdieping wordt aangevuld met milieuvriendelijke verf op de muren. Op de vierde verdieping hebben de muren een perzikoranje kleurverloop, dat een focus legt op de gewelfde plafonds van het oorspronkelijke gebouw.

De verticale kleurverandering bereikt zijn hoogtepunt op de bovenste twee verdiepingen. De muren van de zesde verdieping veranderen geleidelijk van goud naar de hemelsblauwe vloer, afwerkingen en plafond in het Rietveld-paviljoen. De essentie van dit stuk modernistische geschiedenis blijft bewaard. Verfijnde afwerkingen zoals het tapijt en de gordijnen helpen om het paviljoen tot een perfecte ruimte te maken voor evenementen, zoals gala's en modeshows - net zoals bijna 100 jaar geleden. De glazen wanden van het ontwerp van Rietveld bieden bezoekers een panoramisch uitzicht over de daken van Amsterdam.
NIO House Amsterdam is het Europese flagship store van de elektrische autofabrikant en het grootste en derde NIO House ontworpen door MVRDV. Eerder werden NIO House Chongqing, geopend in 2019, en NIO House Rotterdam, geopend in 2023 als eerste locatie in Nederland, ontworpen door MVRDV.











































































