Voor het ontwerp hebben de architecten nauw samengewerkt met Matapopore Charitable Trust, een organisatie die de cultuur van de lokale Ngāi Tūāhuriri-bevolking wil behartigen bij het herstel van Christchurch. Deze kennis over voorouders, tradities en verhalen zijn onder andere gebruikt voor de materiaalkeuze en de oriëntatie van het gebouw.

Community Arena
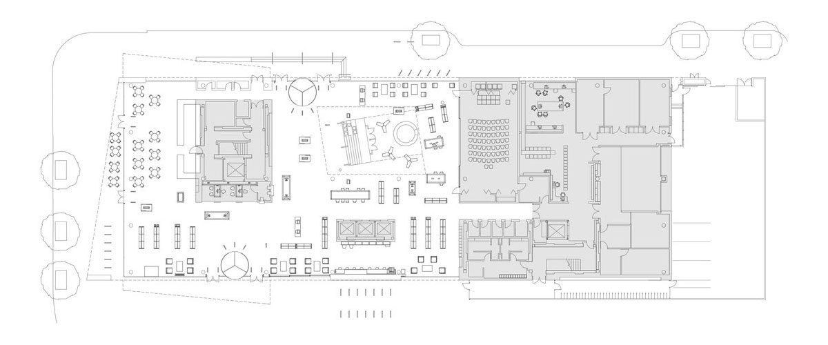
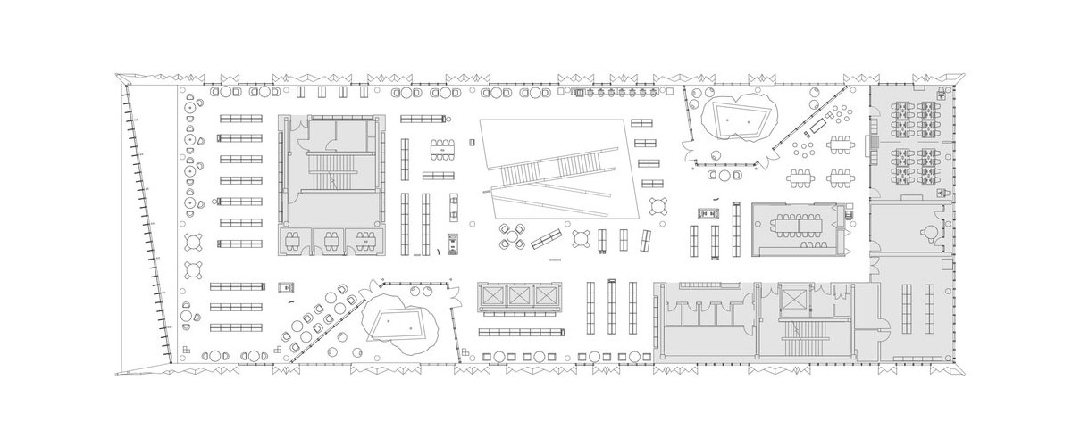
Op de begane grond opent het gebouw zich met een café richting het plein. Vanaf hier leidt een brede trap naar de eerste verdieping met een Community Arena voor diverse maatschappelijke activiteiten. De bovenste drie verdiepingen herbergen verschillende boekencollecties, personeelskantoren, vergader- en studeerkamers, een productiestudio, een computerlab en een muziekstudio.

Aardbevingsbestendige constructie
Samen met Lewis Bradford Consulting Engineers is gezorgd voor een aardbevingsbestendige constructie. Dankzij een seismisch krachtbestendig systeem van betonnen muren die het gebouw isoleren van piekversnellingen kan het gebouw zwaaien en vervolgens weer naar zijn oorspronkelijke positie terugkeren. Deze moet de bibliotheek beschermen tegen toekomstige aardbevingen.
Lees verder
Monografie Stadsbibliotheken
De bibliotheek is al lang niet meer een plek waar je alleen naartoe gaat voor een boek. Het is de nieuwe huiskamer van de stad. In deze monografie bespreken we vijf actuele projecten.


























