Toelichting door Z33 - In 1958-1959 bouwde G. Daniëls een tentoonstellingsruimte die aansloot bij de tuin van het voormalige Hasseltse begijnhof: Vleugel 58. Samen met het voormalige begijnhof werd het de voorbije 17 jaar ingenomen door Z33. In die periode groeide het huis uit tot een kunstinstelling met internationale erkenning voor zijn thematische tentoonstellingen, die vaak een platform bieden aan kunstenaars en ontwerpers die op het punt van hun doorbraak staan.
Vleugel 58 was al die jaren een geweldige locatie voor modernistische schilder- of beeldhouwkunst. Het kon bogen op een gezellig auditorium met een fifties look en grote ruimtes die baadden in daglicht. Maar de opslag- of productieruimte en de galerijen waren na verloop van tijd niet altijd geschikt voor grootschalige installaties, video’s of ruimte-specifieke werken. De oude begijnhuisjes, die gebruikt werden als tentoonstellingsruimte en kantoren, voldeden ook niet langer aan de verwachtingen op vlak van hedendaags bezoekerscomfort.

Naar een nieuw tentoonstellingsgebouw
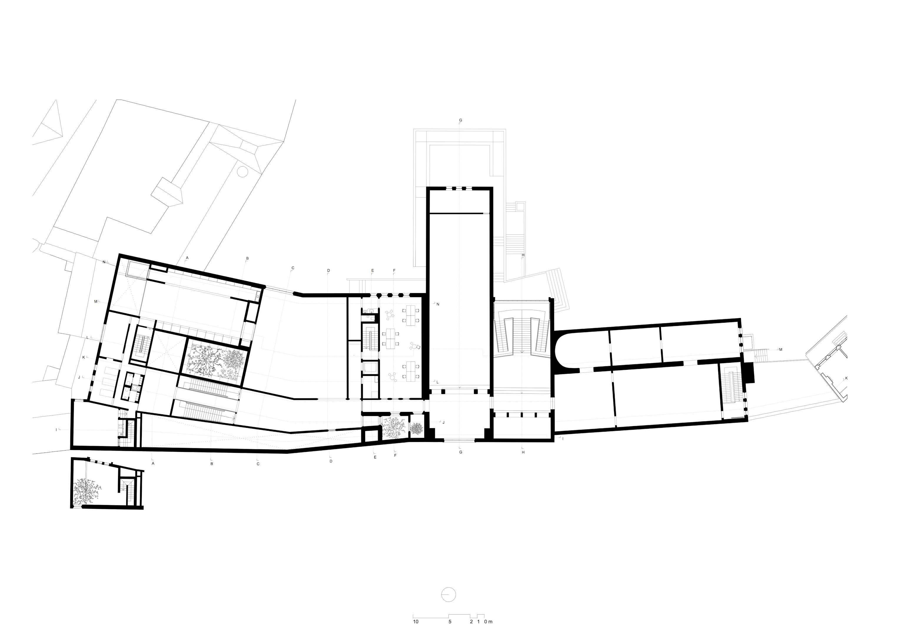
Tegen 2010 werd het duidelijk dat Z33 dringend nood had aan een ruimte die de huidige ambities beter zou inlossen. De locatie maakte het echter niet gemakkelijk om een oplossing te vinden. Het hele begijnhof— of toch zeker de buitenkant ervan — en de resten van de oude kerk in de tuin moesten immers bewaard blijven. Het is nooit de bedoeling geweest om Vleugel 58 te vervangen door een volledig nieuw gebouw, omdat het beschikt over mooie zalen met veel daglicht. In 2010 deed zich echter een mooie kans voor toen een aanpalend schoolgebouw, naast de bestaande vleugel, leeg kwam te staan. De provincie Limburg, die op dat moment nog de inrichtende macht was van Z33, kon het gebouw aankopen. Er werden plannen gemaakt om de inrichting uit te breiden op dit perceel, waarna Z33 de begijnhuisjes zou verlaten.
Hoe de nieuwe huisvesting zich tot het oude begijnhof en de tuin zou verhouden is lang een open vraag gebleven. Een toekomstige uitbreiding van Vleugel 58 moest een nieuwe interpretatie geven aan de relatie tussen het gebouw, de straat en ook de tuin. Maar de grootste uitdaging zou zijn om een passende aanvulling te ontwerpen voor de uitgesproken formele taal van Vleugel 58, en van de omringende middeleeuwse stadsvorm. Welke architectuur kan de uitgesproken vormentaal van ‘de Vleugel’ laten rijmen met de middeleeuwse stad? Is dat nodig, of moet je de breuken gewoon laten zien?
Ontwerp voor de stad
Z33 koos voor het voorstel van de Italiaanse architecte Francesca Torzo, wiens concept onlosmakelijk verbonden is met het omringende stadsweefsel. Deze link met de stad is zelfs essentieel. Natuurlijk heeft de omvang van het gebouw een enorme impact op de buurt. Maar het ontwerp maakt bepaalde keuzes die nog treffender zijn. Het meest in het oog springend is de gevel aan de Bonnefantenstraat, de toekomstige hoofdingang van het gebouw, die bijna volledig dicht is, buiten een enkele kleine insnijding in een grote, ononderbroken muur.

Dat is meer dan een vondst. Het gebaar versterkt het karakter van het driehoekige bouwblok dat zich aan elke zijde presenteert als een gesloten bakstenen wand. De straat is bijna volledige afgezoomd met blinde muren. Torzo volgt dit patroon door baksteen te gebruiken als bouwmateriaal. Maar in tegenstelling tot, bijvoorbeeld, het recent gebouwde museum van Christ en Gantenbein in Basel, is deze bakstenen muur ‘echt’: ze simuleert geen muur door steenstrips op een isolatielaag te plakken. Er is zelfs geen voeg te zien. Een echt statement dat Torzo tot heel wat denkwerk noopte. Het enige verschil met de andere muren in de straat is dat de bakstenen een ongebruikelijke ruitvorm hebben in dieppaarse, roodachtige kleurschakeringen. Dit geeft de muur dan weer een zekere lichtheid, als een huid die het huis omsluit en een intiem gevoel geeft.
Daaruit blijkt hoe precies Torzo naar de context kijkt. Ze zorgt ervoor dat het gebouw exact in de context past. Zoals een puzzelstukje dat op zijn plaats valt tussen Vleugel 58, het begijnhof, het jenevermuseum en de huizen verderop in de straat. De nieuwe blinde gevel verbindt de bestaande gevels met een licht geknikte wand.
Aan de tuinzijde zie je een zelfde zorgvuldige inpassing. De achtergevel verdwijnt achter de aangrenzende muren van Vleugel 58 en het jenevermuseum. Daardoor creëert de nieuwe vleugel een nieuwe binnentuin. Die tuin loopt tot aan de slenk van de Nieuwe Demer, en weerspiegelt zo de 18de-eeuwse begijnhoftuin. Met een ritmisch patroon van hoge, smalle ramen sluit deze gevel aan op de esthetiek van Vleugel 58. Enkel hoog boven, in het midden, doorbreekt een imposant raam dat patroon. Hier merk je dat het nieuwe gebouw niet slaafs de ruimte tussen het bestaande invult, maar er ook een positie tegenover inneemt. Letterlijk. Die nieuwe tuin wordt aangevuld met een terras op het einde van de dwarse vleugel van het 58-gebouw. Het ligt flink hoger dan de tuin zelf, als een uitkijkpunt naar de oude begijnhoftuin. Het bepaalt een nieuw zicht, als alternatief voor de hoofdas uit de 18de eeuw.

Neen tegen spektakel
Maar dan nog is het gebouw redelijk onzichtbaar, toch als je zichtbaarheid ziet als het effect van een ontwerp dat de omgeving domineert en spectaculair maakt. Van buitenaf gezien is dit gebouw onspectaculair, het breekt met de verwachte en voorspelbare trends in de museumarchitectuur. Het is niet opzichtig, eigenzinnig of onbegrijpelijk in zijn bouwkundige logica, zoals vaak het geval is bij recente gebouwen. Door de opvallende afwezigheid van spectaculaire kenmerken kun je je afvragen waar de architectuur in schuilt. Die is er dus niet, als je gelooft dat architectuur bestaat bij gratie van wild gesticuleren. Maar als je architectuur begrijpt als een gebaar dat verschillen op een dwingende manier in de wereld zet, dan is dit gebouw een extreem voorbeeld van architectuur.
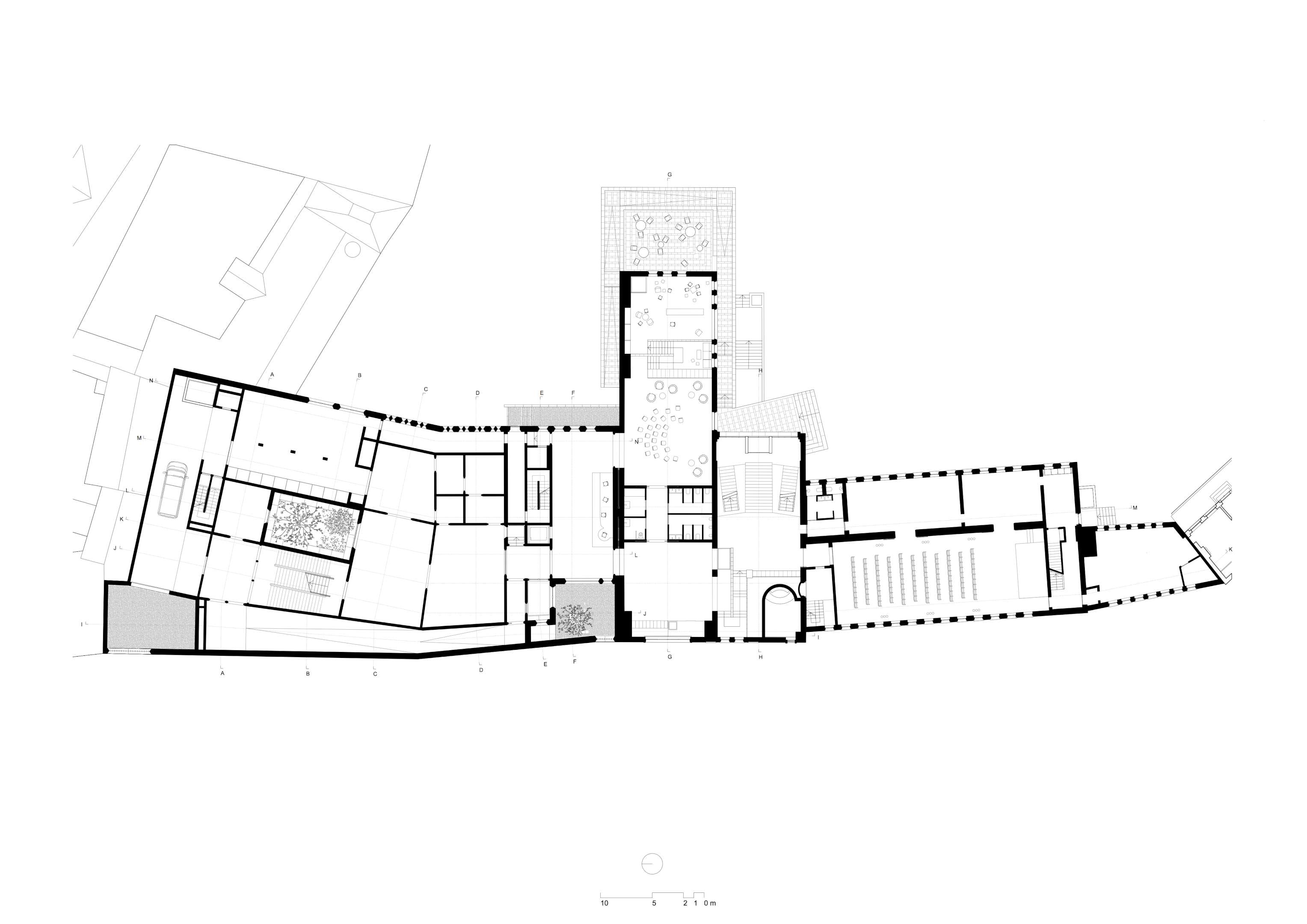
Dat blijkt meteen als je door de nieuwe hoofdingang aan de Bonnefantenstraat, de smalle spleet in de straatmuur, stapt. Je wordt onmiddellijk meegezogen in een duizelingwekkende ruimtelijke complexiteit, met een suite van ruimtes. Je komt niet meteen binnen, maar betreedt een kleine patio. De hoge muren eromheen springen op de etage vooruit, en vernauwen zo de koker. Maar tegelijk bieden grote openingen in de wanden overal doorzichten naar andere binnen- en buitenruimtes, zoals een daktuin of een balkon op de etage of de ontvangstruimte op de begane grond. Dat spel van zichten wordt op de spits gedreven door een nog kleiner koertje, een schacht eigenlijk, zo’n 1,6 bij 1,6 meter, uitgespaard in de wand links van de inkompatio. Op het gelijkvloers kan je ze betreden, maar op de etage is ze afgesloten, zodat de schacht werkt als een ‘canon à lumière’ boven een klein impluvium.

Dit spel van muren, drempels en doorzichten maakt je op een indringende manier attent op het vermogen van architectuur om je waarneming en ervaring te sturen. Op luttele vierkante meters krijg je een initiatie in het gebouw en de locatie. Je lijkt wel een andere wereld binnen te stappen, al is ze dan het spiegelbeeld van de wereld buiten de muur. Het effect lijkt niet toevallig sterk op de manier waarop de tuintjes van de begijnhuisjes een gradiënt van publiek naar privé en van groot naar klein creëren.
De overgangsrite is daarmee niet aan zijn einde toe. Eens voorbij het sas, dat je definitief binnentrekt in het gebouw, volgt nog een lange weg vooraleer je aan de tentoonstellingszalen komt. Na twee keer een hoek om te slaan, kom je in een lange gang met een licht hellende vloer. Ze biedt een verbijsterende ervaring: aan het begin is ze nauw om breder te eindigen, maar ze is wel dertig meter lang en liefst 11 meter hoog. Het duurt niet lang voor je door hebt dat je in een ‘straat’ wandelt die parallel loopt aan de straat buiten, alsof je je in een parallel universum bevindt. Als je deze steeg betreedt, kan je door de knik in de wanden onmogelijk zien dat er aan het einde ook een uitweg is. Ze lijkt blind, op een vensteropening na, hoog in de rechterwand. Een vreemde betoverende ervaring.

De steeg eindigt met een dubbele opening in de muur, gescheiden door een smalle tussenpost met schuine randen. Het is een detail dat overal in het gebouw terugkeert. In contrast met de vorige ruimte, betreed je een lage ruimte die uitgeeft op twee andere plekken. Rechts leiden twee zwierige kolommen naar een indrukwekkende trap met een centrale vlucht, die op het tussenverdiep ontdubbeld wordt in twee zijdelingse trappen. Het licht stroomt hier uit een glazen dakvlak naar beneden. Recht vooruit ontdek je een extreem hoge, quasi vierkante ruimte, die gefilterd licht naar beneden strooit. Eén groot raam geeft uit op een besloten binnentuin.
Wie de bestaande Vleugel 58 kent, voelt de verwantschap. De trap is een omgekeerde weerspiegeling van de bestaande hoofdtrap. Voorbij de trap val je van de ene verbazing in de andere. Op het gelijkvloers passen de zalen als doosjes rond de binnentuin als lichtbron. Ze gaan van groot naar klein en van hoog naar laag, met als detailvoering in de plafonds een decoratief reliëf in diamantvorm. Je weg leidt je terug naar de inkom, vanwaar je ongemerkt overstapt naar Vleugel 58. De oude vloer werd verlaagd tot het niveau van de Bonnefantenstraat. Een afwisseling van trappen en doorbraken leiden je naar de inkom van het oude gebouw, maar ook naar de uitkijk die Torzo bedacht op de kop van de dwarsvleugel.
Op de etage van het nieuwe gebouw bevindt zich een één grote zaal, met een ver doorzicht naar de bestaande vleugel. Het reliëf in het plafond heeft hier een golvende beweging, die de onregelmatige plattegrond van de ruimtes volgt. Het eindpunt is een buitenmaats raam in de grootste zaal dat je voor het eerst een blik geeft op de begijnhoftuin en het Jenevermuseum. Dat uitzicht is een orgelpunt, maar maakt ook het verschil duidelijk met de manier waarop Vleugel 58 uitzicht bood. Daar is er vanaf de hoofdtrap meteen een panoramisch zicht op de tuin. Op de etage volgt in de dwarsvleugel een brede blik op de straat. Bij Torzo is het uitzicht een eindpunt, zonder zicht op de straat. Er is slechts een intern uitzicht, wat de introverte aard van het gebouw benadrukt.

Totaalbeleving
Vleugel 19 biedt je een verbazingwekkende waaier van ruimtelijke ervaringen. Dit komt door de opmerkelijke verschillen in breedte, hoogte en lengte van de kamers, maar ook door de manier waarop ze overgaan in elkaar (volledig blinde ruimtes wisselen af met ruimtes met zeer lange zichtlijnen). Het onderliggende gevoel dat door de variatie in ruimtes wordt gecreëerd is dat van een parallel universum, ook al omdat het zicht naar buiten toe zeer beperkt is. Je ziet de tuin pas terug in de laatste tentoonstellingsruimte op de bovenste verdieping.
De ervaring die het gebouw biedt is niet enkel visueel, maar biedt ook sterke tastbare en ruimtelijke sensaties. Deze complexiteit is volledig architecturaal tot stand gekomen en niet belemmerd door referenties, overdadige technologie, enz. Zelfs de technische bravoure zit veelal verscholen in de muren. Dit gaat vooral over de vormgeving van de ruimtes en het zintuiglijk gebruik van materialen. Door de vele transities, schaalbreuken, verschillen in lichtinval enz. voelt het gebouw nochtans ook aan als een miniatuurstad, een soort van kasba of, misschien wel vanzelfsprekend, een analogie van de ruimte van het begijnhof zelf, met de aaneenschakeling van steeds kleiner wordende ruimtes. Zoals hierboven reeds aangehaald kan dit gebouw daarom niet volledig begrepen worden zonder de context ervan te kennen.
Monografie Musea
In binnen- en buitenland openen veel nieuwe musea. Aan de hand van vijf actuele projecten bespreken we de toekomst van deze typologie.
Door het specifieke karakter van de ruimtes, de verbindingen en het materiaalgebruik stelt dit project een uitdaging voor toekomstige curatoren. Het druist in tegen de stijl van recente gebouwen die aan de buitenkant spectaculair ogen maar binnenin de eigenlijke tentoonstellingsruimtes gewoon als witte dozen poneren. In deze kunstinstelling daarentegen, zijn de tentoonstellingsruimtes erg dwingend, zowel in hun fysieke als in hun ruimtelijke ontwerp.
Curatoren en kunstenaars zullen het karakter van elke ruimte niet enkel als een op zichzelf staande ruimte moeten beschouwen, maar ook als onderdeel van een route met een bepaalde spanning die naar een bepaald resultaat leidt. De inzet is zelfs nog hoger omdat de originele Vleugel 58 ook al zeer uitgesproken en boeiende kenmerken had. Curatoren zullen een manier moeten vinden om het oude en het nieuwe gebouw met elkaar te verzoenen voorbij de verbindingen die Torzo heeft voorzien. Maar dat is dan ook de rode draad van dit project: echte architectuur bieden om kunst tentoon te stellen in plaats van kunst te onderdrukken door een gebouw dat een overdadig gedecoreerde loods lijkt aan de buitenkant en een nietszeggende leegte biedt binnenin.








































