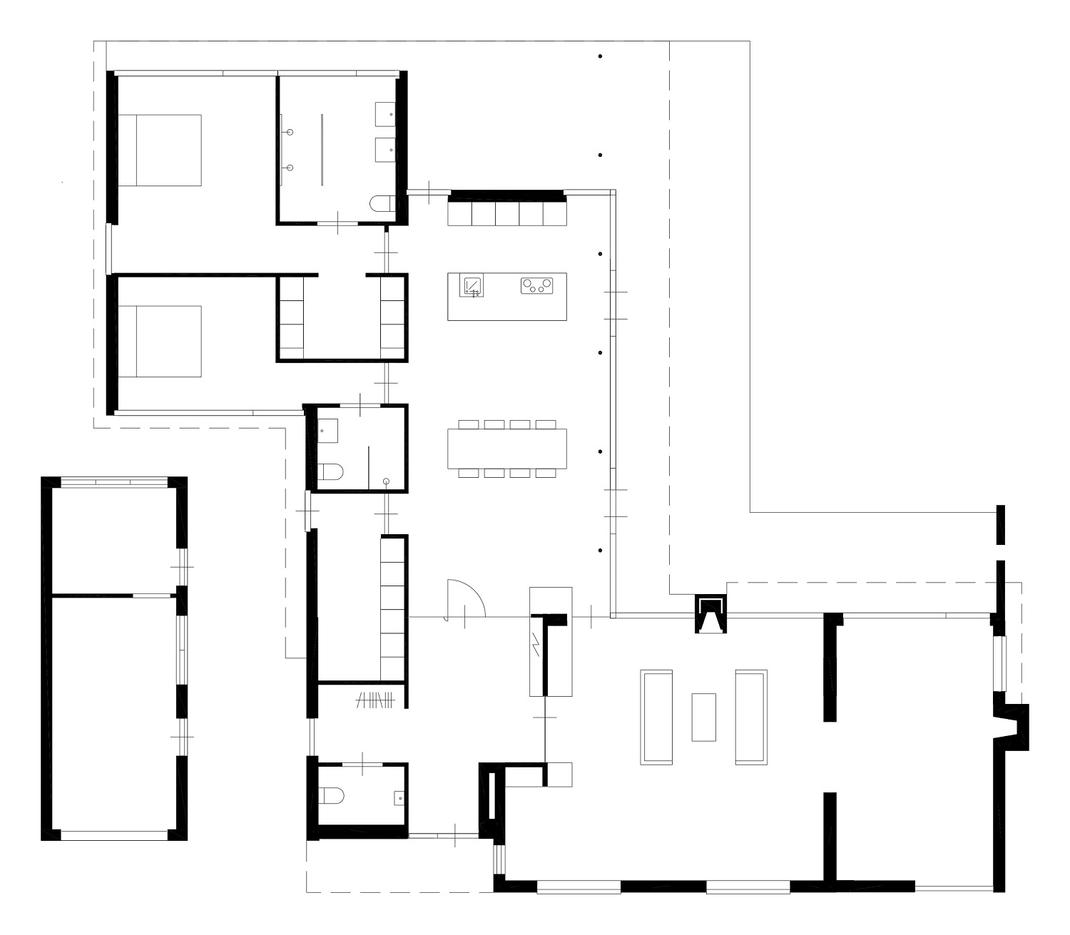
Vóór de verbouwing herbergde de bungalow een voorvleugel met woonkamer en keuken en een achtervleugel met een groot aantal kleine slaapkamers. Wielen Architecten koos voor een duidelijke knip: de voorvleugel ingrijpend moderniseren en verduurzamen, de slaapvleugel geheel vervangen. De keuken werd verplaatst naar de achtervleugel.

Verbindende scheidingswand
In de nieuwe situatie zijn voor- en achtervleugel op natuurlijke wijze verbonden door een lange wand die vanaf de voordeur naar achter loopt en die de blik van de bezoeker vanuit de entree automatisch in de richting van de tuin leidt. In de achtervleugel fungeert de wand ook als de scheiding tussen het privé-deel (slaapkamers en badkamers) en het meer publieke deel (keuken). De tegenoverliggende glazen wand biedt uitzicht op het groen buiten.

Massiefhoutbouw
De wanden, muren en plafonds Jaren van de achtervleugel zijn geheel opgetrokken uit kruislaaghout (CLT). Dit zorgt het hele jaar door voor een prettig binnenklimaat én maakt het mogelijk om met minimale ondersteuning brede dak-overstekken te realiseren. De overstekken, op drie meter hoogte, bieden ’s zomers beschutting tegen de hitte en laten in de koudere jaargetijden de laagstaande zon naar binnen komen.

Moderne veranda
De keuken achter in de vleugel gaat over in een grote, moderne veranda. Hier wordt bijna ongemerkt buiten naar binnen getrokken. De veranda is ruim genoeg om als buitenkamer te dienen – hier kun je al vroeg in de lente de avonden doorbrengen. Het brede overstek van de veranda biedt tevens een fraaie omkadering van het uitzicht.
Eindresultaat
De buitenmuren van de beide vleugels zijn wit gestuct, zodat oudbouw en nieuwbouw een geheel vormen. Het eindresultaat is een ruimere en comfortabele bungalow waarvan het ingetogen karakter bewaard is gebleven en waarin bewoners en bezoekers meer in contact staan met de natuur.























