Toelichting door Haworth Tompkins Architects – Sinds 2006 werkte Haworth Tompkins samen met het team van het Battersea Arts Centre (BAC), de lokale gemeenschap en een aantal theatermakers aan een reeks experimentele projecten. Geleidelijk is het gebouw getransformeerd in een levendige omgeving voor presentaties en een gastvrij centrum voor de lokale gemeenschap.

Het doel was om een 21ste-eeuws publiek cultureel gebouw te realiseren. De traditionele grenzen tussen auditorium, foyer en leefruimten zijn daarom doorbroken. De architect maakte gebruik van de bestaande rijkdom van het gebouw en de gewenste gebruikspatronen van de kunstenaars. Het project begon met een aantal geïmproviseerde, bescheiden wijzigingen die dienden als test voor verschillende ontwerpstrategieën. Geleidelijk ontwikkelde de architect zo een speelse maar rigoureuze ontwerptaal.

Geglazuurde witte baksteen
De bouwwerkzaamheden zijn stapsgewijs uitgevoerd. Haworth Tompkins begon met aanpassingen aan café en entreehal. Om daglicht tot diep in het gebouw te laten doordringen is het originele daklicht boven de binnenplaats in ere hersteld. Nieuwe wandoppervlakten zijn uitgevoerd in witte geglazuurde baksteen die de licht reflecteren.

Ongebruikte zolders en daken zijn verbouwd en uitgebreid tot kantoren, personeelstuinen en slaapkamers voor bezoekende kunstenaars. Technische verbeteringen, zoals speciale workshops en kleedruimtes zorgen samen met een nieuw 'plug-and-play'-systeem voor het licht en geluid dat presentaties overal in het gebouw kunnen plaatsvinden.

Brand
Een brand verwoestte in 2015 de grote zaal gedeeltelijk. De herbouw is als significant onderdeel op natuurlijke wijze opgenomen in het verhalende renovatieproces.

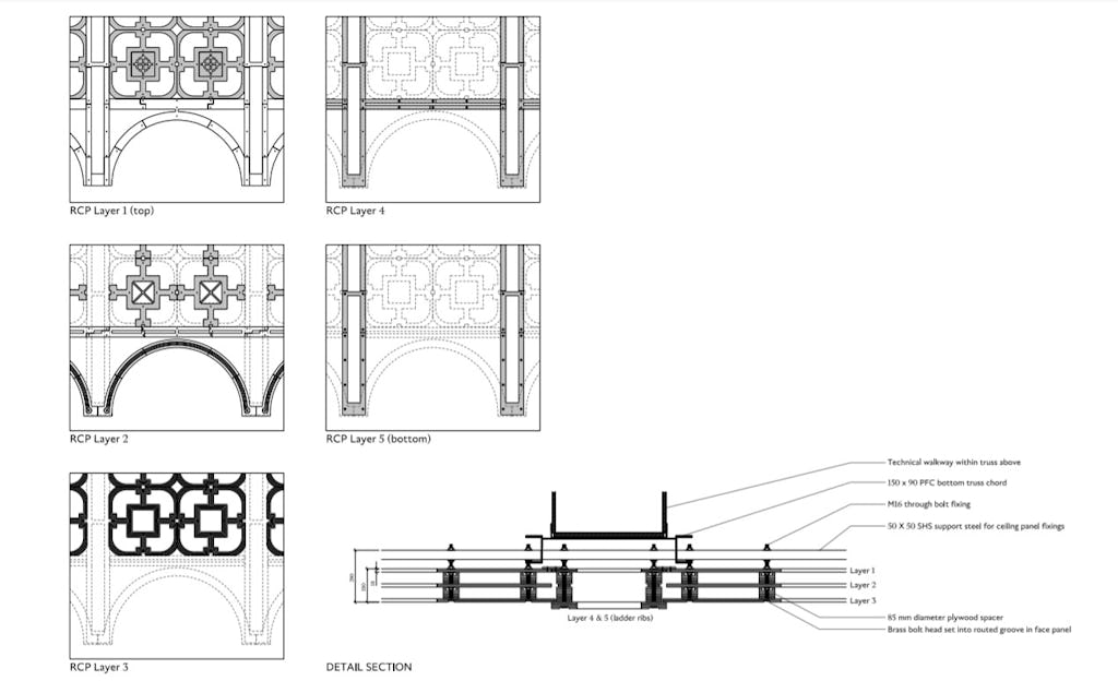
De baksteenstructuur die overeind bleef is gestabiliseerd en gerepareerd en ondersteunt de gereconstrueerde daken. Het gewelfde plafond met pleisterornamenten ging verloren in het vuur. Haworth Tompkins ontwierp een gelaagde structuur van triplex. De vorm van het gewelf is identiek. De vormen van de roosters zijn geïnspireerd op de oorspronkelijke decoraties.

Nieuwe technische infrastructuur is verborgen in de ruimte boven het rooster. Het zorgt voor natuurlijke ventilatie. De akoestiek kan dankzij het systeem worden gevarieerd. Daardoor is de zaal nu ook geschikt voor een gevarieerder theaterprogramma en voor evenementen als spoken word, drama, festivals, bruiloften, optredens en orkestrecitals.

De oppervlakken van de muren van de hal en de omliggende gangen zijn bewaard gebleven zoals ze zijn ‘gevonden'. De complexiteit en rijkdom van het oppervlak geeft je haast het gevoel in Pompeii te zijn. De wanden zijn verlicht door lampen ontworpen door Haworth Tompkins en productontwerper Robert McIntyre.
Bekijk hier de tekeningen van het project.

Gerelateerde berichten














































