Transformatie Grand Parc Bordeaux door Lacaton & Vassal
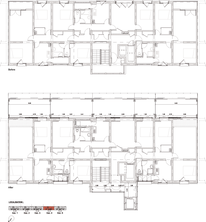
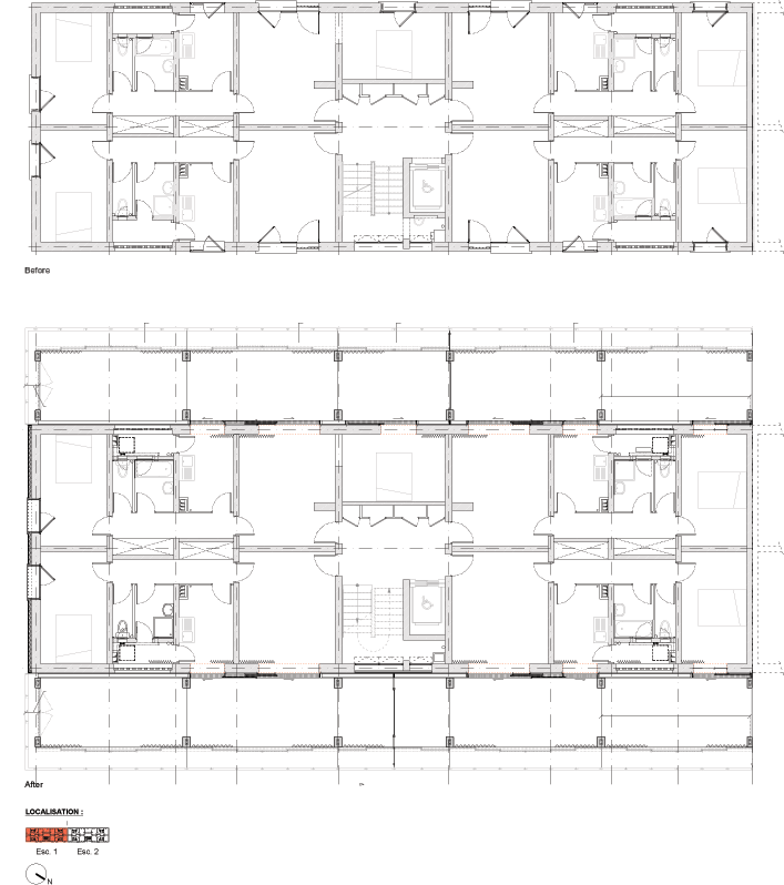
Grand Parc Bordeaux bestaat uit drie gebouwen uit het begin van de jaren zestig. Lacaton & Vassal architectes, Frédéric Druot Architecture en Christophe Hutin Architecture hebben deze gebouwen getransformeerd naar een modern complex met 530 woningen. Vooral de toevoeging van ruime wintertuinen geeft elke woning weer nieuwe kwaliteiten. Dankzij een strakke planning kon elk appartement in slechts twaalf tot zestien dagen getransformeerd worden.
De transformatie geeft aan alle woningen nieuwe kwaliteiten van ruimte en wonen. Lacaton & Vassal architectes, Frédéric Druot Architecture en Christophe Hutin Architecture hebben heel nauwkeurig de bestaande kwaliteiten geïnventariseerd. In de transformatie zijn deze behouden en aangevuld met ontbrekende faciliteiten.
Oude situatie Grand Parc Bordeaux, beeld Philippe Ruault
Volume vergroten
Uitgangspunt was dat alle gezinnen tijdens de werkzaamheden in hun woning konden blijven zitten. Daarnaast wilde men na de transformatie geen huurverhogingen doorvoeren. Dat vroeg om een zeer efficiënte transformatie.
Interventies aan de bestaande structuur, trappen of vloeren waren daardoor uitgesloten. De architecten zijn daarom uitgegaan van toevoegingen en uitbreidingen die groot genoeg zijn om volledig te gebruiken.
Toevoeging per woning in Grand Parc Bordeaux
Wintertuinen
De toevoeging van grote wintertuinen en balkons geven elk appartement meer ruimte, natuurlijk licht, gebruiksgemak en uitzicht. Daarvoor zijn de bestaande kleine ramen vervangen door grote glazen schuifdeuren die uitkomen op de wintertuin.
Deze verlengstukken van 3,80 meter diep verruimen de gebruiksruimte van alle woningen. Met grote glazen schuifdeuren zijn de bestaande ruimtes verbonden met de wintertuinen. Zo ontstaat een aangename privé semi-buitenruimte bieden. Tegelijkertijd zijn de energetische prestaties van de gebouwschil zo flink verbeterd.
Toevoeging wintertuin in Grand Parc Bordeaux, beeld Philippe Ruault
Prefab structuur
Door uit te gaan van prefab modules hebben de architecten de duur van de transformatie flink weten te verkorten. Geprefabriceerde platen en kolommen zijn naar de locatie getransporteerd en door een kraan in positie gehesen. Deze vormen een vrijstaande structuur ten opzichte van het bestaande gebouw. Alleen voor deze funderingen is het beton gestort.
Langs de toegevoegde structuur zijn de originele vensters verwijderd. Hier zijn de gevels van de vloer tot het plafond geopend om schuifdeuren met dubbele beglazing toe te voegen. Thermische gordijnen achter het glas zorgen voor extra isolatie van het verwarmde interieur.
Transformatie van Grand Parc Bordeaux, beeld Philippe Ruault
Volledige renovatie
Aan de andere zijde is een lichtgewicht façade van transparante, gegolfde polycarbonaatpanelen en glas in aluminium frames gemonteerd. Deze is voorzien van reflecterende zonnegordijnen. Geglazuurde leuningen lopen langs de balkons.
Ook de technische voorzieningen zijn verbeterd. Alle badkamers zijn nu voorzien van elektrische installatie en de kleine liften zijn vervangen door grotere exemplaren. Daarnaast zijn de gemeenschappelijke entrees en tuinen van het complex opgeknapt.
Grand Parc Bordeaux voor en na de transformatie, beeld Philippe Ruault
Strakke planning
Een goede planning en inrichting van de bouwplaats maakte het mogelijk om de verbouwing in slechts 12 tot 16 dagen per appartement te realiseren: een halve dag voor het leggen van de betonnen plaat, 2 dagen voor het aanpassen van de oude gevel, 2 dagen voor het plaatsen van de nieuwe gevel, en 8 tot 12 dagen voor het renoveren van de interieurs.
De transformatie van 530 woningen in Grand Parc Bordeaux door Lacaton & Vassal architectes, Frédéric Druot Architecture en Christophe Hutin Architecture heeft dit jaar de EU Mies Award 2019 gewonnen.
Transformatie van 530 woningen in Grand Parc Bordeaux door Lacaton & Vassal architectes, Frédéric Druot Architecture en Christophe Hutin Architecture, beeld Philippe Ruault
Transformatie van 530 woningen in Grand Parc Bordeaux door Lacaton & Vassal architectes, Frédéric Druot Architecture en Christophe Hutin Architecture, beeld Philippe Ruault
Transformatie van 530 woningen in Grand Parc Bordeaux door Lacaton & Vassal architectes, Frédéric Druot Architecture en Christophe Hutin Architecture, beeld Philippe Ruault
Transformatie van 530 woningen in Grand Parc Bordeaux door Lacaton & Vassal architectes, Frédéric Druot Architecture en Christophe Hutin Architecture, beeld Philippe Ruault
Transformatie van 530 woningen in Grand Parc Bordeaux door Lacaton & Vassal architectes, Frédéric Druot Architecture en Christophe Hutin Architecture, beeld Philippe Ruault
Transformatie van 530 woningen in Grand Parc Bordeaux door Lacaton & Vassal architectes, Frédéric Druot Architecture en Christophe Hutin Architecture, beeld Philippe Ruault
Transformatie van 530 woningen in Grand Parc Bordeaux door Lacaton & Vassal architectes, Frédéric Druot Architecture en Christophe Hutin Architecture, beeld Philippe Ruault
Transformatie van 530 woningen in Grand Parc Bordeaux door Lacaton & Vassal architectes, Frédéric Druot Architecture en Christophe Hutin Architecture, beeld Philippe Ruault
Transformatie van 530 woningen in Grand Parc Bordeaux door Lacaton & Vassal architectes, Frédéric Druot Architecture en Christophe Hutin Architecture, beeld Philippe Ruault
Transformatie van 530 woningen in Grand Parc Bordeaux door Lacaton & Vassal architectes, Frédéric Druot Architecture en Christophe Hutin Architecture, beeld Philippe Ruault
Transformatie van 530 woningen in Grand Parc Bordeaux door Lacaton & Vassal architectes, Frédéric Druot Architecture en Christophe Hutin Architecture, beeld Philippe Ruault
Transformatie van 530 woningen in Grand Parc Bordeaux door Lacaton & Vassal architectes, Frédéric Druot Architecture en Christophe Hutin Architecture, beeld Philippe Ruault
Transformatie van 530 woningen in Grand Parc Bordeaux door Lacaton & Vassal architectes, Frédéric Druot Architecture en Christophe Hutin Architecture, beeld Philippe Ruault
Transformatie van 530 woningen in Grand Parc Bordeaux door Lacaton & Vassal architectes, Frédéric Druot Architecture en Christophe Hutin Architecture, beeld Philippe Ruault
Transformatie van 530 woningen in Grand Parc Bordeaux door Lacaton & Vassal architectes, Frédéric Druot Architecture en Christophe Hutin Architecture, beeld Philippe Ruault
Transformatie van 530 woningen in Grand Parc Bordeaux door Lacaton & Vassal architectes, Frédéric Druot Architecture en Christophe Hutin Architecture, beeld Philippe Ruault
Transformatie van 530 woningen in Grand Parc Bordeaux door Lacaton & Vassal architectes, Frédéric Druot Architecture en Christophe Hutin Architecture, beeld Philippe Ruault
Transformatie van 530 woningen in Grand Parc Bordeaux door Lacaton & Vassal architectes, Frédéric Druot Architecture en Christophe Hutin Architecture, beeld Philippe Ruault
Transformatie van 530 woningen in Grand Parc Bordeaux door Lacaton & Vassal architectes, Frédéric Druot Architecture en Christophe Hutin Architecture, beeld Philippe Ruault
Transformatie van 530 woningen in Grand Parc Bordeaux door Lacaton & Vassal architectes, Frédéric Druot Architecture en Christophe Hutin Architecture, beeld Philippe Ruault
Transformatie van 530 woningen in Grand Parc Bordeaux door Lacaton & Vassal architectes, Frédéric Druot Architecture en Christophe Hutin Architecture, beeld Philippe Ruault
Transformatie van 530 woningen in Grand Parc Bordeaux door Lacaton & Vassal architectes, Frédéric Druot Architecture en Christophe Hutin Architecture, beeld Philippe Ruault
Transformatie van 530 woningen in Grand Parc Bordeaux door Lacaton & Vassal architectes, Frédéric Druot Architecture en Christophe Hutin Architecture, beeld Philippe Ruault
Transformatie van 530 woningen in Grand Parc Bordeaux door Lacaton & Vassal architectes, Frédéric Druot Architecture en Christophe Hutin Architecture, beeld Philippe Ruault
Transformatie van 530 woningen in Grand Parc Bordeaux door Lacaton & Vassal architectes, Frédéric Druot Architecture en Christophe Hutin Architecture, beeld Philippe Ruault
Transformatie van 530 woningen in Grand Parc Bordeaux door Lacaton & Vassal architectes, Frédéric Druot Architecture en Christophe Hutin Architecture, beeld Philippe Ruault
Transformatie van 530 woningen in Grand Parc Bordeaux door Lacaton & Vassal architectes, Frédéric Druot Architecture en Christophe Hutin Architecture, beeld Philippe Ruault
Transformatie van 530 woningen in Grand Parc Bordeaux door Lacaton & Vassal architectes, Frédéric Druot Architecture en Christophe Hutin Architecture, beeld Philippe Ruault
Transformatie van 530 woningen in Grand Parc Bordeaux door Lacaton & Vassal architectes, Frédéric Druot Architecture en Christophe Hutin Architecture, beeld Philippe Ruault
Transformatie van 530 woningen in Grand Parc Bordeaux door Lacaton & Vassal architectes, Frédéric Druot Architecture en Christophe Hutin Architecture, beeld Philippe Ruault
Transformatie van 530 woningen in Grand Parc Bordeaux door Lacaton & Vassal architectes, Frédéric Druot Architecture en Christophe Hutin Architecture, beeld Philippe Ruault
Transformatie van 530 woningen in Grand Parc Bordeaux door Lacaton & Vassal architectes, Frédéric Druot Architecture en Christophe Hutin Architecture, beeld Philippe Ruault
Transformatie van 530 woningen in Grand Parc Bordeaux door Lacaton & Vassal architectes, Frédéric Druot Architecture en Christophe Hutin Architecture, beeld Philippe Ruault
Transformatie van 530 woningen in Grand Parc Bordeaux door Lacaton & Vassal architectes, Frédéric Druot Architecture en Christophe Hutin Architecture, beeld Philippe Ruault
Transformatie van 530 woningen in Grand Parc Bordeaux door Lacaton & Vassal architectes, Frédéric Druot Architecture en Christophe Hutin Architecture, beeld Philippe Ruault
Transformatie van 530 woningen in Grand Parc Bordeaux door Lacaton & Vassal architectes, Frédéric Druot Architecture en Christophe Hutin Architecture, beeld Philippe Ruault
Transformatie van 530 woningen in Grand Parc Bordeaux door Lacaton & Vassal architectes, Frédéric Druot Architecture en Christophe Hutin Architecture, beeld Philippe Ruault
Transformatie van 530 woningen in Grand Parc Bordeaux door Lacaton & Vassal architectes, Frédéric Druot Architecture en Christophe Hutin Architecture, beeld Philippe Ruault
Transformatie van 530 woningen in Grand Parc Bordeaux door Lacaton & Vassal architectes, Frédéric Druot Architecture en Christophe Hutin Architecture, beeld Philippe Ruault
Transformatie van 530 woningen in Grand Parc Bordeaux door Lacaton & Vassal architectes, Frédéric Druot Architecture en Christophe Hutin Architecture, beeld Philippe Ruault
Transformatie van 530 woningen in Grand Parc Bordeaux door Lacaton & Vassal architectes, Frédéric Druot Architecture en Christophe Hutin Architecture, beeld Philippe Ruault
Transformatie van 530 woningen in Grand Parc Bordeaux door Lacaton & Vassal architectes, Frédéric Druot Architecture en Christophe Hutin Architecture, beeld Philippe Ruault
Transformatie van 530 woningen in Grand Parc Bordeaux door Lacaton & Vassal architectes, Frédéric Druot Architecture en Christophe Hutin Architecture, beeld Philippe Ruault
Transformatie van 530 woningen in Grand Parc Bordeaux door Lacaton & Vassal architectes, Frédéric Druot Architecture en Christophe Hutin Architecture, beeld Philippe Ruault
Transformatie van 530 woningen in Grand Parc Bordeaux door Lacaton & Vassal architectes, Frédéric Druot Architecture en Christophe Hutin Architecture, beeld Philippe Ruault
Transformatie van 530 woningen in Grand Parc Bordeaux door Lacaton & Vassal architectes, Frédéric Druot Architecture en Christophe Hutin Architecture, beeld Philippe Ruault
Transformatie van 530 woningen in Grand Parc Bordeaux door Lacaton & Vassal architectes, Frédéric Druot Architecture en Christophe Hutin Architecture, beeld Philippe Ruault
Transformatie van 530 woningen in Grand Parc Bordeaux door Lacaton & Vassal architectes, Frédéric Druot Architecture en Christophe Hutin Architecture, beeld Philippe Ruault
Transformatie van 530 woningen in Grand Parc Bordeaux door Lacaton & Vassal architectes, Frédéric Druot Architecture en Christophe Hutin Architecture, beeld Philippe Ruault
Transformatie van 530 woningen in Grand Parc Bordeaux door Lacaton & Vassal architectes, Frédéric Druot Architecture en Christophe Hutin Architecture, beeld Philippe Ruault
Transformatie van 530 woningen in Grand Parc Bordeaux door Lacaton & Vassal architectes, Frédéric Druot Architecture en Christophe Hutin Architecture, beeld Philippe Ruault
Transformatie van 530 woningen in Grand Parc Bordeaux door Lacaton & Vassal architectes, Frédéric Druot Architecture en Christophe Hutin Architecture, beeld Philippe Ruault
Transformatie van 530 woningen in Grand Parc Bordeaux door Lacaton & Vassal architectes, Frédéric Druot Architecture en Christophe Hutin Architecture, beeld Philippe Ruault
Transformatie van 530 woningen in Grand Parc Bordeaux door Lacaton & Vassal architectes, Frédéric Druot Architecture en Christophe Hutin Architecture, beeld Philippe Ruault
Transformatie van 530 woningen in Grand Parc Bordeaux door Lacaton & Vassal architectes, Frédéric Druot Architecture en Christophe Hutin Architecture, beeld Philippe Ruault
Transformatie van 530 woningen in Grand Parc Bordeaux door Lacaton & Vassal architectes, Frédéric Druot Architecture en Christophe Hutin Architecture, beeld Philippe Ruault
Transformatie van 530 woningen in Grand Parc Bordeaux door Lacaton & Vassal architectes, Frédéric Druot Architecture en Christophe Hutin Architecture, beeld Philippe Ruault
Transformatie van 530 woningen in Grand Parc Bordeaux door Lacaton & Vassal architectes, Frédéric Druot Architecture en Christophe Hutin Architecture, beeld Philippe Ruault
Transformatie van 530 woningen in Grand Parc Bordeaux door Lacaton & Vassal architectes, Frédéric Druot Architecture en Christophe Hutin Architecture, beeld Philippe Ruault
Transformatie van 530 woningen in Grand Parc Bordeaux door Lacaton & Vassal architectes, Frédéric Druot Architecture en Christophe Hutin Architecture
Transformatie van 530 woningen in Grand Parc Bordeaux door Lacaton & Vassal architectes, Frédéric Druot Architecture en Christophe Hutin Architecture
Transformatie van 530 woningen in Grand Parc Bordeaux door Lacaton & Vassal architectes, Frédéric Druot Architecture en Christophe Hutin Architecture
Transformatie van 530 woningen in Grand Parc Bordeaux door Lacaton & Vassal architectes, Frédéric Druot Architecture en Christophe Hutin Architecture
Transformatie van 530 woningen in Grand Parc Bordeaux door Lacaton & Vassal architectes, Frédéric Druot Architecture en Christophe Hutin Architecture
Transformatie van 530 woningen in Grand Parc Bordeaux door Lacaton & Vassal architectes, Frédéric Druot Architecture en Christophe Hutin Architecture
Transformatie van 530 woningen in Grand Parc Bordeaux door Lacaton & Vassal architectes, Frédéric Druot Architecture en Christophe Hutin Architecture
Transformatie van 530 woningen in Grand Parc Bordeaux door Lacaton & Vassal architectes, Frédéric Druot Architecture en Christophe Hutin Architecture