Toelichting door diederendirrix en Van Eijk & Van der Lubbe. In het gebouw uit de jaren ’70 van de vorige eeuw is in opdracht van AxionContinu een integraal zorgconcept gerealiseerd. Het programma van Domstate bestaat uit een zorghotel voor kortdurende revalidatie met luxe zorgkamers, een onderzoeks- en behandelcentrum, een restaurant en werkplekken. Alle functies zijn georganiseerd rond een patio die opnieuw is ingericht.

Upgrade
Bij de renovatie is het gebouw tot op het casco gesloopt en heringedeeld, met respect voor de waardevolle architectonische elementen, zoals het trappenhuis aan de zijkant van het gebouw en de vormgeving van de achtergevel. Het ontsluitingsprincipe van de hoofdtrap achter de liften is aangepast, zodat er meer vloeroppervlakte beschikbaar is gekomen voor algemene voorzieningen.

Diederendirrix koos voor een natuursteen bekleding (muschelkalk), om de gevel te upgraden en een hoogwaardige uitstraling te geven. Verder is ten behoeve van de verduurzaming van het gebouw de gevel opnieuw ingedeeld en voorzien van aluminium kozijnen met hoogwaardig isolatieglas.

Daarbij zijn alle zorgkamers voorzien van ruime glaspartijen om het uitzicht te vergroten. De kamers zijn bovendien uitgebreid met een balkon, hetgeen extra kwaliteit aan de verblijfsruimtes toevoegt en hen optisch vergroot. Lage balustrades zorgen hier voor optimale zichtlijnen naar buiten, ook voor bedlegerige gasten.
Alles is revalidatie
Binnen de architectuur van diederendirrix architecten vertaalde Van Eijk & Van der Lubbe vier thema’s vertaald naar interieur en gebruik. Samen met AxionContinu is de inhoudelijke basis voor het interieur gelegd.

Het ontwerp van Van Eijk & Van der Lubbe stimuleert gasten om dingen te ondernemen en actief bezig te zijn om aan te sterken. De thema's die in het ontwerp zijn terug te vinden zijn: ‘Het is een hotel, tenzij...’, ‘Buiten de lijntjes kleuren’, ‘Buiten naar binnen brengen’ en ‘Revalidatie is topsport’ is voelbaar door het hele gebouw.
Het is een hotel, tenzij...
De hotelsfeer is belangrijk voor Van Eijk & Van der Lubbe. Aan de zones waar gasten verblijven, revalideren en hun vrienden en familie ontmoeten, is dezelfde mate van aandacht aan alle faciliteiten besteed als in een 4-sterren hotel. "Het gaat om ‘in de watten worden gelegd’, wellness, je welkom voelen. Dit vanuit een sterk besef dat deze elementen bijdragen aan herstel," zo stelt het architectenbureau.

beeld Van Eijk & Van der Lubbe
In het onderzoeks- en behandelcentrum zijn de wacht- en gespreksruimtes zodanig ingericht dat zij bijdragen aan een ontspannen sfeer en maximale bewegingsvrijheid voor de bezoekers. Hier zijn geen drempels, brede deuren en de tuin is gemakkelijk toegankelijk.

De kleuren van het gebouw verschillen van ruimte tot ruimte, afhankelijk van de lichtinval. In de gangen licht tapijt, voor de hoteluitstraling.

Buiten de lijntjes kleuren
In de werknemerszone mag buiten de lijntjes gekleurd worden, het tweede thema van het ontwerp. Het ontwerp voor deze zone is er op gericht om innovatie en diversiteit te optimaliseren in de dagelijkse werkzaamheden. De medewerkers van Zorghotel Domstate te Utrecht werken graag ‘net even anders’. Dat houdt het leuk. En spannend.
Buiten naar binnen brengen
Met dit derde thema wordt aansluiting gevonden bij het ‘normale’ leven buiten het zorghotel. Met name in de publieke zone is het makkelijk om ‘mensen van buiten’ te ontmoeten.

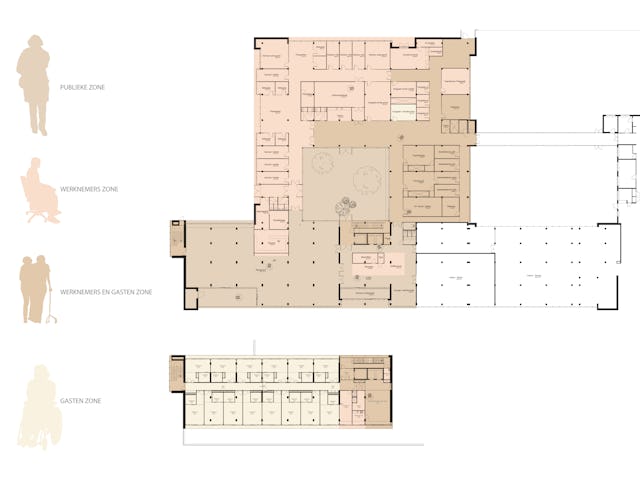
In de plint is naast het onderzoeks- en behandelcentrum zoals een huisartsenpraktijk en een revalidatiecentrum, een diagnosecentrum van het ziekenhuis, een fysiotherapiepraktijk, een verloskundepraktijk en een fysiofitnessruimte. Ook zijn er flexibele ruimtes voor bijvoorbeeld de bloedbank of een decubitusverpleegkundige. Daarnaast is hier een restaurant gerealiseerd en in de tuinen rondom het pand liggen relax- en oefenfaciliteiten.

Ook wordt betrokkenheid van de omgeving bij het verblijf in Domstate gestimuleerd. Zo kunnen binnen en buiten situaties van thuis al voorzichtig getraind worden zonder dat het de naam revalidatie krijgt.
Revalidatie is topsport.
Alles in Zorghotel Domstate draait om revalidatie. Het doel van Van Eijk & Van der Lubbe is om dit zo leuk mogelijk te maken. Om de hotelgasten te motiveren en uit te dagen middels een actieve uitstraling en speelse elementen in het ontwerp. Verleiden om verder te gaan richting eigen zelfstandigheid.







































