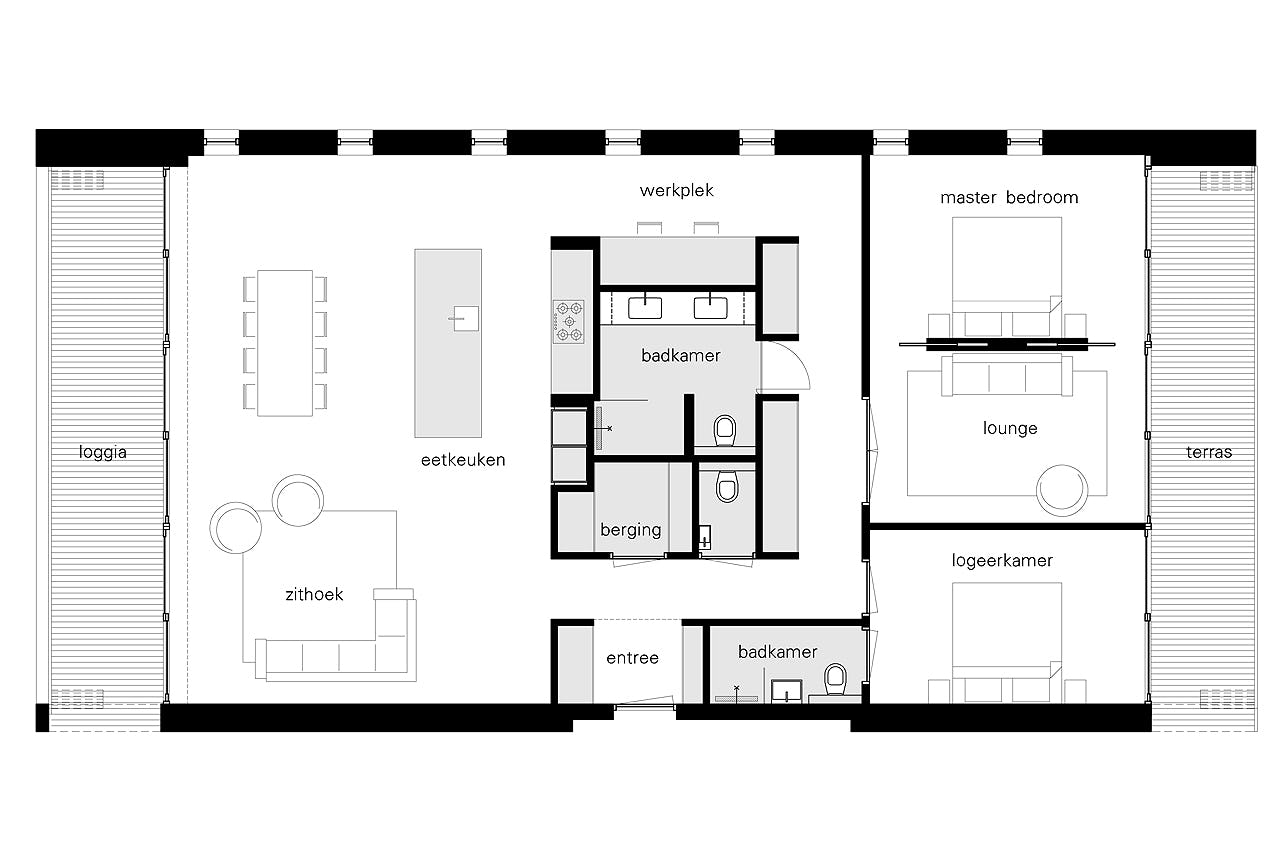
De opzet van de woning is eenvoudig. Centraal in de woning is een element geplaatst dat vrij blijft van de wanden en het plafond. Dit element bevat de keuken, een werkplek, badkamer, toilet en diverse garderobekasten. Het verdeelt de ruimte in de woonkamer en een achterzone, waar drie slaapkamers gelegen zijn.
Het casco ontwerp van Patch22 is opgeleverd met een dubbele vloer met verplaatsbare betontegels, en leende zich hierdoor uitstekend voor de open indeling met één element in het midden. In plaats van in verticale schachten kon het leidingwerk eenvoudig in de vloer worden aangelegd, waardoor het centrale element ook vrij van het plafond kon blijven. Het vrijstaande blok versterkt het gevoel van ruimte en benadrukt de grote verdiepingshoogte van 3,5 meter.
foto: Wim Hanenberg
Patroon op plafond
Het was een strikte eis dat er geen leidingen in het brandwerende plafond gemaakt zouden worden. In plaats van een verlaagd plafond toe te passen, heeft BNLA-architecten dit als aanleiding genomen om dit te benutten in het ontwerp. “Het leidingschema is zo ontworpen dat er een mooi patroon op het plafond ontstaat. Zo konden alle buizen in het zicht gelaten worden. Wel werd er om esthetische redenen gekozen voor een zwarte elektrabuis”, aldus het bureau.
beeld: BNLA architecten
Duurzaamheid
Patch22 is grotendeels in hout opgetrokken en wordt centraal verwarmd met een pelletkachel, ook liggen er zonnecellen op het dak. Om aan het duurzame karakter te voldoen, zijn alle armaturen in de woning in LED-uitvoering. Daarnaast is de gietvloer van een ‘greenline’ collectie.
foto: Wim Hanenberg
Verder lezen: de woning ligt in Patch22, een zeer flexibel dat werd genomineerd voor de ARC16 Innovatie Award.




