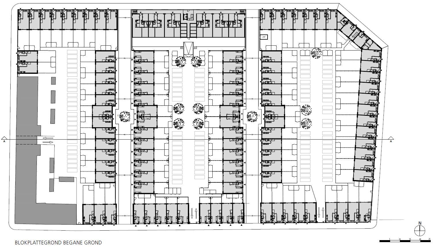
Het grote bouwblok is opgedeeld in kleinschaligere eenheden door een geleding van intieme woonstraatjes en een pleintje, met overwegend stadshuizen met tuin. Het blok voegt zich in het fijnmazige karakter van het stedelijke weefsel. Zo ontstaat er een aangenaam stedelijk woonklimaat voor gezinnen midden in het centrum.
Gevelzone
De intense overgang van de woning naar de straat wordt verzacht door een verdiepte gevelzone met bankjes. Dit versterkt de vitaliteit van het wonen midden in de stad. Mogelijkheid tot bedrijfjes aan huis sluiten aan op dit dynamische karakter.
Tussen stads en intiem
De architectuur beweegt zich tussen rustige, klassieke bakstenen gevels met subtiele transformaties tot een meer informele sfeer in de straatjes. “Het betreft een zoektocht naar het evenwicht tussen de individuele woning en het collectief, naar aanpassen aan de omgeving en een eigen signatuur, naar de neutraliteit van het stedelijk weefsel, maar ook het specifieke en het onverwachte”, aldus de architecte.



