
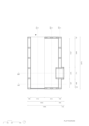
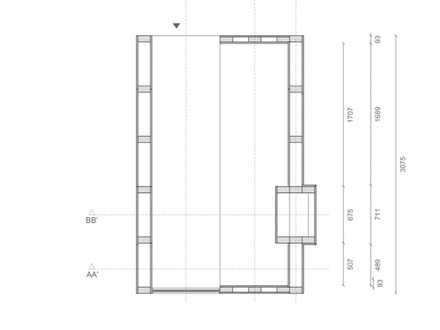
Toelichting door architect Rick Abelen - Het Meershuisje presenteert zich als een archetypisch huis en voegt zo letterlijk een fysiek en herkenbaar adres toe aan het weinig toegankelijke natuurgebied. Natuur en beleving staan hier voorop. De installatie is een eenvoudig houtskelet bekleed met plaatmateriaal, afgewerkt met een witte toplaag. Het Meershuisje biedt een nieuw perspectief op ruimtelijke kwaliteit, met inzicht in het verleden en een blik op de toekomst. Naast een fysiek plekje om de natuur optimaal te ervaren en te ontdekken, wordt de hut door haar bijzondere presentatie ook een herkenbaar accent binnen de natuurpracht. In het huisje vinden mens, kunst, landschap en natuur mekaar harmonisch onder één dak.

Locatie Meershuisje
Het natuurgebied de Gaverbeekse Meersen ligt zowel in Zulte als in Waregem, langs de benedenloop van de Gaverbeek. De Meersen zijn nog altijd een belangrijk overstromings- en natuurverwervingsgebied. In zo’n natuurverwervingsgebied kan de natuur duurzaam in stand gehouden worden zonder zware gevolgen voor landbouw, bosbouw of recreatie. Dwars door het mooie gebied met wei- en hooiland loopt de bedding van de oude spoorweg. Daarlangs is de hut toegankelijk, midden in het groen, uitkijkend over de Meersen en grenzend aan de wandel- en fietsroutes. Het gebied wordt in de volksmond dan ook vaak de Oude Spoorwegberm genoemd en heeft met de levendbarende hagedis - een van de weinige reptielen die geen eieren leggen - alvast één opmerkelijke bewoner.
Het Meershuisje onderdeel van Contrei Live
In 2018 lanceerde Leiedal samen met de lokale, provinciale en Vlaamse overheden de ruimtelijke visie voor de regio van Leie en Schelde onder de naam Contrei. De visie schetst een duurzaam toekomstbeeld van de regio als antwoord op belangrijke uitdagingen zoals het watersysteem, klimaat en energie, een geïntegreerde aanpak van mobiliteit en ruimtelijke ontwikkelingen, versterken van de open ruimte. Contrei Live vertaalt die visie nu op het terrein. Het kunstenparcours Contrei Live is gratis te bezoeken van 9 juli tot 26 oktober 2020.


























