Toelichting Nieuwe Architecten, Utrecht
De nieuwbouw voor het Koning Willem I College (KW1C) in ’s-Hertogenbosch toont de mogelijkheden van hout als 'cutting-edge' constructiemateriaal in een bijzondere hoofddraagconstructie voor zowel een prettig en gezond gebouw als een sterk en duurzaam karakter naar de stad. Het laat de mogelijkheden zien van circulair materiaalgebruik, hoge flexibiliteit, aanpasbaar in de toekomst, een gebouw om in te leren en een gebouw om van te leren.

Nieuw gezicht aan de Onderwijsboulevard
Het KW1C, een complex van zo’n 22.000m2, lag voorheen verscholen achter een parkeerplaats en wordt met de realisatie van het entreegebouw toegankelijker en prachtig zichtbaar aan de Onderwijsboulevard. De keuze voor een hoofddraagconstructie in hout in combinatie met een glazen gevel, toont direct het bijzondere praktijkonderwijs dat hier dagelijks wordt gegeven.
Diversiteit en flexibiliteit
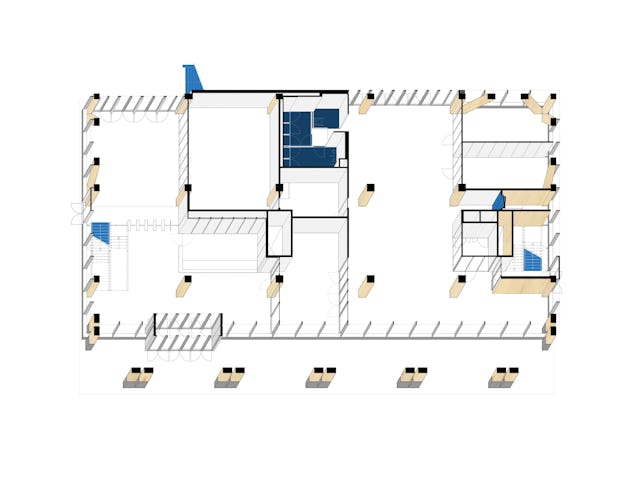
Het bieden van diversiteit en flexibiliteit waarbij de student en docent centraal staan, was de kern van deze opgave. Het gebouw is een professionele leeromgeving geworden, waarbij het leerproces optimaal wordt bevorderd en nieuwsgierigheid, creativiteit en onderzoek wordt opgewekt. De binnenstraten en het atrium creëren meer ruimte én verbinden de verschillende afdelingen met elkaar.
Het entreegebouw bestaat uit verschillende soorten plekken: traditionele klaslokalen en open leerlandschappen, plekken voor zelfstudie en samenwerking, die deels samen met, en door de studenten zelf, zijn ontworpen en gemaakt. Maar het bevat ook ruimte voor spontane ontmoetingen en interactie, zoals het dakterras met daktuin en uitzicht over de stad en bordessen bij de trappen waaraan gewerkt kan worden.

Houten hoofddraagconstructie
Het gebouw bezit een duidelijke opzet met een houten hoofdraagconstructie op een grid van 8x8 meter en een verdiepingshoogte van 4 meter. De stabiliteit van het gebouw wordt zichtbaar met diagonalen liggers in de gevel afgedragen ten gunste van vrij indeelbare vloeren. De ogenschijnlijke eenvoudige houten knopen verbergen een grote complexiteit aan verbindingen in het doorgeven van krachten naar de verschillende elementen.
In de laminatie van het hout zijn stalen platen en verbindingen opgenomen die met stalen stiften (meer dan 15.000 stuks!) de krachten overdragen in de samenkomst van kolommen en liggers. Het hout dekt alle stalen verbindingen zodanig af dat hiermee een brandwerende schil wordt gecreëerd. Bijzonder is de toepassing van de houten draagconstructie in combinatie met betonnen vloeren in betonnen kanaalplaten. Hiermee is er ondanks de relatief lichte houtconstructie voldoende massa in het gebouw voor beperking van geluidsoverdracht tussen verdiepingen en massa voor accumulerend vermogen. Door vergaande engineering en prefabricage is de volledige houten draagconstructie inclusief vloeren in slechts 3 maanden gerealiseerd. Een toonbeeld van de mogelijkheden in het toepassen van hout.
Circulair bouwen
Circulair bouwen betekent binnen dit project dat materialen zo puur en oprecht mogelijk worden toegepast. Laten zien welk materiaal waar en hoe het wordt verbonden. Met een grote mate van modulariteit wordt gewerkt in standaardisering van elementen om verlies en afval in uitvoering en gebruiksfase te voorkomen. De veranderende inrichting kan uit elkaar worden gehaald zonder schade en opnieuw ingezet. Op een manier die ook zichtbaar is voor studenten, o.a. door wandaansluitingen met ritsen.
Er is zo veel mogelijk gebruik gemaakt van hernieuwbaar materiaal voor de vaste delen in het gebouw. In het gebouw is rond de 700 kuub hout verwerkt (wat gelijk staat aan een CO2-opslag van 435ton), waarvan een gedeelte lokaal geoogst, een hoeveelheid buitenkwaliteit hout die in de Nederlandse bossen van Staatsbosbeheer in 20 minuten weer aangroeit.

Een leesbaar gebouw
De technische installatie, aanpasbaar op het modulaire inbouwpakket, is door het ontwerpteam integraal ontworpen, mede omdat alle techniek in het gebouw in het zicht is. Om zoveel mogelijk techniek en de werking van het gebouw mee te geven aan de studenten is de installatieruimte (die normaal als dichte doos op het dak wordt neergezet) geplaatst in de entreehal met een grote glazen pui. Op schermen zijn het stroomverbruik, de opbrengst van de zonnepanelen en andere actuele prestaties van het gebouw af te lezen.
Diverse dichte wanden zijn voorzien van 1:1 bouwkundige tekeningen, waarmee iedereen zich een beeld kan vormen wat er zich achter de wand afspeelt. Het gebouw laat zien wat je met materialen kunt doen, hoe het wordt gebouwd, hoe dingen in elkaar zitten. Alle techniek in het gebouw is zichtbaar gelaten en QR-codes worden toegevoegd, zodat studenten meer informatie over het functioneren ervan kunnen krijgen.
Van buitenaf zijn de bijzondere interieurelementen goed te zien zoals de trappen en de vele verschillende onderwijsruimten. Gecombineerd met de techniek en de beweging van mensen, ervaar je vanaf de Onderwijsboulevard het nieuwe entreegebouw als een enerverende en bruisende omgeving, waar studenten elke dag het beste techniekonderwijs ontvangen.
Aanpasbaar aan wensen van onderwijs
Het gebouw is ontstaan vanuit de wens voor een flexibel gebouw, wat jaarlijks aangepast kan worden aan de wensen voor het geven van het beste onderwijs. Hoe zorg je voor kwaliteit in een gebouw wat aan verandering onderhevig is? Nieuwe Architecten heeft voorgesteld de hoofddraagconstructie in hout uit te voeren. Dit maakt niet alleen de duurzaamheidsambities zichtbaar, maar zorgt in het interieur voor een robuuste structuur die basiskwaliteit geeft aan het flexibele inbouwpakket.
Een gebouw met een sterke modulariteit voor een vrije indeelbaarheid in zones van 2m met gestandaardiseerde elementen die uitwisselbaar zijn en een installatie die hierop voorbereid is. Een afbouw die is ontworpen op waarde van materiaal en het zoveel mogelijk kunnen vasthouden van deze waarde in de levensduur van het gebouw. Een bewuste en verantwoorde keuze voor producten en materialen met een circulaire benadering om afval en verlies in uitvoering en gebruiksfase zoveel mogelijk te beperken.

Non-impact building
Door de toepassing van massa in de betonnen vloeren van het gebouw kunnen we ondanks de lichte hoofddraagconstructie gebruik maken van warmteaccumulatie en houden de vloeren het gebouw middels vloerverwarming op een basis temperatuur. Groendaken zorgen voor beperking van warmte en vasthouden van water. Met hybride klimaatplafonds waarin niet alleen verlichting, maar ook akoestiek en luchttoevoer is voorzien, wordt de naregeling van temperatuur in de verschillende ruimtes gerealiseerd.
Dit gehele laag temperatuur systeem wordt gevoed vanuit lucht-water warmte pompen, geïntegreerde zonnepanelen op het dak en is voorbereid op een toekomstig stads warmtenet. Door deze maatregelen en de toepassing van de geïntegreerde buitenzonwering (verdekt in de vloerranden) was het mogelijk om een volledig glazen gevel te ontwerpen en hiermee de houten hoofddraagconstructie volledig zichtbaar te maken naar de omgeving. De combinatie van passieve en actieve installatiecomponenten zorgen voor een comfortabel gebouw zonder impact op omgeving en klimaat.
Dit nieuwe duurzame onderwijsgebouw is een voorbeeld voor de mogelijkheden van bewust, duurzaam en circulair materiaalgebruik. Een leesbaar gebouw met zichtbare installaties, techniek en verbindingen. Een gezond, energieneutraal, modulair en flexibel gebouw dat kan inspelen op de noodzakelijke veranderingen in het steeds veranderende onderwijs.

















































