Toelichting Kevin Veenhuizen Architects - Het ontwerp maakt optimaal gebuik van de gegeven hoogte van de bestaande patiomuren, die tot de tweede verdieping van de woning rijken. Deze buitenmuren zijn in het nieuwe ontwerp dan ook nageïsoleerd met voorzetwanden, om zo de interne behaaglijkheid van de nieuwe binnenruimte te kunnen waarborgen.
Binnen dezelfde parameters van de originele buitenwanden is een bijzonder op maat gemaakte houten dakconstructie toegevoegd. Op de buitenwanden liggen rondom gelamineerde liggers, net als de diagonale hoofdkeeper. De gordingen zijn onder een hoek geconfigureerd, zodat het daglicht wordt gefilterd en het regenwater naar het laagste punt stroomt en daar kan worden afgevoerd via een geïntegreerde regenpijp. Op de houten vlinderdakconstructie is een glasdak aangebracht waarin elektrisch te open dakramen zijn geïntegreerd voor ventilatie. Tevens zijn in de dakbalken kleine LED’s geïntegreerd.

In de nieuwe ruimte onder het vlinderdak is een in eiken afgewerkt zitmeubel op maat ontworpen. Hierdoor ontstaat een comfortabele en lichte verblijfsruimte dichtbij de nieuwe keuken.
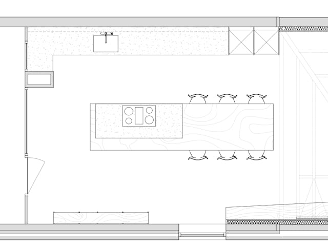
De nieuwe walnoot houten keuken is in dit ontwerp ook op maat gemaakt. In het midden van de keuken is een kookeiland ontworpen dat tegelijkertijd een eettafel is. Deze in warm eiken afgewerkte eettafel is het hart van de ruimte en draagt samen met het nieuwe zitgedeelte bij tot een prettige verblijfsruimte en een geschikte plek voor het gezin. Ook kan de tafel overdag als fijne werkplek worden gebruikt. De parelmoeren terazzo afwerking van het keukenblad geeft de keuken een zeer morderne uitstraling.
Voor extra opbergruimte in de keuken is een lostaande staal frame, eiken afgewerkte keukenkast ontworpen. Doordat dit meubel dezelfde materialisatie heeft als de keukentafel en het zitmeubel, vormt het meubilair één geheel en krijgt de totale ruimte een warme uitstraling.

Om de nieuwe eet- en verblijfsruimte toegankelijk te maken, is ook het oorspronkelijke scheidingselement tussen keuken en verkeersruimte vervangen. Het nieuwe scheidingselement is door het toevoegen van ramen veel transparanter geworden. Dit draagt bij aan de ruimtelijkheid van de nieuwe keuken de relatie tussen de voor- en achterruimtes op de eerste verdieping. Om deze ruimtelijkheid te versterken is boven het kookeiland een langwerpige lamp opgehangen in de lengterichting van de ruimte. Ook de cacao-kleurige Forba marmoleumvloer draagt bij aan de beleving van de ruimte als één geheel.
Het vlinderdak en meubilair op maat dragen zo dus bij aan een geslaagde uitbouw. De ontwerpfocus is hier overduidelijk niet gelegd op het creëren van enkel extra vierkante meters, maar op persoonlijk gebruiksgemak, behaaglijkheid en comfort van de ruimte.


































