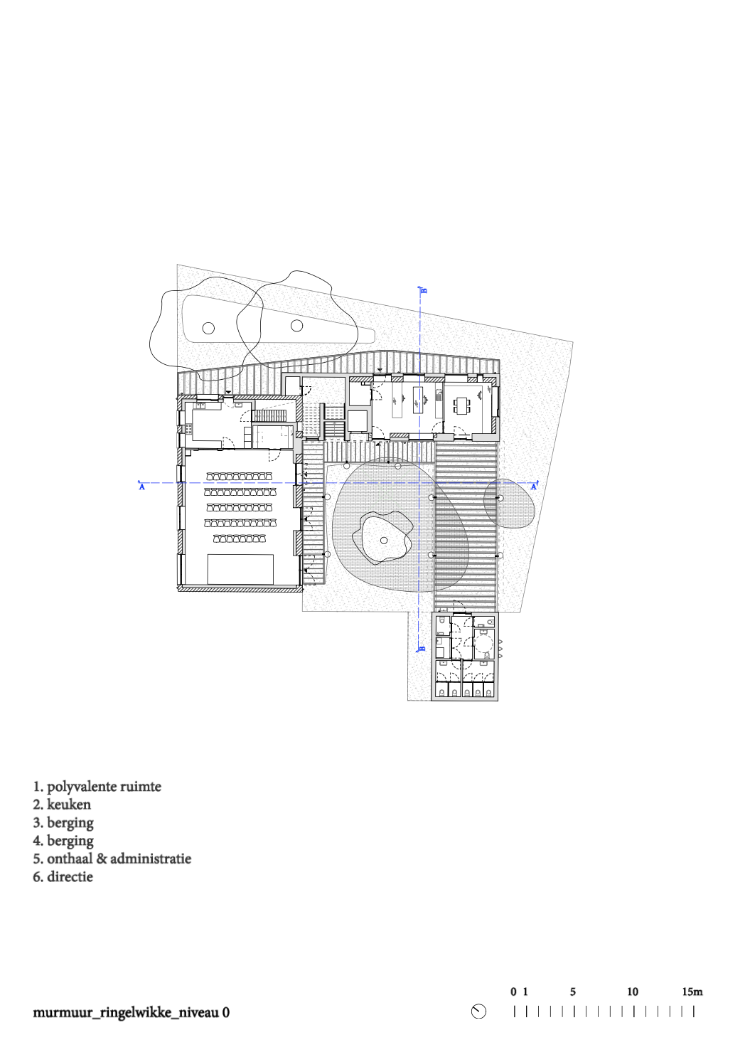
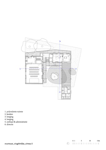
Het inrichtingsplan besteedt aandacht aan een veilige toegang. Auto’s draaien snel van de hoofdweg en worden gescheiden van fietsers en voetgangers, die via de oostgevel onder bomen de school bereiken. Ook vanaf de straat blijft het zicht op het groene achtergebied open. Achteraan wordt extra terrein aangekocht zodat leerlingen uit Ronse te voet of met de fiets kunnen komen. Administratie en onthaal krijgen een centrale plek tussen de parkeerplaats en de school. Slechts een klein deel van de parkeerplaats wordt verhard en dient tijdens schooluren ook als speelruimte. Bestaande bomen blijven behouden.
De oude buitengevels zijn gerenoveerd, waarbij de identiteit van het bakstenen straatvolume behouden blijft. De voordeur verdwijnt wegens de nabijheid van de weg. Op de begane grond komt een multifnctionele ruimte die de school een duidelijk gezicht geeft en buiten schooluren extern gebruikt kan worden.
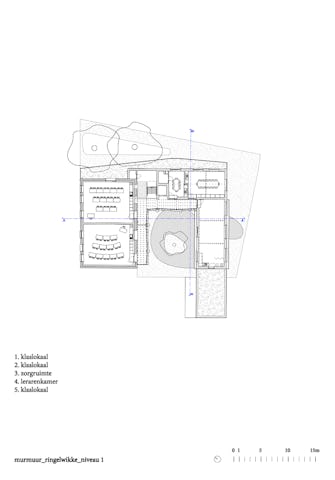
De ontsluiting is buiten het oude pand geplaatst met nieuwe trappen en galerijen rond de binnenplaats, het hart van het project. De open galerijen sluiten aan bij de onderwijsvisie waarbij buitenactiviteiten centraal staan. Het binnenkomen blijft zichtbaar en elke klas krijgt een plek op de drempel tussen binnen en buiten.
De keuzes in het project worden sterk bepaald door beperkte budgetten en subsidieregels, waardoor in eerste instantie enkel binnen de bestaande contour kan worden gebouwd. Hierdoor is maximaal ingezet op behoud van de bestaande structuur en worden open galerijen gekozen als kostenefficiënte oplossing. Zichtbaar hout is om budgettaire redenen niet haalbaar; de voorbouw krijgt daarom een gipsafwerking.
De gebouwschil wordt zwaar geïsoleerd en voorbereid op een later te plaatsen warmtepomp. Het terrein blijft grotendeels onverhard zodat het landschap dicht bij de school komt; op de binnenplaats wordt een grote boom gepland. Het ontwerp is het resultaat van een intensieve samenwerking met het schoolbestuur, dat ondanks financiële druk actief meedacht en zo mee richting gaf aan het uiteindelijke plan.






























