Toelichting Bureau Fraai | Beeld Flare Department
Alle karakteristieken en details van het interieur werden gedocumenteerd zodat deze zorgvuldig gerestaureerd konden worden. Voor het nieuwe interieur werd het concept ‘respecteer het verleden en omarm het heden’ toegepast waarbij bestaande karakteristieken van het interieur hand in hand gaan met hedendaagse ontwerpingrepen. Daarvoor is de Clair-obscur techniek ter inspiratie genomen waarbij licht-donker contrasten versterkt uitgebeeld worden waarmee een dramatisch effect bereikt wordt.

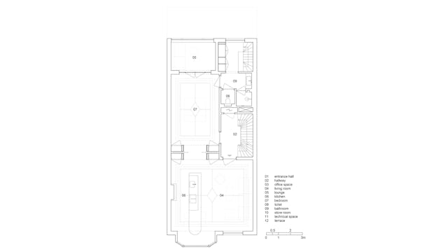
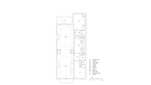
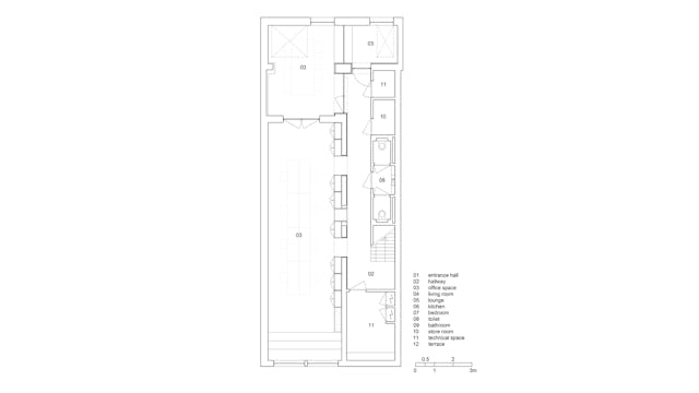
De harmonie tussen de bestaande karakteristieken van het pand en de nieuwe ontwerpingrepen met hun eigen kleurgebruik zorgt ervoor dat elke verdieping een eigen identiteit krijgt. Op de bel-etage en in het souterrain zijn kantoorruimten gecreëerd. Op de bovenliggende verdiepingen zijn de appartementen gesitueerd waarbij er werd vastgehouden aan de bestaande gebouwopzet met een voor- en achterkamer gescheiden door een open ensuite kast.
Na o.a. een kleur historisch onderzoek en herstelplan voor de geornamenteerde plafonds werden de plafonds en wanden met lambriseringen zorgvuldig gerestaureerd en teruggebracht. Voor de plafonds werd het bovenliggend riet hersteld en indien nodig voorzien of vervangen door stucanet. De plafond ornamenten werden afhankelijk van de situatie uitgenomen en teruggeplaatst. De bestaande houten vloeren werden vervangen door eiken vloeren en voor de nieuwe interieurmeubels werd ook hout gebruikt.
Voor het interieur werd er zo veel mogelijk gebruikt gemaakt van de bestaande natuurlijke materialen en daarnaast hout. In het algemeen werd er voor de renovatie van dit monumentaal pand gekozen voor een lange levensduur en daarvoor gegrepen naar kwalitatief hoogwaardige materialen en bouwwijzen.

De nieuwe eigenaar wilden graag dat bij de renovatie en opwaardering van dit pand met respect werd omgegaan met de historie en karakteristieken van het pand. Maar daarnaast moest het pand ook een nieuwe en eigen identiteit krijgen. De Clair-obscurtechniek uit de schilderkunst werd daarom als inspiratiebron voor het interieurconcept genomen. Gerard van Honthorst, waar de Honthorststraat naar vernoemd is, was namelijk een fervent aanhanger en navolger van ‘clair-obscur’ kunstschilder Caravaggio.
Dit project laat de schoonheid zien van de harmonie tussen het bestaande pand en de nieuwe ontwerpingrepen en kleurgebruik. Het zorgvuldig restaureren van de bestaande ornamenten en karakteristieken en verwijzing naar de historie en kunstschilder Gerard van Honthorst, waar de straat naar vernoemd is, zorgt ervoor dat het pand verbonden blijft met de historie en plek in de stad.























