Toelichting Beyond Space | Beeld Peter Tijhuis
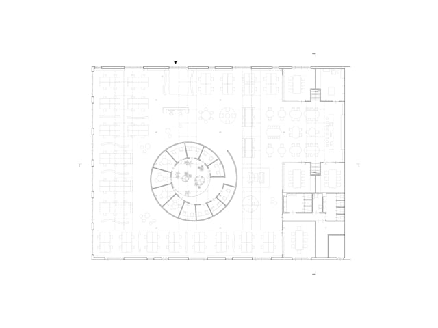
We hebben aan de zuidgevel ramen geplaatst die tot op de grond reiken, extra dakramen toegevoegd en alle binnenmuren verwijderd om de oorspronkelijke staalconstructie bloot te leggen. De laatste van de vier hallen is hoger, waardoor er een extra verdieping mogelijk is. In het midden van de grote ruimte ontvouwt zich een een spiraal met in het hart concentratie-kamers, volledig geluidsdichte ruimtes die uitkijken op een cactustuin. Langs de zijwanden vulden we de ruimte met flexibele werkplekken.

De spiraal in het middel van de loodsen is niet ontworpen als een contrasterend object in een ruimte, maar als integraal onderdeel van het totaal; een echte ruimte-maker, zowel aan de buitenkant als de binnenkant. De terracotta-gekleurde vloer is een warm en verbindend accent over de gehele ruimte en is weer terug te vinden in de vergaderkamers. De installaties hebben we omarmd en geaccentueerd in mintgroen.
De spiraal in het midden van de loodsen is een muur bekleed met verticaal geplaatste, witte steenstrips. Door de twee kleuraccenten van de vloer en installaties kon de rest, van de piece de resistance, de spiraalmuur, tot het gros van het meubilair worden uitgevoerd in rustige wit en grijstinten, die weer eer doen aan de oorspronkelijke kleuren van de loodsen.

Uitgangspunt in de materiaalkeuzes was om zo min mogelijk materiaal te gebruiken. Cradle to Cradle akoestisch spuitwerk in plaats van een verlaagd plafond, steenstrips in plaat van baksteen en flexibele papieren scheidingswanden in plaats van vaste wanden. Dit hebben we ook doorgevoerd in het losse meubilair door een lease contract op te zetten voor het hergebruik van het meubilair.
Roamler is een IT bedrijf dat beaamt dat flexibel werken de manier van werken voor de toekomst is. Langs de zijwanden is de ruimte dan ook gevuld met flexibele werkplekken, slechts een scherm en bedrading waar een ieder op aan kan sluiten, die dankzij de vele ramen altijd
contact maken met de levendigheid buiten, terwijl de concentratie en zoomplekken in de spiraal juist contact maken met een serene binnentuin.

Terwijl interieurs soms tijdelijk aandoen, of als afterthoughts, benaderen wij deze transformaties alsof we het geheel voor het eerst bouwen. Wat we weghalen en toevoegen gaat een verbintenis aan met wat er al bestaat, alsof ze samen uitgedacht en ontstaan zijn. Het resultaat is een eenheid die aandoet alsof het altijd al zo geweest is, of misschien zelfs wel had moeten zijn.























