Toelichting LEVS architecten
Het ontwerp voor het gestapelde terrasgebouw De Bocht brengt al deze levens samen. Dicht op elkaar, en toch alle ruimte. Een ingenieuze stapeling van woningtypologieën. Aan het water, op verspringende terrassen, aan een binnentuin en uitkijkend over de omliggende oostelijke eilanden en de toekomstige Sluisbuurt. Iedereen profiteert mee van de kwaliteiten van het gebouw, zoals ruime entrees, rust, uitzicht, intimiteit, licht en vanzelfsprekende saamhorigheid: wij wonen hier. Aan de straatzijde in de plint is ruimte voor kleine bedrijvigheid. Samen maakt het van De Bocht een compacte community voor de hedendaagse stad.
De Bocht staat in het hart van het eiland, aan het water, naast een café, brouwerij, restaurant en toekomstige winkels. Tien jaar geleden nog was dit een leeglopend industrieel havengebied. Nu ontstaat hier een nieuwe woonwijk. Toch blijft het industriële en maritieme karakter onderdeel van de plek.

Direct naast gebouw De Bocht staan twee andere ontwerpen van LEVS: De Loods en 2Peer. Elk met een eigen karakter, maar in samenhang ontworpen om zonlicht en toegang tot het water optimaal te benutten. De gestapelde terrassen van De Bocht prijken als een rots boven de omgeving uit. Tussen De Bocht en De Loods loopt een intieme woonstraat. Aan het water wordt gewoond en geleefd. Het ronde 2Peer opent de zichtlijnen over de bocht.
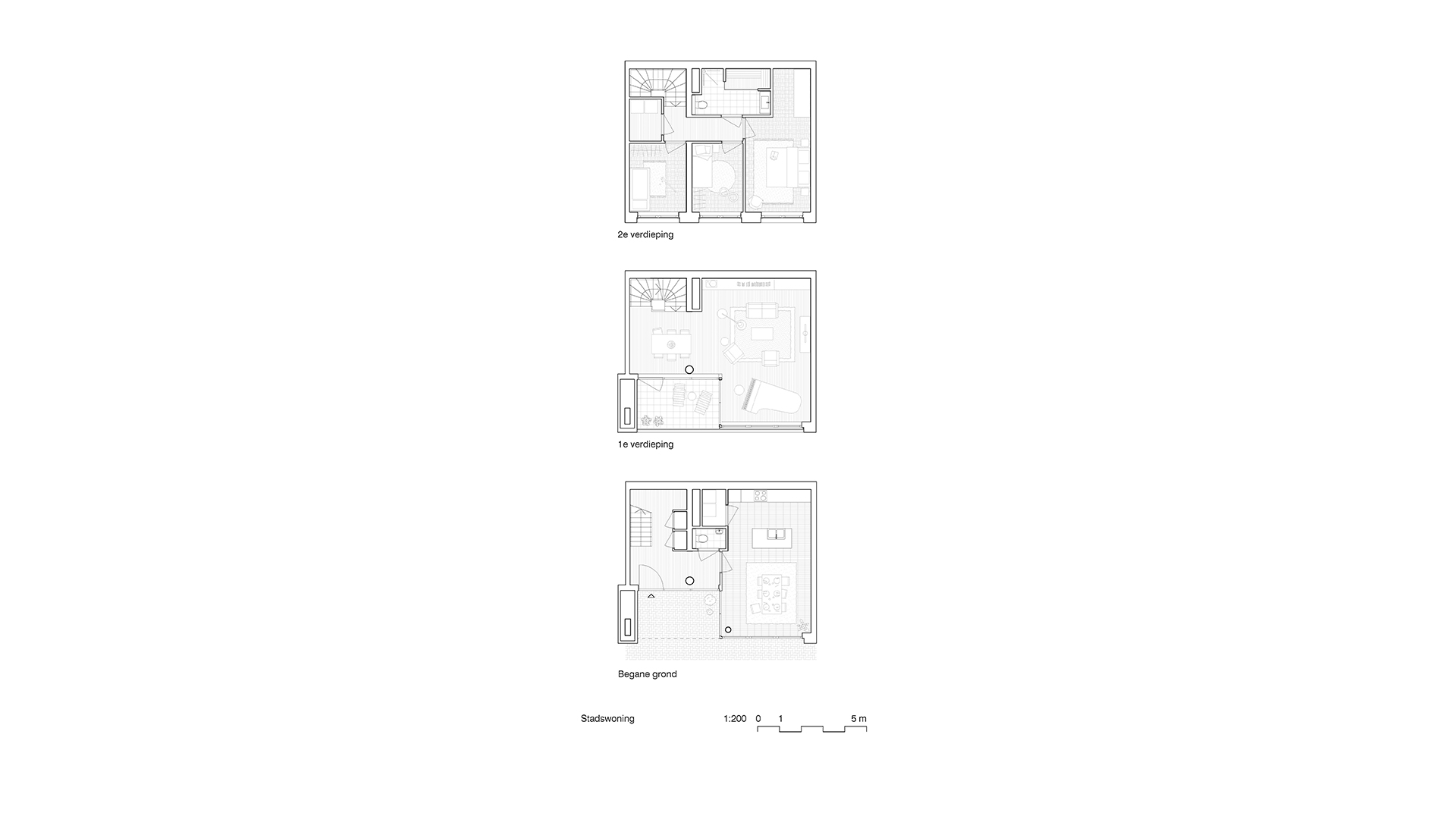
De Bocht loopt op van 7 lagen tot een hoogteaccent van 15 lagen. In deze complexe stapeling passen 110 koop- en huurwoningen voor de sociale en vrije sector, 11 drielaagse stadswoningen aan de haven en de intieme tussenstraat en 700 m2 commerciële ruimte aan de straatzijde. In de kern van het gebouw bevinden zich de drielaagse parkeergarage, bergingen en een fietsenstalling. Daarbovenop een binnentuin, voor iedereen toegankelijk.
In De Bocht is veel aandacht besteed aan lichte, ruime entrees en slimme verbindingen van de gedeelde ruimtes voor alle bewoners zoals de binnentuin, de haven, de garage en de fietsenstalling. De ingangen in de toren en aan het water hebben hoge vides met veel glas. In de toren verbindt een vide vier verdiepingen. Van het lichte trappenhuis aan de straat kijk je op twee niveaus de inpandige parkeergarage in. Zo zien en ontmoeten bewoners elkaar op mooie, ontspannen plekken in en rondom het gebouw.
De Bocht is volledig uitgewerkt in BIM. Het plan is opgebouwd uit prefab elementen, zodat het steigerloos opgebouwd kon worden. Alle gevelelementen - circa duizend - worden volledig afgemonteerd in de fabriek. De helft ervan zijn sandwichelementen, compleet met beton, metselwerk, isolatie, kozijnen, glas en gevelroosters. De speciale wit-bruine baksteen refereert aan het maritieme en het industriële.












































