Toelichting door Powerhouse Company - Het vederlichte ontvangstcentrum voor een nieuw stadsdeel in Tianjin, Paper Roof, is voltooid. Het ontwerp maakt een eenvoudig gebaar – een strakke glazen doos met daarop een eigentijdse variant op het traditionele Chinese dak met opstaande hoeken. Het is daarmee direct herkenbaar, maar toch uitermate fris. De perfecte voorbode van de nieuwe wijk die eromheen zal verrijzen.

Lichtval door de luifel
Het luifeldak van het ontvangstcentrum in Tianjin is zo eenvoudig en bescheiden als een blad papier. De opstaande hoeken van de luifel zijn een kenmerk uit de klassieke Chinese architectuur. Naast hun functie bij het afvoeren van regenwater werden ze beschouwd als brengers van geluk. Bij de Paper Roof is het luifeldak opgebouwd als weefsel van diagonale balken en vallen licht en schaduw hierdoor op het paviljoen als door de takken van een boom.
'Het iconisch dakontwerp zorgt samen met de flexibiliteit van het interieur voor een lange en veelzijdige toekomst voor ons gebouw'
Stijn Kemper (partner bij Powerhouse Company)
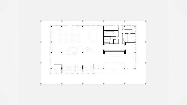
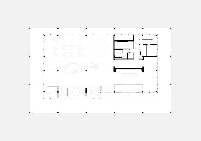
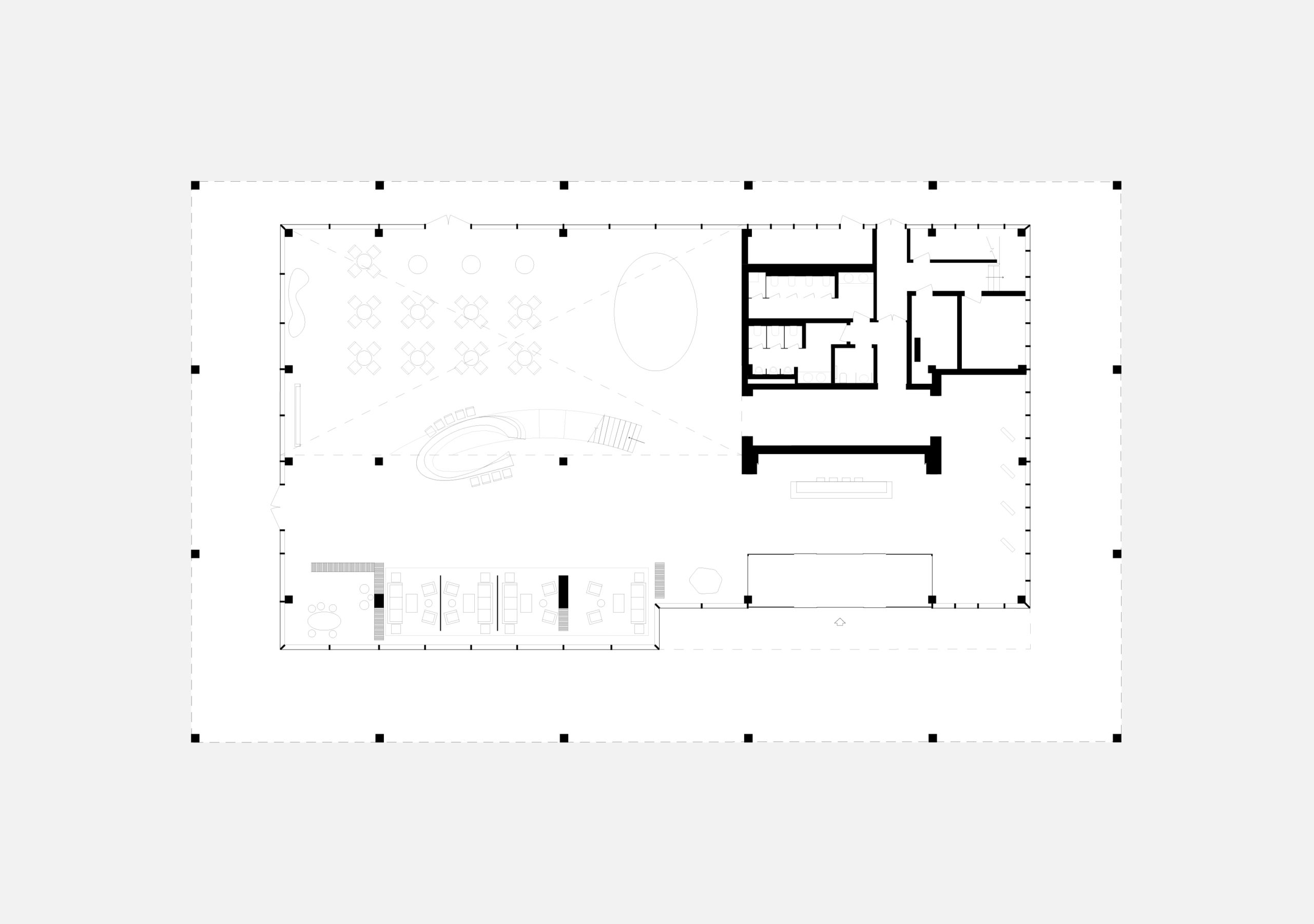
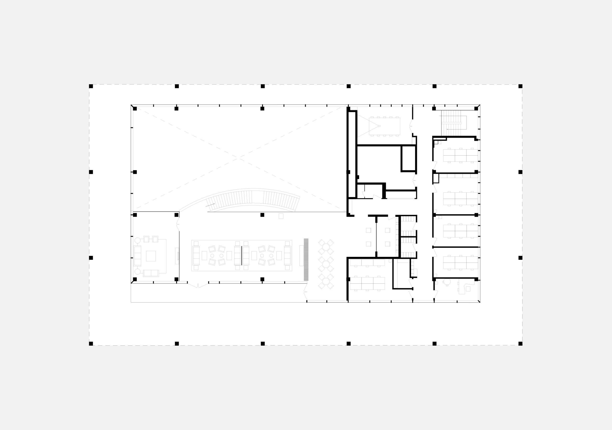
Het dak, met een oppervlakte van 30 x 50 meter, staat op slanke poten en stijgt naar 18,5 meter op het hoogste punt. Het overdekt daarmee ook een terras van vijf meter buiten de omtrek van het paviljoen. Dit gebaar verankert het luchtige, transparante paviljoen stevig op zijn plek. Binnen in het paviljoen wordt de lichte, open ruimte versterkt door het groot atrium met weids uitzicht op de omliggende tuinen met erachter het Bin Hai meer. Op de verdieping bevinden zich naast kantoren ook een uitkijkbalkon en zitplekken voor kleinere en grotere groepen.

De kleur van de hemel
Het staal van het luifeldak lijkt bijna gewichtloos door het te poedercoaten in een lichte, blauwe kleur: de kleur van de hemel. Als een elegant statement staat het op slanke kolommen poten van slechts 45 cm breed en buigt het in de hoeken omhoog als vriendelijk gebaar naar zowel bezoekers als het naastgelegen meer.
De donkere horizontale lijnen leggen vervolgens het glazen paviljoen stevig vast in de grond eronder. De dakconstructie is ter plaatse aan elkaar gelast – de gebogen delen zijn geprefabriceerd – en vervolgens met de hand afgewerkt tot een glad gepolijste oppervlak. Hetzelfde hoge afwerkingsniveau is toegepast op de vrijwel naadloze glazen gevel van het paviljoen.

"De vloeren rondom het atrium bieden ruimte aan het openbare programma, waarbij de rest van de verdieping ingevuld is met kantoorruimtes", aldus Remko van der Vorm (Project Architect Powerhouse Company).


















































