
Verbouw woning W&L in Zuidwolde (Gn)
Toelichting door MX13 - Een kilometer buiten Zuidwolde, midden in de velden, staat de woning van W&L. Een paar jaar geleden verruilden zij hun stadse woning voor deze landelijke woonomgeving. De ruimte in en vooral rondom het huis sprak hen bijzonder aan. Met de bouwstijl van de woning hadden zij niet echt een klik.

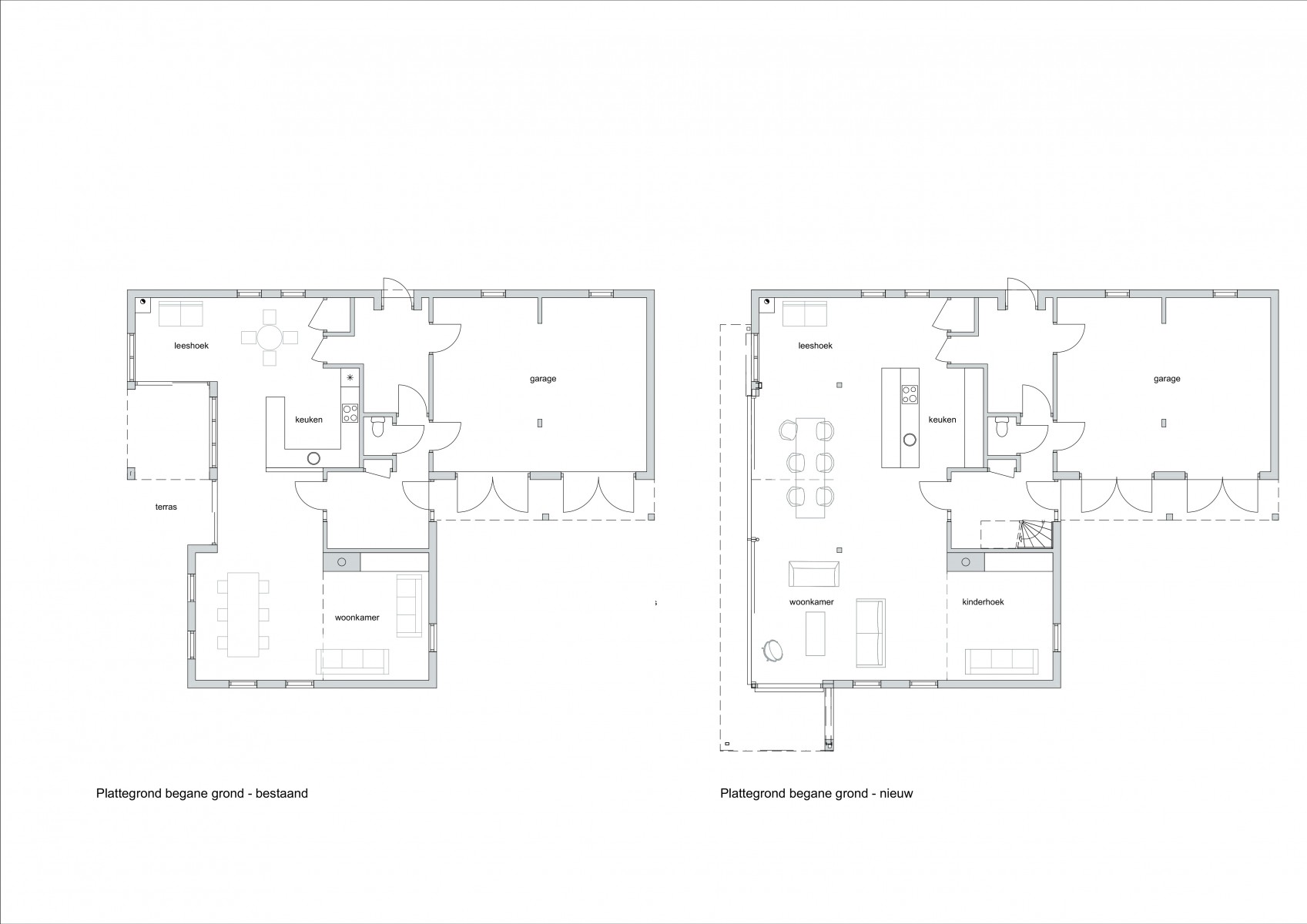
De bouwstijl van het huis laat zich het best typeren als traditioneel-eclectisch. De rustiek ogende woning heeft een grote variëteit aan goothoogtes, kozijnvormen en metselwerk-ornamenten. Maar het meest opvallend is het feit dat woning relatief introvert is, een eigenschap die vanuit de landelijke context onbegrijpelijk is en ongewenst. Zo zit de dakgoot ter plaatse van de woonkamer precies op ooghoogte, waardoor het zicht op de tuin en het landschap wordt belemmerd.
Zo ontstond het idee om deze gevels open te breken door de ramen te vervangen voor hoge raamstroken. MX13 maakte hiervoor een ontwerp en geraamde de bouwkosten. Gaandeweg bleek het meer te renderen om de gehele bestaande gevel te verwijderen en de woning te verrijken met een nieuwe transparante gevel.

Om een passend, maar vernieuwd ontwerp te maken heeft MX13 ervoor gekozen bij de dakvorm van de uitbreiding te variëren op de kapvormen van het bestaande huis. Dit geeft de woning een nieuw elan zonder het bestaande te overschreeuwen.

De woonkamer krijgt door de toepassing van een lessenaardak een hoogteaccent naar de tuin, waardoor de lichtinval wordt geoptimaliseerd. Twee grote schuifpuien nemen de laatste belemmering tussen huis en tuin weg. Een overhoeks dakoverstek met metalen zonwering zorgt voor een getrapte overgang tussen binnen en buiten. Het gehele ontwerp is antraciet van kleur, met uitzondering van de blankhouten kozijnen.
Beelden Ronald Zijlstra




































