Toelichting KAAN Architecten | Beeld Sebastian van Damme en Marcel IJzerman
Groningen, de grootste stad in Noord-Nederland, herbergt een studentenpopulatie van meer dan 60.000. Net buiten de historische binnenstad, grenzend aan het Universitair Medisch Centrum Groningen (UMCG), verenigt de Healthy Ageing Campus studenten en onderzoekers van de Faculteit Medische Wetenschappen. KAAN Architecten heeft het eerste van een geplande reeks onderwijscentra ontworpen, met gedeelde faciliteiten ter ondersteuning van klinieken, onderzoek en industrie op de Healthy Ageing Campus. Het project verbindt de campus, na uitgebreide ontwikkelingen in het noordelijke deel van het UMCG, opnieuw met het historische stadscentrum van Groningen. Het perceel kwam beschikbaar door de verwijdering van de bestaande weg die zich uitstrekte vanaf het stadscentrum.
Het gebouw, centraal gepositioneerd aan deze as, dient als herkenningspunt en versterkt zo de verbinding tussen de campus en de stad. Naast de integratie van patiotuinen op verschillende niveaus, en hoogwaardige openbare ruimtes ontworpen door Felixx Landscape Architects, verbindt het nieuwe Onderwijscentrum diverse UMCG-faciliteiten. Het verrijkt ook de noordelijke entreezone van de campus door de publieke ruimte naar binnen te trekken, waardoor een directe verbinding en een vloeiende circulatie door de gebouwen ontstaat.

Centraal in Healthy Ageing staat het zorgdragen voor een gezondheidsbevorderende omgeving. Het ontwerp van het onderwijscentrum benadrukt comfort, natuurlijk licht en ventilatie ter ondersteuning van fysiek, mentaal en sociaal welzijn. Het nodigt studenten uit om ook buiten het lesprogramma actief deel te nemen aan de campus en biedt diverse ruimtes voor samenwerking, studie en ontspanning. Van open groepswerkplekken tot omsloten individuele ruimten, het centrum bevordert kennisdeling tussen studenten, docenten en bezoekers. De uitnodigende gevel en het levendige programma geven de campus een frisse identiteit.
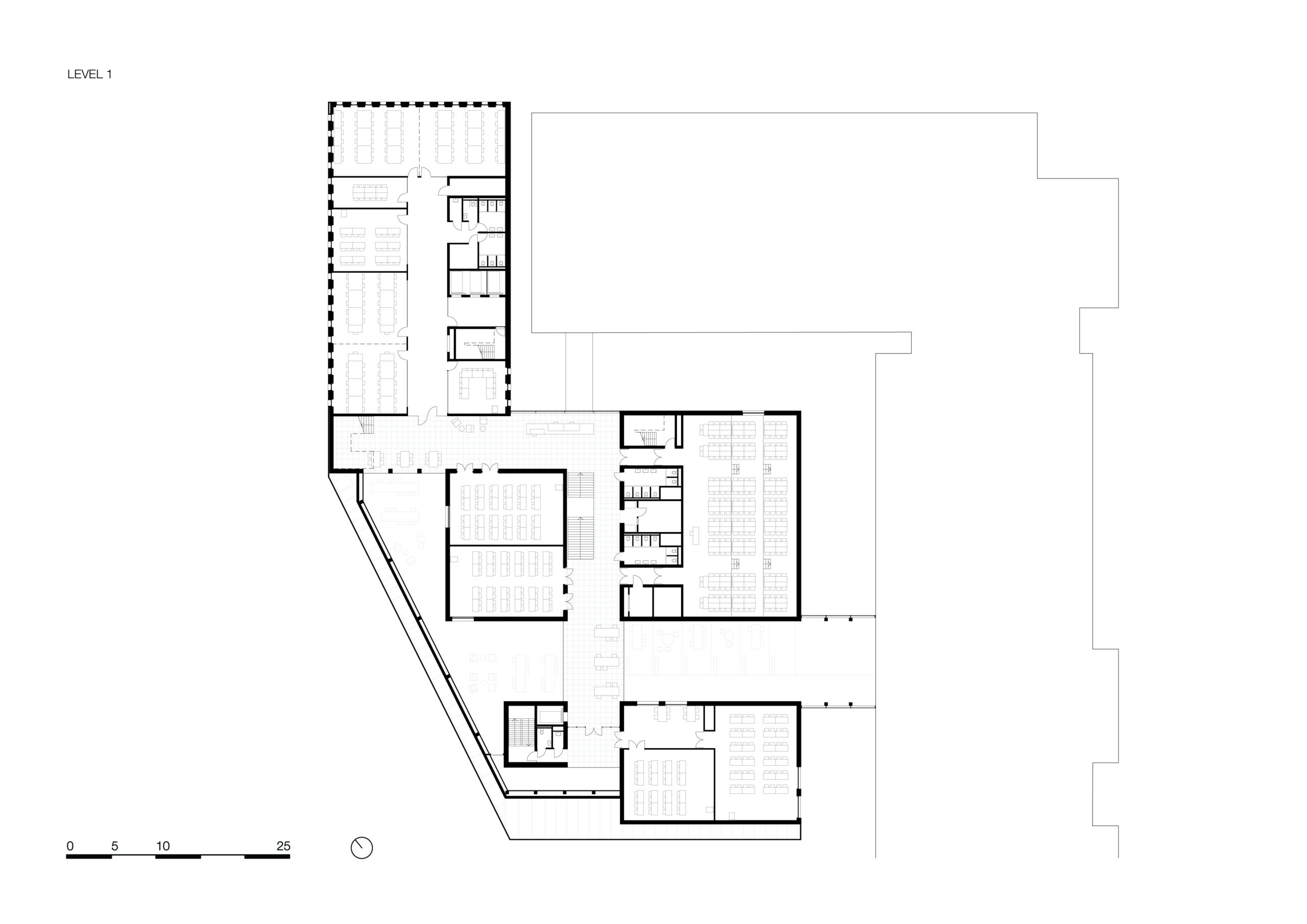
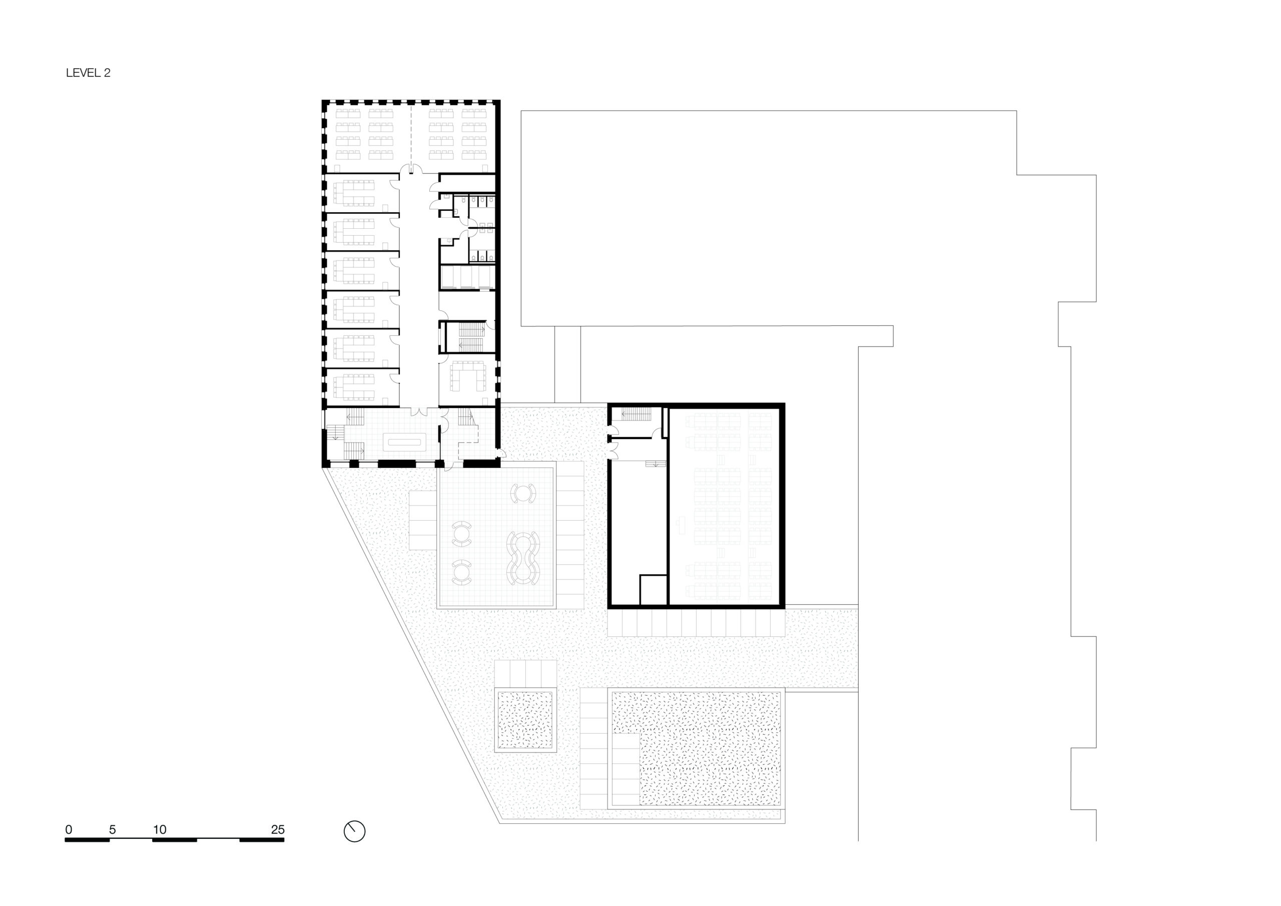
Het architectonisch ontwerp bestaat uit vijf volumes. Deze volumes sluiten zowel horizontaal als verticaal naadloos aan op de centrale foyers op de begane grond en de bovenste verdiepingen. De samenhangende opzet bevordert beweging tussen de ruimtes, wat de toegankelijkheid en interactie door het hele gebouw vergroot. De positionering van de volumes volgt uit de belangrijkste zichtlijnen en de gewenste ruimtelijke kwaliteiten van het complex.

De horizontale foyer zelf wordt omlijst door een transparante gevel met uitzicht op het openbare plein, de hoofdingang en diverse groene patio's. De patio's markeren de overgang naar omliggende bestaande gebouwen op verschillende niveaus en brengen licht naar de onderste verdiepingen. De horizontale foyer biedt steeds zicht op de buitenruimtes en de andere gebouwen, waardoor gebruikers de structuur van het complex intuïtief begrijpen. De horizontale foyer is georganiseerd binnen en rond bakstenen volumes - de 'seminarzalen' - met een foodcourt, auditorium, collegezalen, projectruimtes, vergaderzalen en een onafhankelijke commerciële ruimte.
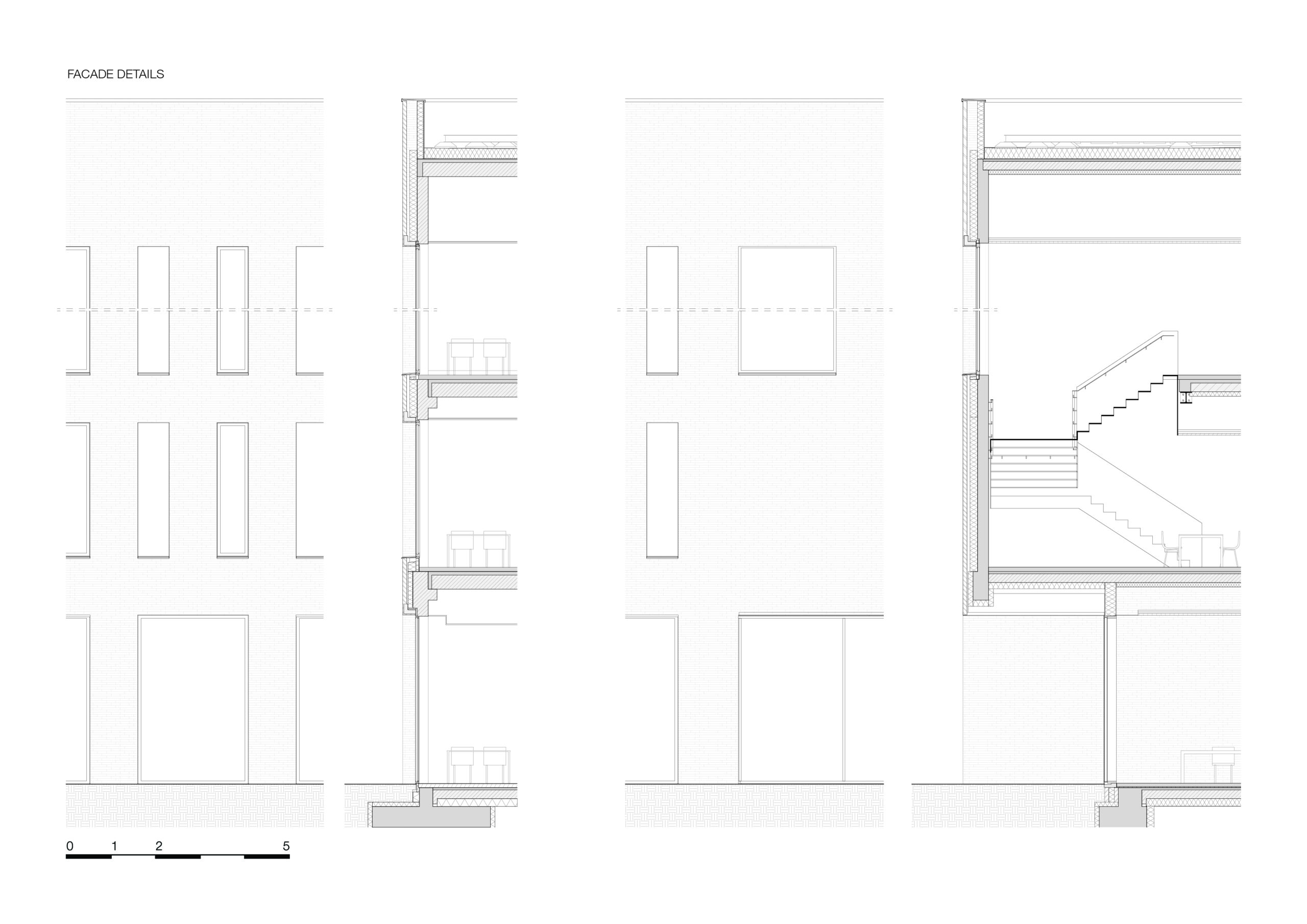
De verticale foyer verbindt de 'seminarzalen' met de 'leertoren', waarin klaslokalen, computerruimtes en een skillslab zijn ondergebracht. Een brede en comfortabele trap, integraal gecombineerd met studieruimtes, fungeert als een voortzetting van de openbare ruimte langs elke verdieping. Om het gebruik van de trap te stimuleren en bij te dragen aan gezond ouder worden, stoppen de liften alleen op de oneven verdiepingen, waardoor gebruikers mogelijk één verdieping omhoog of omlaag moeten lopen. De grote, diepe ramen kenmerken de bakstenen gevel van de toren en bieden een spel van openingen met diverse, genereuze uitzichten over het stadscentrum. Tot slot versterkt het aangename en toegankelijke groene dakterras van het gebouw het groene hart van de campus.

Het programma is rationeel georganiseerd met voldoende flexibiliteit om in de toekomst eenvoudig veranderingen in de ruimtelijke indeling mogelijk te maken. Twee van de drie collegezalen bestaan uit platforms in plaats van uit vaste zitplaatsen, waardoor diverse onderwijssituaties mogelijk zijn. Het gestandaardiseerde stramien van de toren, met een fijner stramien van technische installaties en een grotere overspanning, maakt ook verschillende ruimtelijke indelingen mogelijk.
Gemakkelijke toegang, hoog comfortniveau, voldoende daglicht en groene uitzichten zorgen voor een gezonde en duurzame omgeving. Ook wordt een reeks duurzame materialen met een lage milieu-impact gebruikt gedurende de hele levenscyclus van het gebouw. Deze natuurlijke materialen zijn gekozen vanwege hun vermogen om in de tijd op een mooie manier te veranderen en ouder te worden. Zowel de buiten- als binnenwanden zijn bekleed met regionaal geproduceerde bakstenen. De gekozen lichte zandkleurige baksteen draagt bij aan het creëren van een warme sfeer. De binnendeuren en raamkozijnen zijn gemaakt van massief eiken, en de vloeren en muren van de foyer zijn van beton. Bakstenen wanden gecombineerd met glad maar tactiel zichtbeton definiëren de ruimte en geven het een robuuste stedelijke uitstraling, terwijl het toch een vriendelijke binnenruimte blijft. Met het hoge plafond en bijbehorende dakconstructie, half zichtbaar door het strekmetaal, wordt de horizontale foyer verlicht door subtiel daglicht dat door de daklichten en de gevelopeningen naar binnen komt. In contrast met de foyers zijn de onderwijsruimten bekleed met hout, wat een lichte en natuurlijke sfeer biedt.

'Het nieuwe Anda Kerkhoven Onderwijscentrum zal een frisse identiteit geven aan dit deel van de campus, terwijl het de omliggende gebouwen verbindt en versterkt. Een nieuwe openbare ruimte komt tot leven', aldus Vincent Panhuysen, founding partner van KAAN Architecten.











































































