Het Stadhuis van Leiden is gelegen tussen de Breestraat en de Vismarkt. In 1929 werd het oorspronkelijke gebouw van Lieven de Key (1595-1597) verwoest door een grote brand. Alleen de rijk geornamenteerde gevel aan de Breestraat bleef overeind staan. Daar is vervolgens naar ontwerp van Cornelis Jouke Blaauw een nieuw stadhuis (1932) tegenaan gezet.
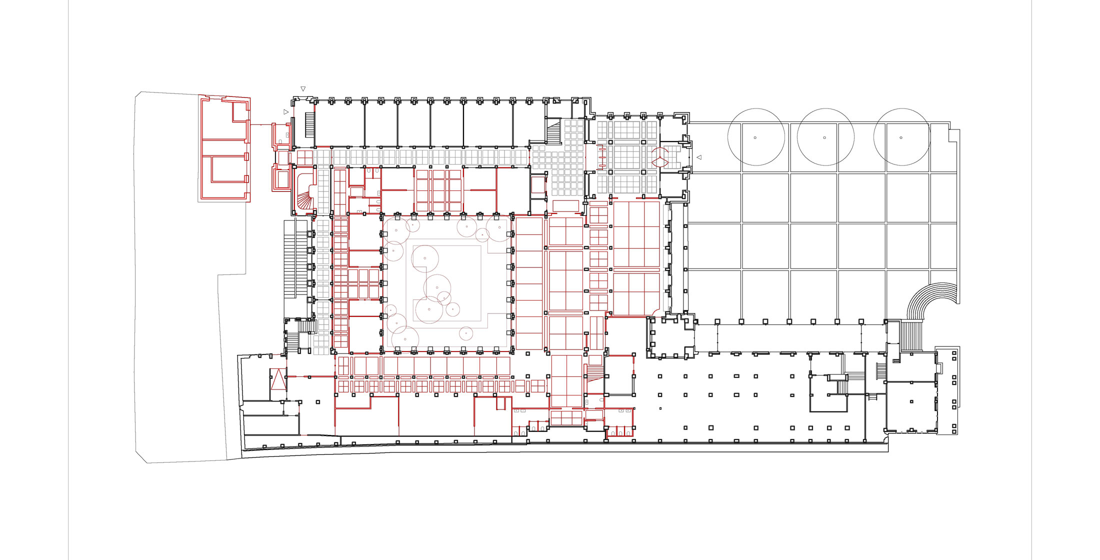
Kenmerkend aan het ontwerp van Blaauw zijn de traditionele gevels en het monumentale interieur in combinatie met een voor die tijd moderne betonnen constructie. Het gebouw is georganiseerd rondom twee open ruimtes: een stadhuisplein en een gesloten hof. Aan het stadhuisplein zijn alle publieksruimten gelegen en rondom de hof zijn de kantoren en bestuurskamers georganiseerd.

Assertieve assimilatie
Sinds de herbouw in de jaren dertig is het stadhuis verscheidene keren verbouwd om het gebouw aan te passen aan het veranderende gebruik. En daar komt nu de renovatie van Office Winhov bij. Daarvoor gaat het bureau uit van een assertieve architectonische assimilatie.
Dat betekent dat de ingrepen zich zo veel mogelijk in het bestaande gebouw voegen en waar mogelijk gebruikmaken van het idioom van Blaauw. Tegelijkertijd blijven ze als eigentijdse interpretatie altijd herkenbaar. Dat zorgt voor een gelaagdheid waarbij bestaand en nieuw een dialoog met elkaar aangaan.

Stadhuisplein en hof Office
Winhov staat nu voor de opgave om het bestaande stadhuis te verduurzamen en aan te passen aan de nieuwe manier van werken binnen de organisatie. Daarnaast zullen aanpassingen van latere datum verwijderd worden.
Dat betekent bijvoorbeeld dat de overkapping boven de hof zal verdwijnen. Dat moet de tegenstelling tussen het publieke stadhuisplein en een verstilde, groene binnenhof weer benadrukken. Door de raamkozijnen te verlagen tot aan de grond ontstaat een sterke zichtrelatie met de aangrenzende centrale ontvangsthal.

Ontmoeten en werken
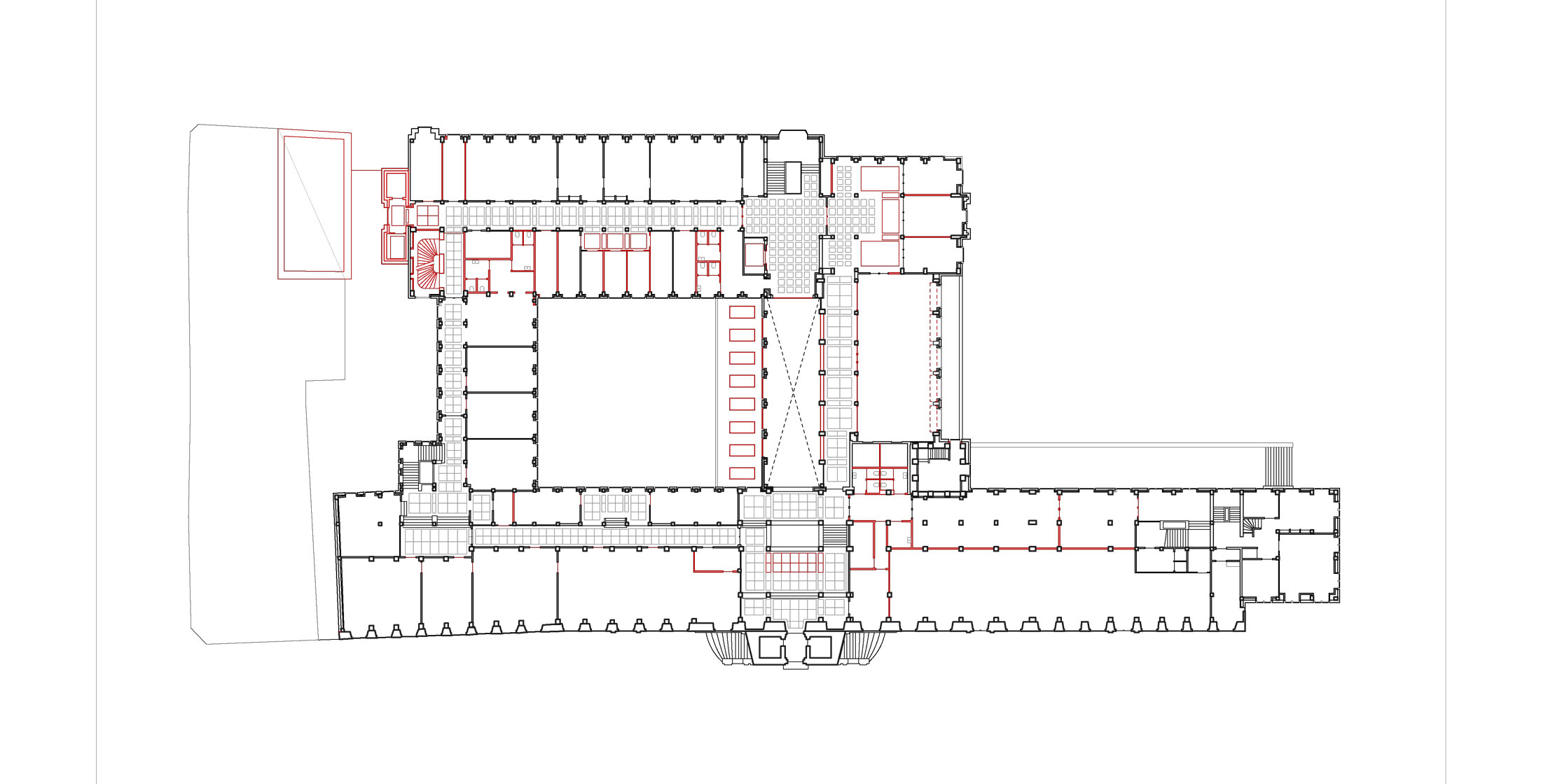
Rondom de binnenhof komt een vergadercentrum en een werkcafé waar medewerkers op verschillende wijzen met elkaar kunnen overleggen. Op de bovengelegen verdieping komt aan het stadhuisplein een nieuwe, grotere commissiekamer. De aangrenzende gang staat middels de vide in directe verbinding met decentrale ontvangsthal.
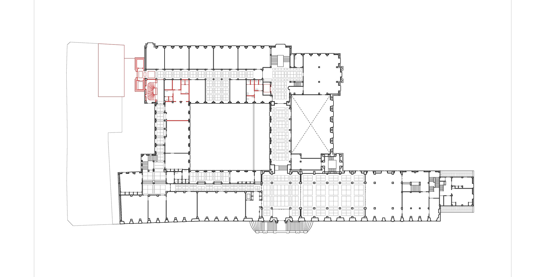
Op sommige plekken worden niet-monumentale wanden verwijderd om meer openheid te creëren. Bovendien zullen de vloeren van de zolderverdieping verdwijnen, waardoor de monumentale betonconstructie weer in het zicht komt en een spannende, hoge werkruimte ontstaat. Dat zorgt voor een moderne werkomgeving in een oud gebouw.

Monografie Stadhuizen
Het stadhuis is een eeuwenoude typologie die in de loop van de tijd telkens is aangepast. In deze monografie bespreken we actuele projecten in Nederland en België.


























