Sinds de jaren negentig is het gemeentehuis van Woerden gevestigd in een gebouwensemble tegenover het ziekenhuis van de stad. Het complex stamt uit de jaren tachtig en is destijds gefaseerd tot stand gekomen. Dat was zichtbaar aan de vier geschakelde volumes van verschillende hoogtes en de verschillende gevelindelingen.
Inmiddels was de huisvesting echter flink verouderd, waardoor het in een slechte bouwkundige en bouwfysische staat verkeerde. Daarnaast was het gebouw te groot voor de huidige manier van werken, weinig representatief en niet duurzaam. Aan cepezed te taak om het bestaande gemeentehuis te moderniseren en aan te laten sluiten bij de nieuwe organisatiestructuur.

Inkrimping
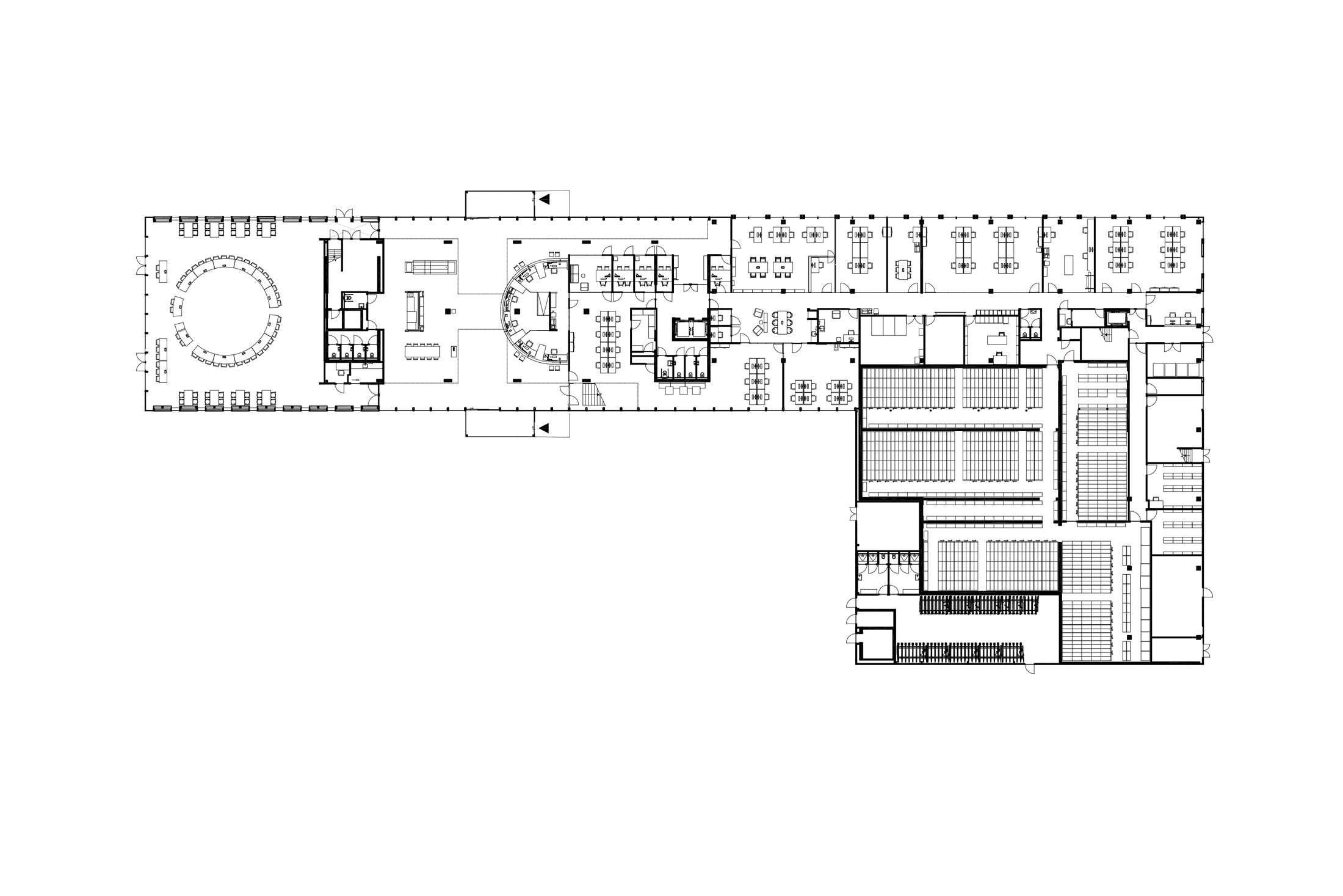
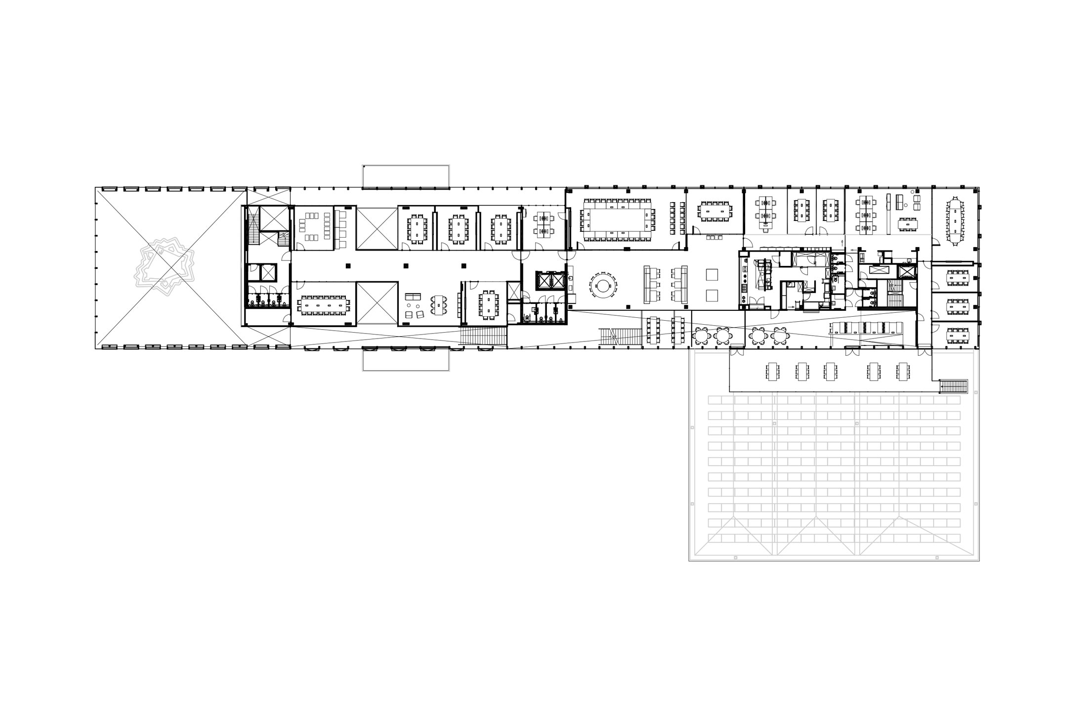
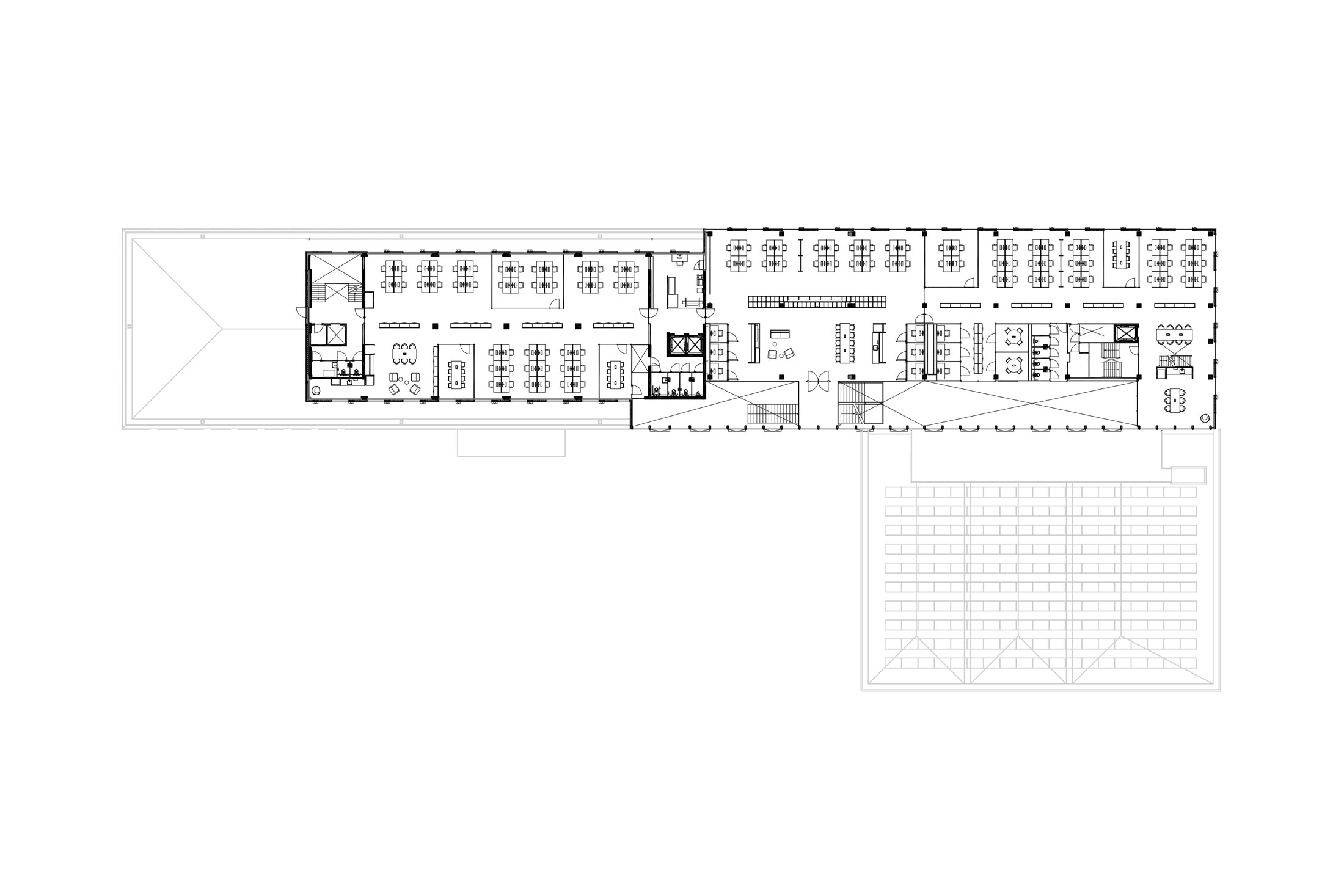
Voor een compacter en eenduidiger geheel zijn verschillende bouwdelen gesloopt, waarna er beperkte nieuwbouwdelen aan zijn toegevoegd. Zo is het middelste volume verlaagd tot dezelfde hoogte als de andere volumes en is voor de raadzaal een nieuw deel met geheel transparante kopgevel toegevoegd. Dat heeft uiteindelijk geleid tot een vloeroppervlak van 8000 vierkante meter, waar dat voorheen 14000 vierkante meter was.
Nieuwe gevels met verdiepingshoge glasdelen van bijna twee meter breed geven het gebouw een moderne uitstraling. Aan het middelste bouwdeel zijn bovendien transparante videstroken toegevoegd, die zorgen voor extra daglicht in het gebouw. Tegelijkertijd markeren deze de nieuwe entrees van het gemeentehuis.

Openheid en verbinding
De vides spelen een belangrijke rol in de verblijfskwaliteit van het vernieuwde gemeentehuis. Niet alleen brengen ze licht, lucht en ruimtelijkheid in het gebouw, ook dragen ze sterk bij aan de fysieke en visuele interactie tussen de verschillende functies en vloervelden. Daarnaast maken ze integraal deel uit van het klimaatconcept.
Ook in de rest van het gebouw zijn openheid, ruimtelijke beleving en verbinding centrale thema’s. Zo is de traditionele cellenstructuur vervangen door grote open vloervelden en ruimten met transparante afscheidingen. De installatietechniek is zo compact mogelijk geïntegreerd, waardoor de verdiepingen een maximale vrije hoogte hebben.
Flexibel interieur
Het nieuwe interieur is volledig gebaseerd op Het Nieuwe Werken. Niemand heeft meer een vaste werkplek, zelfs de burgemeester en wethouders niet. Overal is een flexibele indeling met verschillende typen werkplekken gerealiseerd met veel mogelijkheden tot samenwerken, zowel binnen de eigen organisatie als met inwoners, instellingen en bedrijven.
Ook zijn veel ruimten multifunctioneel inzetbaar. Zo zijn de commissiekamers en het bestuurscentrum ook bruikbaar als reguliere vergaderruimten. De vergadertafels in de raadzaal zijn vervaardigd van lichtgewicht, duurzaam hennep en vlas. Daarmee zijn ze gemakkelijk verplaatsbaar en is de zaal ook goed bruikbaar voor bijvoorbeeld recepties, trouwerijen of andere grote bijeenkomsten.
Monografie Stadhuizen
Het stadhuis is een eeuwenoude typologie die in de loop van de tijd telkens is aangepast. In deze monografie bespreken we actuele projecten in Nederland en België.





















