Toelichting door de Zwarte Hond, Studio RAP en BURO M2R - Theater Zuidplein is een helder, compact volume van circa 12.500 vierkante meter. Vanwege de geluidseisen zijn de theaterzalen gepositioneerd aan de kant van de metrolijn, het verst weg van de woningen. Het gebouw heeft hier een gesloten, robuust karakter en is voorzien van een bakstenen gevel met verticale accenten die de hoogte van de toneeltoren benadrukken.
Contrasterend hiermee is de semi-transparante voile-gevel bij de entree en ontvangsthal, uitgevoerd in geanodiseerd aluminium. In dit entreegebied liggen de meest publieke functies, zoals de leestafels van de bibliotheek en het café-restaurant. Overdag zorgt de opengewerkte gevel voor een bijzonder lichtspel in het interieur en ’s avonds benadrukt de gevel met zijn lichtuitstraling de uitnodigende entree. Deze feestelijke sfeer sluit helemaal aan bij de gemoedstoestand van de theaterbezoekers of concertgangers die het gebouw in de avond gebruiken.

Open karakter
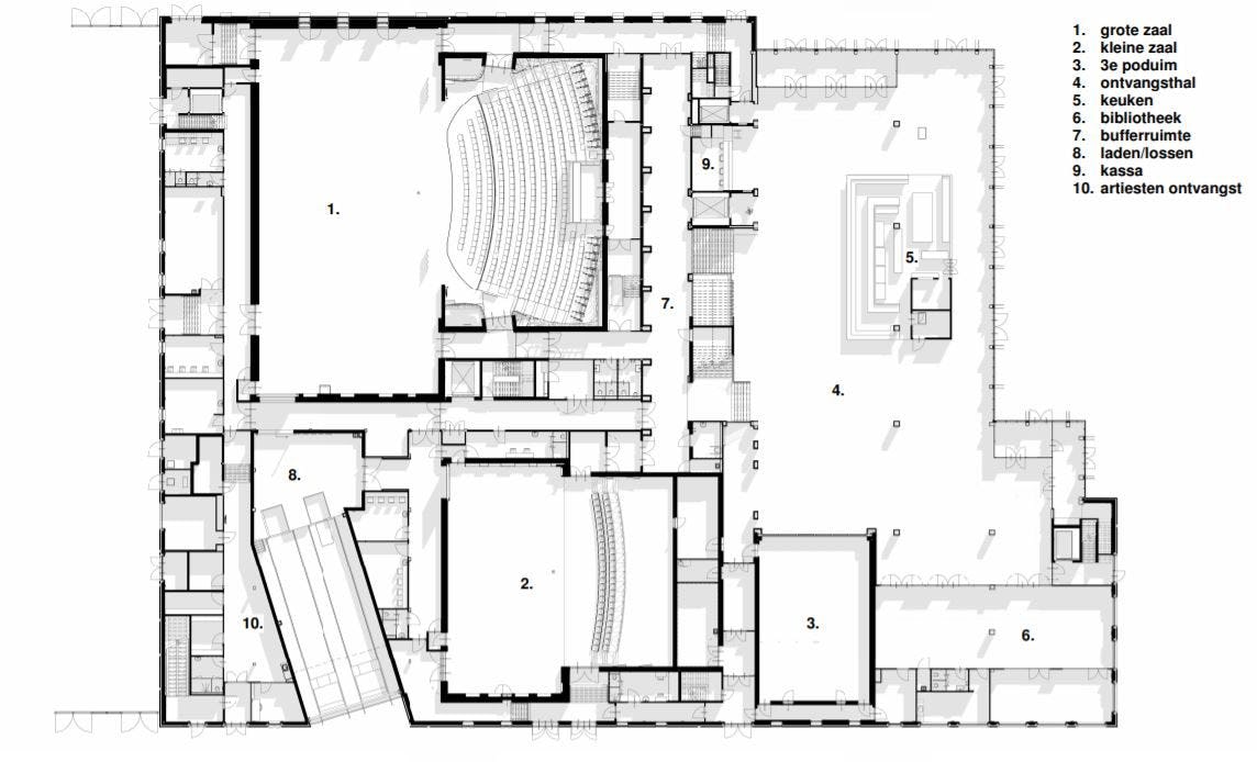
De hoge ontvangsthal vormt het hart van het pand. Alle functies hebben een directe of indirecte relatie met deze hal, waar dan ook van alles is te ontdekken en te doen. De ruimte is als een huiskamer voor Rotterdam-Zuid en heeft een extra podium voor laagdrempelige activiteiten, zoals kindervoorstellingen en andere buurtgerichte initiatieven. Ook kunnen hier bands of dj’s optreden of tentoonstellingen worden gehouden. Dieper in het gebouw liggen de twee theaterzalen.

Het open karakter in het gebouw is ondanks een aantal gesloten ruimtes gewaarborgd door de compactheid. De zicht- en looplijnen zijn kort en de relaties tussen alle verschillende gebruikers zijn zeer direct. Voor elk evenement kan het gebouw worden aangepast, bijvoorbeeld door bepaalde functies aan de ontvangsthal, zoals de bibliotheek of het podium, af te sluiten. Het nieuwe Annie M. G. Schmidtplein voor het pand fungeert als verlengstuk van de ontvangsthal. Hiermee kan Theater Zuidplein zich nog sterker profileren in de wijk.

Interieurontwerp
Het interieurontwerp, dat De Zwarte Hond maakte in samenwerking met BURO M2R, sluit naadloos aan op de architectuur. De transparantie en gebogen vorm van de voile komen terug in verschillende elementen in het interieur. De meubels van BURO M2R zijn flexibel en mobiel, zodat de ruimtes op verschillende manieren kunnen worden ingericht. Het vele staal, niet alleen van de meubels maar bijvoorbeeld ook van de lambriseringen, geeft het interieur een stoere uitstraling. Rode stofferingen en vloeren zorgen tegelijkertijd voor de typische, warme theatersfeer.

Innovatieve theaterzaal
De grote zaal met 600 stoelen heeft twee bijzondere kenmerken. Het Rotterdamse architectenbureau Studio RAP maakte een ontwerp voor de akoestische wanden van de zaal, die in één vloeiende beweging publiek en artiesten omarmen. Het ontwerp is gematerialiseerd in 6.000 unieke, driehoekige panelen van aluminium composiet – een onverwachte materiaalkeuze voor een theaterzaal. Met algoritmes zijn deze driehoeken zo gepositioneerd dat de optimale akoestiek is verkregen.

Behalve dat de roodgekleurde wanden hun akoestische functie vervullen breken ze ook het licht in oneindig veel verschillende kleurtonen, met een dynamisch en toch subtiel en warm kleurenspel als resultaat. Ook de realisatie van het ontwerp is uiterst innovatief te noemen, door de volledige digitale workflow waarmee dit gebeurde. Hierdoor konden de betrokken adviseur en producent vanuit een digitaal model het ontwerp valideren en realiseren. Zo is er niet één tekening gemaakt voor de realisatie van dit spektakelstuk.

Ook bijzonder is de wijze waarop gehoor is gegeven aan de wens om de grote zaal geschikt te maken voor sta-concerten. In plaats van in te leveren op comfort en de zaal van een schuiftribune te voorzien, is een oplossing gekozen waarbij het toneel – dat in oppervlak groter is dan de zaal – eenvoudig kan worden omgebouwd tot een stoere multifunctionele zaal voor maximaal 1000 staande of dansende bezoekers. De parterre en het balkon worden dan met een hefwand van de rest van de zaal afgeschermd.

















































