Hoewel hij er zelfs in zijn woningen in slaagt om de huid los te koppelen van het lichaam, is de vrijheid om de huid als een min of meer solitaire entiteit te behandelen bij utilitaire gebouwen groter. De schil van de bibliotheek in Zeewolde met zijn enorme aantal kleine gaten is al erg boeiend, de pas opgeleverde Pathé-bioscoop in Rotterdam is echter subtieler, omdat Van Velsen nu nog beter de mogelijke dimensies van de huid naar boven weet te brengen. Van een afstand is de bioscoop vooral een prachtige, witte doos op poten. Dichterbij gekomen blijkt dat de huid in dubbele betekenis niet strak om het lichaam van de bioscoop gespannen is. Niet alleen heeft de huid een golvend oppervlak, maar de golfplaten omhullen ook meer dan de zalen, foyer of grand café alleen. Met voor het gebouw langslopende schermen heeft Van Velsen niches -huidplooien- gecreëerd, die het gebouw lucht geven. Zij vormen de tweede laag.
Steeds verder inzoomend blijkt de witte huid bovendien veel minder onaantastbaar te zijn. Het patroon van de naden tussen de golfplaten wordt zichtbaar en tenslotte zelfs de bouten waarmee de golfplaten op de staalconstructie zijn bevestigd. Op dat moment vindt er een wonderlijk soort omkering plaats. Het onkwetsbare krijgt iets kwetsbaars; het abstracte gebouw wordt tot leven gewekt.
Ook de 1000 m2 grote foyer trekt zich in eerste instantie terug. Die indruk heeft vooral met de hoge afwerkingsgraad te maken. Werd in de bibliotheek en de Rijksacademie de materialiteit nog benadrukt door te laten zien hoe alles gemaakt is, in de bioscoop is er geen sprake meer van een nadrukkelijke gemaaktheid. De vakwerkliggers van de zalen zijn achter keurige gipsplaten verdwenen en de relatief zware kolommen zijn omhuld met gepotnagelde roestvaststalen schillen. De strakke materialen en detaillering staan volledig in dienst van de schitterende ruimtelijkheid van de foyer.

Er zijn echter meerdere redenen aan te geven waarom voor een andere bouwtechniek is gekozen. Allereerst vroeg de oude manier van detaillering om een enorme controle op de uitvoering. In een dergelijk groot gebouw is dat vrijwel onmogelijk. Bovendien blijkt het steeds lastiger te zijn vakmensen te vinden die de moeilijk in het werk te maken details ook werkelijk kunnen realiseren.
Akoestiek
De afwerking van de zalen heeft echter ook met de constructieve en akoestische randvoorwaarden te maken. Zoals beschreven in het vorig jaar verschenen themanummer Architectuur & Constructie rust de bioscoop op de fundatie van de parkeergarage onder het Schouwburgplein. 'Dit betekent dat het bouwwerk niet zwaar kan zijn. Een gegeven dat loodrecht op de zware akoestische eisen staat. Zo moest er tussen de zalen onderling een geluidisolatie van 85 dB(A) en tussen de zalen en de foyer één van 65 dB(A) gerealiseerd worden. Gezien de geluidpieken, die tegenwoordig met een digitale geluidweergave bereikt kunnen worden, is dat hier een onmogelijke eis. Na overleg met de opdrachtgever is vanwege het heersende achtergrondgeluid en de uitvoeringskosten de eis met 5 dB(A) teruggeschroefd, maar ook dan blijft het uiterst
lastig om met name de lage frequentie te isoleren zonder dat hiervoor de noodzakelijke massa beschikbaar is.
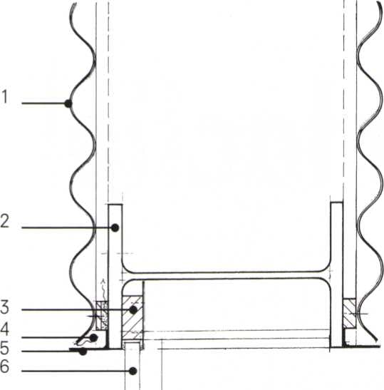
Aan de hoofdconstructie is daarom aan weerszijde door middel van op spanning gebrachte rubbers een secundaire constructie trillingsvrij opgehangen. Om akoestische redenen is deze secundaire staalconstructie aan beide zijden aangekleed met achtereenvolgens drie of vier gipsplaten, een dampdichte laag en een zware isolatiedeken (aan de binnenzijde van de zaal 50 kg/m', aan de buitenzijde 1oo kg/m'). De dampdichte lagen zijn noodzakelijk omdat het isolatiepakket uiteraard niet alleen geluid, maar ook warmte isoleert. Zonder deze lagen bestaat het gevaar dat in de winter ergens in deze dikke constructie een dauwpunt optreedt, waar de vochtige lucht afkomstig uit de zalen condenseert. Er komt dan vocht in de constructie, waar gips heel slecht tegen kan.

Hiermee zijn nog niet alle akoestische problemen opgelost. Vanwege de stabiliteit van de op poten gezette zalen is het noodzakelijk een aantal zalen onderling te koppelen. Dit was in eerste instantie niet de bedoeling en om voor de hand liggende redenen is dit akoestisch gezien ook niet wenselijk. Op soortgelijke wijze als de wanden van de zalen is ook deze koppeling trillingvrij uitgevoerd. Tenslotte was het mogelijk dat de kolommen waarop de zalen rusten, door het geluidgeweld in trilling zouden raken. Weliswaar is het zoveel mogelijk voorkomen dat de kolommen van de ene zaal in de andere doorlopen, maar dat is niet overal gelukt. Bovendien lopen alle kolommen door de foyer heen. Om ze in voldoende mate een eigen demping te geven zijn de kolommen gedeeltelijk vol beton gestort.
In de zalen is een nagalmtijd van minder dan o. 8 seconde gerealiseerd. Dit was noodzakelijk omdat in de dynamische elektrisch versterkte geluidweergave de verlangde nagalm al geregeld is. Deze zware eis moet ingewilligd worden in een volkomen vlakke zaal. De wanden zijn nu afgewerkt met geperforeerd gipsplaat, waarachter firetdoek, een luchtspouw met variabele breedte en minerale wol zijn aangebracht. Uit de stoelen, de bezoekers, de vloerbedekking en in geringe mate het filmdoek wordt de rest van de absorptie verkregen.
Tastzin
De belangrijkste reden om alles af te werken is echter dat Van Velsens materiaalgebruik subtieler is geworden. De materialen, maar vooral de manier waarop ze zijn toegepast, geven de foyer iets verstilds. De materialen dringen zich niet op, maar zijn wel degelijk aanwezig. De beleving van de ruimte is hierdoor heel intensief Voor een belangrijk deel komt dit omdat de oppervlakten bij benadering niet alleen visueel veranderen, maar ook omdat een beroep wordt gedaan op de tastzin. Dichtbij iets zijn betekent immers niet alleen dat het beeld verandert, maar ook dat je het kunt aanraken. Zo is de prachtige roestvaststalen-vloer dankzij een minuscuul puntje in de platen door de schoenzolen heen voelbaar gemaakt. Ook de schillen rond de kolommen roepen op om ze aan te raken, ofschoon ze in eerste instantie afstandelijk overkomen. Dankzij de gekozen montagemethode -potnagels- en de omgezette naden van de verschillende platen verliest het roestvaststaal zijn koelheid en krijgt het zelfs iets kneedbaars. Voor de wanden had Van Velsen een soortgelijke afwerking bedacht. Hij wilde de wanden bekleden met heel fijn geperforeerd, wit vinyl, dat met gekleurde lijm tegen de gipsplaten geplakt zou worden. Van een afstand zouden de wanden strak wit lijken, dichterbij gekomen zouden de kleine gekleurde gaatjes zichtbaar worden. Op reikafstand zou deze textuur ook voelbaar zijn. Helaas blijkt het technisch niet mogelijk om het gekozen vinyl goed te perforeren. Het slaan van de gaatjes kan niet zo perfect gebeuren dat er geen haartjes van de rug achterblijven. Daarnaast moeten om de perforaties aan te kunnen brengen, de rollen heel strak gespannen worden. Daar vinyl echter een elastisch materiaal is, is de kans zeer groot dat het patroon verloopt.

Elders wordt materiaal juist benadrukt door het weg te laten. Om de horizontale krachten op te kunnen nemen, is achter de zeven meter hoge glazen gevel van het grand café een constructie aangebracht. Het ligt voor de hand om hiervoor
glazen vinnen te gebruiken, die de transparantie van de gevel niet aantasten. Van Velsen wil echter niet dat deze doorlopen tot op de vloer. Ze zijn daarom moment vast aan het plafond gehangen en eindigen bijna drie meter boven de vloer. Door de gedeeltelijke afwezigheid van de vinnen, wordt de aanwezigheid van de enorm transparante -en dus afwezige- glazen gevel geaccentueerd.
Tegenstellingen
In de bioscoop zijn meerdere tegenstellingen te vinden. Vrijwel detailloze verbindingen zijn naast grove details aangebracht, goedkope materialen boven of naast hele dure. De tegenstellingen tussen grof-fijn, duur-goedkoop zijn echter veel minder bewust uitgewerkt dan de andere. Van Velsen heeft geen associaties als goedkoop of chique bij een bepaald materiaal. Golfplaat is dus niet goedkoop, maar simpelweg het meest geëigende materiaal gezien het effect dat Van Velsen wil bereiken.
Het gevaar van een bioscoop op een plek als het Schouwburgplein in Rotterdam is dat de enorme massa ervan elke vorm van levendigheid doodslaat. In de mega-bioscoop in Scheveningen recht tegenover het Kurhaus is dit architectonische dilemma opgelost door een glazen huid rondom de zalen te spannen. De diepte die met deze volledig glazen gevel bereikt wordt, is erg direct en banaal.
De witte, translucente golfplaten onthullen in Van Velsens bioscoop daarentegen niets van wat er in de foyer gebeurt. Terwijl het gebouw dankzij dit prachtig gekozen materiaal toch geen gesloten doos is geworden. Het materiaal geeft de bioscoop overdag al iets geheimzinnigs en ’s-avonds zullen de lampen het gebouw een nog mysterieuzer aanzien geven. Bij het opgaan van de trappen stap je een andere wereld binnen.
Overigens zijn deze golfplaten helemaal niet goedkoop. De gewenste overspanning van anderhalve meter en de grote hoogte waarop dit materiaal is toegepast -met de daarbij behorende hoge winddruk- vragen om een grotere dikte van het materiaal dan gebruikelijk is. Bovendien wilde Van Velsen niet de volledig transparante of de wat gelige golfplaten gebruiken. Het moesten mooie witte worden en deze zijn speciaal voor dit project gemaakt.
Op de begane grond is de bioscoop overigens wel volledig transparant gebleven. De hier ondergebrachte functies, zoals het grand café, vragen om een directer contact met het plein. Daarnaast is de enorme massa van de bioscoop iets meer van zijn gewicht ontdaan door deze visueel op te tillen. Om deze reden is het belangrijk dat achter deze glazen gevel zo min mogelijk constructie zichtbaar is. Dat is optimaal gelukt. De glasgevel is van een Fosteriaanse schoonheid, waarbij de dikke, ruim drie meter hoge glasplaten alleen aan de boven- en onderzijde ingeklemd zijn. Verticaal is tussen de panelen structurele siliconenkit aangebracht.
Slaat de detailloosheid bij Foster nog wel eens om in saaiheid, omdat alles op dezelfde manier gedetailleerd is, bij Van Velsen gebeurt dat absoluut niet. De contrasten tussen verafdichtbij, grof-fijn, detailloos-zichtbare verbindingen, et cetera wisselen elkaar voortdurend af en maken de beleving van het gebouw heel intensief Omdat Van Velsen haarfijn de potenties van de details en de materialen weet uit te buiten, verdwijnen associaties als goedkoop of duur. Alles smelt samen tot een boeiend geheel.
NOOT - 1) Ed Melet, ‘Ruimtes scheppen’, de Architect themanummer 6o Architectuur Constructie.



