De Hoge Raad is tot stand gekomen op basis van een DBFMO. Opmerkelijk daarbij is dat de architect niet alleen een grote rol speelde in de dialoogfase, maar ook in de fasen na de selectie zijn sterke positie vasthield. Dat is opmerkelijk, want meestal wordt een architect na goedkeuring het ontwerp onder zijn handen vandaan getrokken. Hoe flikte KAAN Architecten dat?
Het heeft voor een deel te maken met het moordende tempo waarin het ontwerp moest worden gemaakt. Het voordeel daarvan is, aldus KAAN, dat er nauwelijks tijd is om alternatieven te bedenken. Zaken die goed zijn uitgewerkt, worden dan ook zonder dralen uitgevoerd. Om het risico te ondervangen dat de architect hierbij loopt, begon KAAN zelfs al voor de definitieve gunning met de uitwerking van het ontwerp.
Het belang van architectuur
Behalve dat de tijdsdruk groot is, moet de architect ook dealen met de omvangrijke ‘output specifications’ die in dit proces welhaast heilig zijn. Veel ruimte voor aanpassingen is er niet. In de dialoogfase kun je als architect de uitschrijver bijvoorbeeld niet wijzen op de winst die eventueel te boeken is met het aanpassen van het programma.
Daartegenover staat dat het, veel meer dan een architectuuropdracht, een totaalproject betreft, inclusief de jarenlange exploitatie ervan. Kees Kaan: “Het gaat om een heel groot belang dat merendeels wordt gewonnen met behulp van architectuur. Als wij aangeven dat je iets moet doen om de aanbesteding te winnen en wij kunnen dat hard maken, dan gaan ze met je mee en proberen ze het elders terug te halen. Dat is nieuw, want vroeger werd de architectuur geslacht.”
Tot slot is vastgelegd dat vanaf de start van de bouw alles moest worden afgestemd met de architect. Tekeningen werden pas in productie genomen nadat KAAN Architecten ze had gezien en goedgekeurd; een clausule overigens die niet bij iedere DBFMO wordt gehanteerd. Maar bij de Hoge Raad stond kwaliteit voorop, aldus Vincent Panhuysen. Wat getekend is, moest ook worden gebouwd. Als architect moest je dan ook sterk in je schoenen staan, wilde je afwijken van wat je had beloofd.

Typologische keuzen
In de eerste ronde maakte KAAN Architecten het schetsontwerp voor de gevel. Vrijwel direct daarop, nog tijdens de tenderfase, is door de architect overlegd met de gevelbouwer. In de vormdetails van de architect die laten zien hoe het eruit komt te zien, zijn immers de productieaspecten en praktische zaken nog niet voorzien. De architect beschouwt dit overleg met de toeleverancier in deze fase als pure winst.
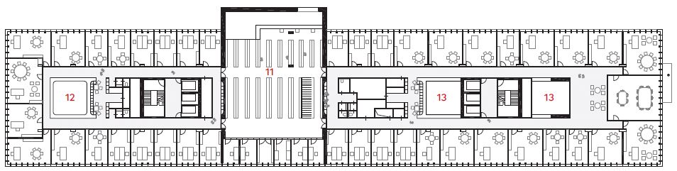
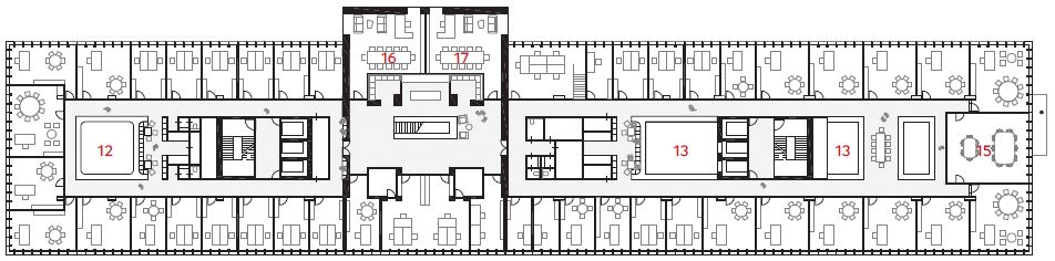
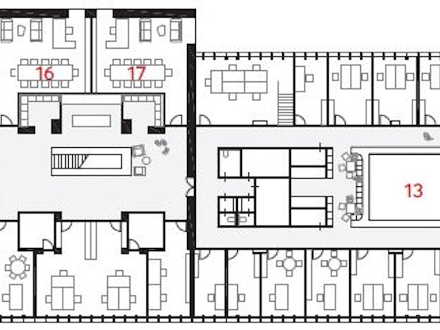
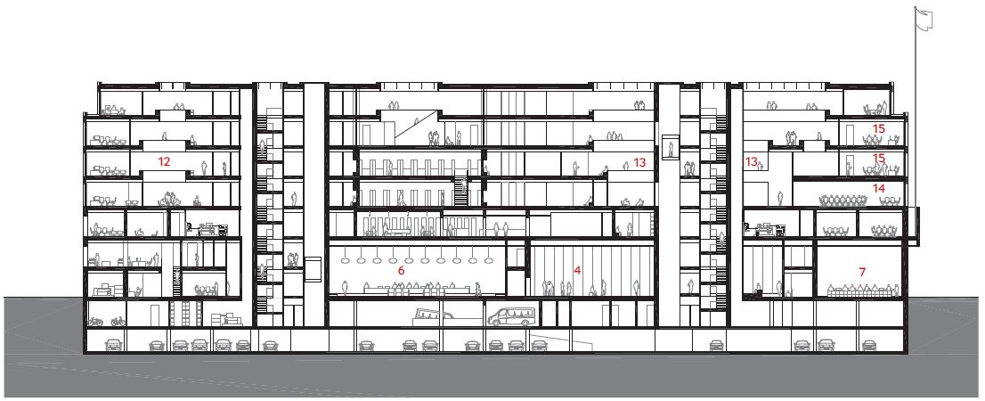
In het ontwerp is uitgegaan van een tweedeling: een onderbouw van twee verdiepingen voor het publieke gedeelte, met daarop een glazen opbouw van drie verdiepingen, waarachter de kantoren, het restaurant en de vergaderruimten liggen. Deze tweedeling is binnen de strak omschreven stedebouwkundige enveloppe gemaakt. Ze geeft uitdrukking aan de representatieve eisen die de uitschrijver op deze plek in de stad stelde, maar ze maakt tegelijkertijd ook een prettige werkomgeving voor de mensen in het gebouw mogelijk.
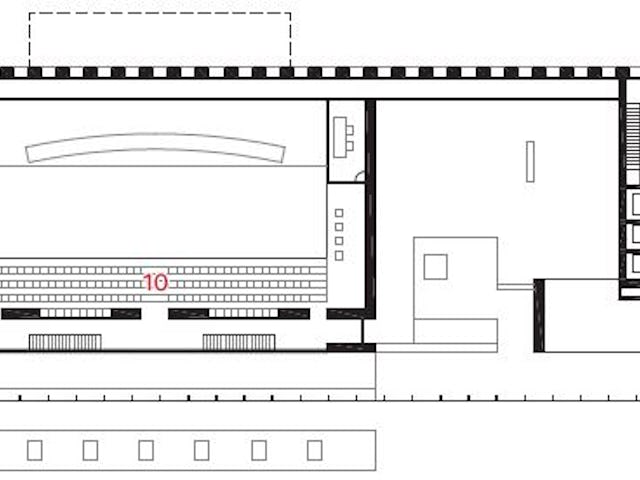
Bij het maken van deze puzzel liet de architect zich inspireren door de locatie aan het Korte Voorhout. De ligging tussen Malieveld, Lange Voorhout en Hofvijver voedde het idee om de begane grond open te werken. De Hoge Raad heeft over de volle lengte van het gebouw een adres gekregen. De wachtruimten die bij de zalen op de begane grond zijn gemaakt en de verkeersruimten zijn samengevoegd tot een grote foyer en niet tot een stelsel met meerdere foyers. De ruimte onder de kruinen van de platanen op de Korte Voorhout loopt over in de foyers.
Dat heeft geleid tot het idee om een sokkel te maken die je opensnijdt, aangevuld met een glazen kap daarboven. Volgende stap was om de verdiepingen met kantoren te ontsluiten vanaf de begane grond. Het glazen en het stenen gebouw zijn met elkaar verbonden door twee liftkernen die zijn ingepast tussen de zittingszalen. Vervolgens zijn op de verdiepingen de kantoren voor de raad, het parket en de president ingepast, evenals de bibliotheek en het restaurant. Het gebouw is feitelijk als een motorblok in elkaar gezet, zegt Kees Kaan.

Generiek en specifiek
Het licht en de soberheid die je terugvindt in die paleizen aan de Lange Voorhout, vormden voor de architect het uitgangspunt bij de inrichting van de kantoren voor raad, parket en president. Voor deze drie delen zijn verschillende vides gemaakt. Binnen het gebouw en achter de gevel zijn dus heel verrassend verschillende paleizen terug te vinden die zich onderscheiden door hun eigen ruimtelijkheid en materiaalgebruik.
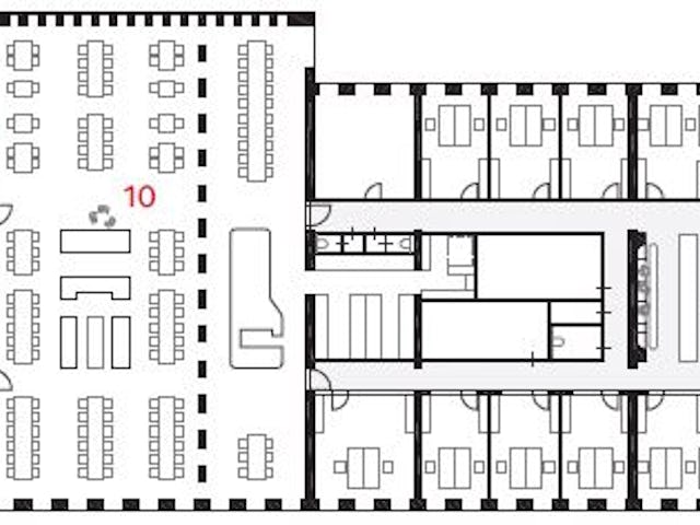
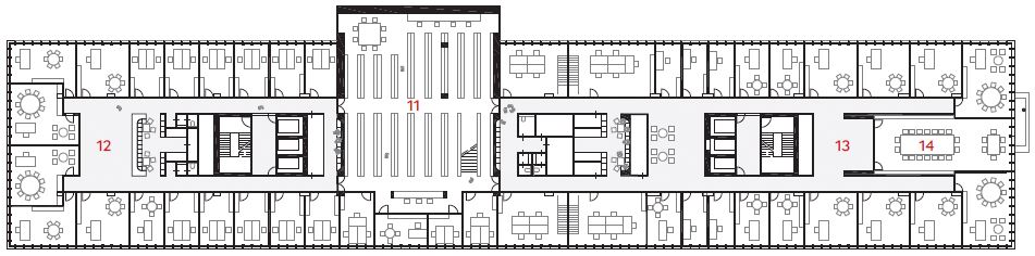
Het gebouw is generiek in zijn plattegrond maar specifiek in de doorsnede. De plattegrond is opgezet vanuit de eenduidige gevel die rondom het gebouw loopt. Aan de binnenzijde hiervan liggen de kantoren die standaard zijn ingericht. Constructie en installaties zijn zodoende overal dezelfde. Bijkomend voordeel is dat je vanuit deze flexibele opzet gemakkelijk andere indelingen kunt maken. In de middenzone vindt de verbijzondering plaats ten behoeve van de verschillende afdelingen en hun onderlinge communicatie. Dit maakte het ook mogelijk het gewenste onderscheid
aan te brengen tussen raad en parket.
Deze flexibiliteit werkt echter niet alleen naar de toekomst toe maar ook in het ontwerpproces. Zeker bij het begin van een ontwerpproces is nog lang niet zeker waar de lijnen exact zullen worden getekend. Voordat alles precies op zijn plek valt, verstrijkt veel tijd. Dergelijke wijzigingen laten zich gemakkelijk opvangen in een generieke plattegrond. Maar de ontwerpstrategie bood ook de bouwer de nodige voordelen. Terwijl in de twee onderste verdiepingen veel bouwtijd ging zitten, waren de drie bovenverdiepingen door hun generieke opzet redelijk eenvoudig te maken.

Ontwerp van de gevel
Voor de opbouw die op het zuiden is georiënteerd, is een klimaatgevel gemaakt die zich onderscheidt door een sterke abstractie. Anders dan het standaardkantoor waarin om de zeven meter een kolom achter de gevel staat, is hier gewerkt met een ragfijne verdeling van stalen kolommen om de negentig centimeter, die geheel zijn opgenomen in de gevelconstructie. Ze worden aan de buitenzijde afgedekt door profielen en zijn aan de binnenzijde brandwerend bekleed. Al deze aspecten van bezonning, geluidsbelasting en constructieve verdeling hebben bijgedragen aan de opbouw van de gevel met behulp van cassettes.
Dit systeem is om het gehele gebouw heen getrokken, zij het dat aan de noordgevel gewerkt is met enkele cassettes. Om privacy te garanderen is met lamellen gewerkt die inkijk voorkomen als je langs het gebouw loopt. Doeken voor de zon buiten en voor het licht binnen zorgen voor een nuancering van het beeld. In de cassettes zijn voegen opgenomen die schone lucht aantrekken en vervuilde lucht afvoeren. Bovendien is deze gevel dragend. Alles in de gevel heeft een functie.
De gevel is drie verdiepingen hoog en maakt dat je de verdiepingen niet voelt, waardoor de abstractie van de buitengevel verder toeneemt. De lamellen met een hoogte van drie verdiepingen zijn omkaderd met stalen vinnen en rusten op de stenen onderbouw. In deze onderbouw bevinden zich grote spanten waarop de dragende glazen gevel rust.

Nut en nadeel van het samenwerkingsmodel
Zowel architect als aannemer zijn zeer te spreken over het samenwerkingsmodel en over het feit dat bij de bieding al contractuele verplichtingen zijn aangegaan met de toeleveranciers, met name bij de meer risicovolle onderdelen in de bouw.
De aannemer was er zeer op gespitst om op deze prominente plek voor deze opdrachtgever een integraal project binnen te halen. Maar, zegt Cor Notenboom, we vonden het ook belangrijk om van ontwerp tot en met operatie betrokken te zijn. Groot voordeel daarvan is immers dat je daarmee verstoringen bij de aanbesteding voorkomt en zo aanzienlijke faalkosten vermijdt. Dat betekent dat niet alleen de architect en de bouwer aan een tafel zitten maar ook de schoonmaker en de gevelbouwer.
Volgens Notenboom kan de aannemer op deze manier een beter resultaat bereiken en meer toegevoegde waarde leveren voor de klant. Het vraagt wel standvastigheid van alle partijen die in het proces zijn betrokken. Natuurlijk is ook sprake van tegengestelde belangen. Het is daarom van essentieel belang dat de architect gedurende het gehele proces betrokken blijft. Architecten horen erop toe te zien dat alles volgens afspraak gebeurt en dat de beloften uit de dialoogfase standhouden.
De dialoog functioneert zo uiteindelijk als ontwerpinstrument. Er zijn verschillende typen gesprekken, zowel met het dialoogteam dat de opdrachtgever vertegenwoordigt, als met de architectuurjury waartoe de Rijksbouwmeester en de President van de Hoge Raad behoren en met wie je praat over ontwerpkeuzen. Minstens zo belangrijk zijn de expertmeetings die over technische deelonderwerpen als ventilatie en klimaat gaan. Als deze fase is afgesloten, start de uitvoering en zijn veranderingen nauwelijks nog mogelijk.
Renders laten een werknemer bijvoorbeeld zien hoe de privacy op zijn werkkamer is geregeld. Dergelijke tekeningen zijn in dit proces dan ook belangrijk, omdat veel partijen meekijken en niet iedereen technische tekeningen kan lezen. Andersom bieden ze ook uitkomst, omdat in de VO-fase nog niet alles op zijn plek staat. In een render kun je veel laten zien. Aan de ene kant wordt een architect gevraagd te visualiseren wat hij of zij belooft, terwijl het nog niet allemaal is getest. Dit toont het groeiende belang van renders, die anders dan veelal wordt gedacht, veel meer zijn dan mooie plaatjes en langzaam beginnen te functioneren als volwassen ontwerptekeningen.






































