Sportcampus Zuiderpark is ontstaan uit een samenwerking tussen Gemeente Den Haag, de Haagse Hogeschool en ROC Mondriaan. De gebruikers richten zich op sportbeoefening, -onderwijs en -wetenschap. Tegelijk heeft het gebouw ook een sociale functie. De opdrachtgevers stellen zich ten doel om sport in te zetten als drijver achter een gezonde maatschappij. Overdag wordt het gebouw gebruikt door de scholen en professionals, terwijl in avonden en weekenden amateurs sporten.

Programma
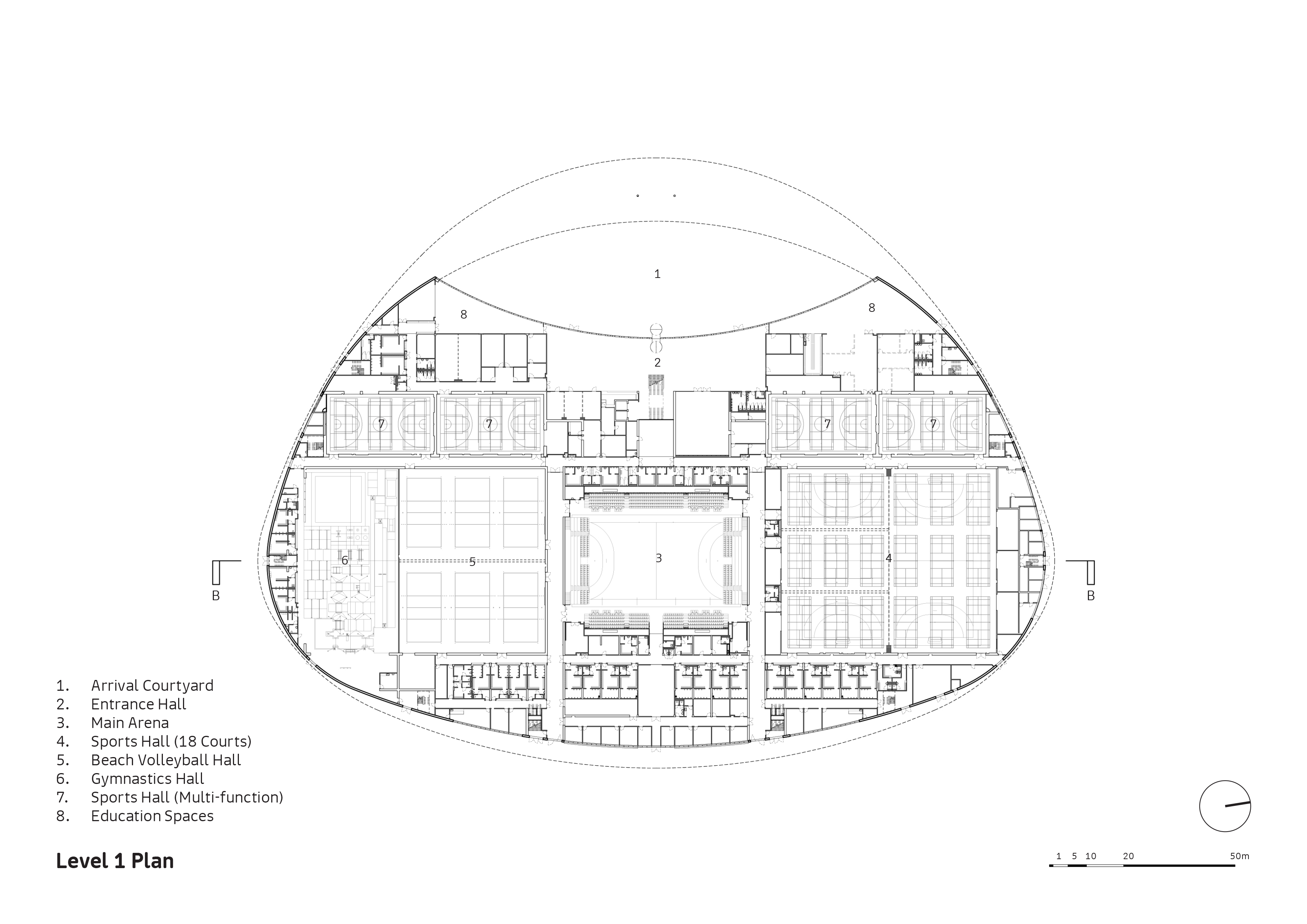
In het 33.000 vierkante meter grote complex liggen verschillende typen sportzalen. Centraal in het hart bevindt zich de arena met tribunes aan vier zijden. Daaromheen liggen multifunctionele sporthallen en zalen met een meer specifiek karakter, zoals de met zand gevulde zaal voor strandsport. Hier houdt een speciaal bevochtigingssysteem het zand op de juiste vochtigheid.

Volume
Vanwege de Rijksmonumentale status van het Zuiderpark, is veel aandacht besteedt aan de inpassing van het volume. Globaal volgt het gebouw de landschappelijke lijnen rond de locatie. Door de hoeken sterk af te ronden is het visueel verkleind. Doordat de grote zalen achterin het gebouw zijn gelegd, kon de entreezijde relatief laag worden uitgevoerd. Het hier gelegen voorplein dient als overgang tussen gebouw en park.

Beweging
In het gevelbeeld vormen beweging en activiteit de uitgangspunten. Opvallend is vooral het dakvolume dat als een doorgaand lint het gebouw bekroond. Dit is bekleed met gepolijst roestvrij staal waarin de lucht en het omgeving worden gereflecteerd. De kleur verandert afhankelijk van de lichtinval.

Duurzame techniek
Naast de compactheid van het volume spelen verschillende technieken een rol in de duurzaamheid. Zo is het dak uitgevoerd als warmteregulerend sedum dak, dat is aangevuld met zonnepanelen en -collectoren die voorzien in energie en warm water. Voor verwarming en koeling wordt gebruik gemaakt van een bodemwater warmtepomp.




