Het Zwemcentrum Rotterdam is gebouwd ter vervanging van Zwembad Charlois, dat niet meer aan de hedendaagse eisen voldeed. Consortium Hart van Zuid (Ballast Nedam en Heijmans) stelde tijdens de tenderfase voor om het naastgelegen deelgemeentekantoor te transformeren tot zwembad. Het gebouw stond destijds al deels leeg.

Transformatie
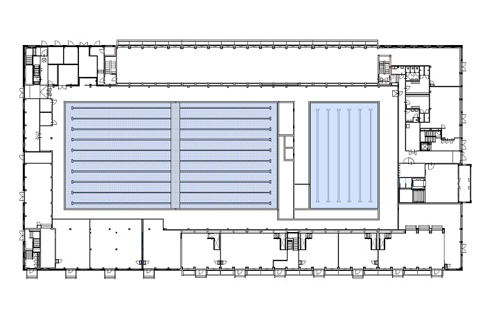
Het voormalige kantoor bestond uit twee parallelle vleugels verbonden door een centraal bouwdeel. Dit deel is gesloopt om tussen de twee vleugels plaats te maken voor de baden. Aan beide uiteinden zijn nieuwe bouwdelen toegevoegd die het nieuwe gebouw compleet maken. Het 50 meter wedstrijdbad heeft een lichte, sportieve sfeer en beschikt over een tribune voor 1000 toeschouwers. Achter een glazen wand ligt het 25 meter doelgroepbad, dat intiemer en donkerer is. Door middel van beweegbare bodems zijn beide baden multifunctioneel.

Gevel
"Het gebouw blijft aan de buitenzijde herkenbaar voor de wijk doordat in het ontwerp, bestaande karakteristieke delen in stand gehouden zijn tussen nieuwe gedeeltes", zo laat Kraaijvanger Architects weten. De bestaande gevel van het deelgemeentekantoor is gerenoveerd en verduurzaamd. De gevel van de uitbreiding is geïnspireerd op de bestaande gevel en industriële architectuur in Rotterdam Zuid. Deze bestaat uit ramen met verschillende grootten, gebaseerd op de gewenste daglichttoetreding en privacy.

Bruisend centrum
Naast de zwembaden en commerciële ruimtes aan de straatzijde, biedt het karakteristieke kantoor, allerlei voorzieningen zoals kleedkamers, kantoren, bergruimte, installaties. In plaats van een in zichzelf gekeerd complex wordt het gebouw een bruisend centrum. Het nieuwe zwemcentrum hoopt met de veelzijdige activiteiten en mogelijkheden meer en nieuwe zwemmers en andere bezoekers te trekken.

Hart van Zuid
Het transformatieproject Zwemcentrum is onderdeel van het project Hart van Zuid en is in 2016 gestart. Tevens is Kraaijvanger Architects verantwoordelijk voor de supervisie op het Masterplan Transformatie Rotterdam Zuid en voor de architectonische uitwerking van Ahoy, Plein op Zuid en het OV knooppunt.




