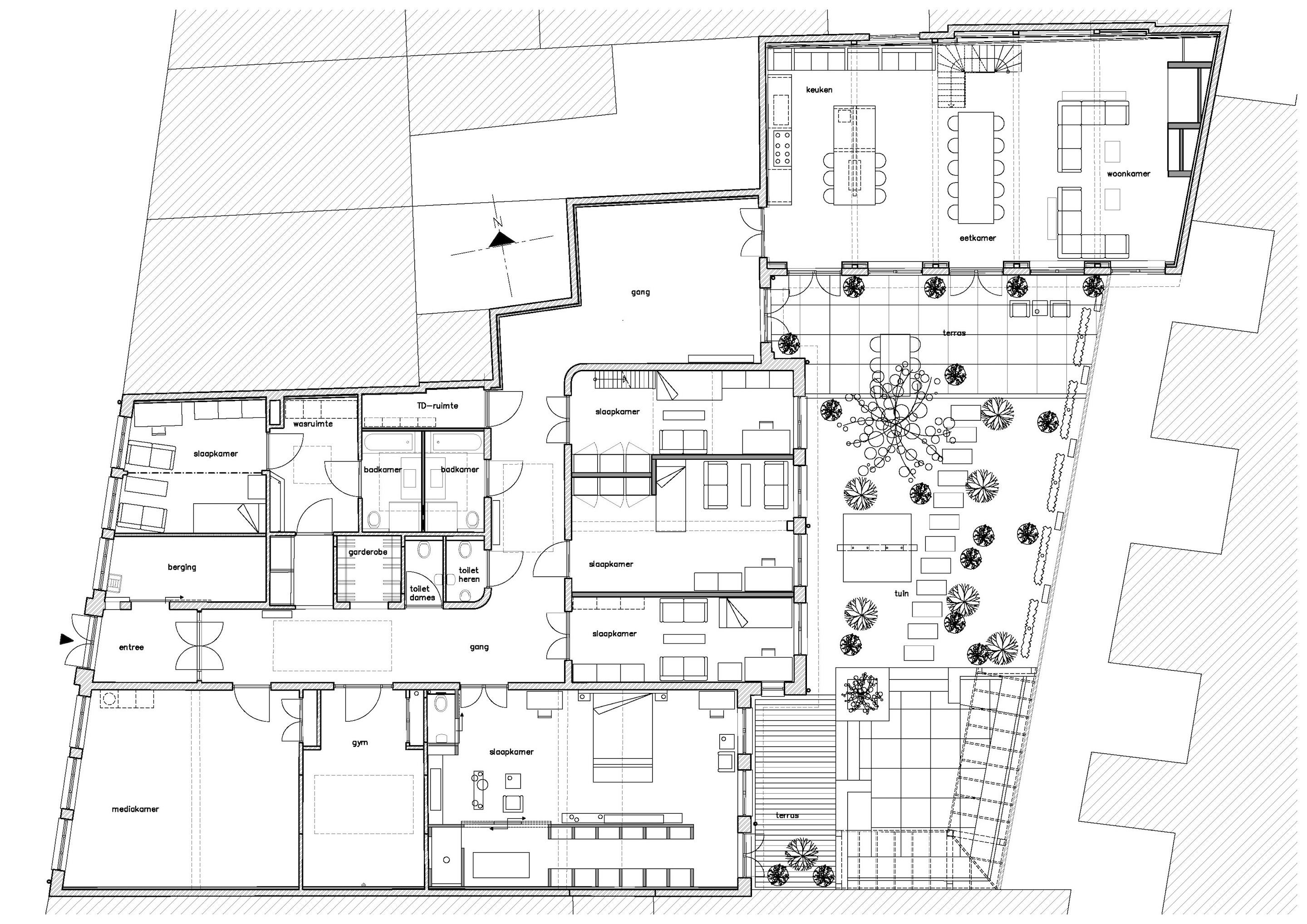
De structuur van het pand is ongewijzigd, alle hoofdruimtes hebben een passende functie gekregen. Vanuit de entree loopt een monumentale gang met twee knikken naar de achterzijde van de woning. Deze ontsluit alle ruimtes en is door het behoud van de tegelvloer en de lichtstraat zoveel mogelijk in de oorspronkelijke straat behouden.

foto: Brigitte Kroone
Woonruimte
Het grote woonvertrek ligt helemaal achterin de woning, onder het gastenverblijf. In de oude gymzaal liggen de keuken, eettafel en zithoek in elkaars verlengde. De houten ramen en deuren zijn hier vervangen door geïsoleerde, stalen profielen. Vanuit de woonkamer kijk je uit over het voormalige schoolplein, nu ingericht als tuin met een terras op het zuiden, een groene zone en een beschutte zitkuil onder de veranda.

Energie
Aan de andere gevel langs de tuin liggen de slaapkamers. De meeste dienende functies zijn samen onder gebracht aan de straatzijde van de woning. Zonnepanelen op het dak voeden de warmtepomp waar de woning mee wordt verwand en gekoeld. Daarbij wordt energie bespaard doordat de daken zijn vervangen en geïsoleerd en monumentenglas in de houten kozijnen is geplaatst.
foto: Brigitte Kroone




