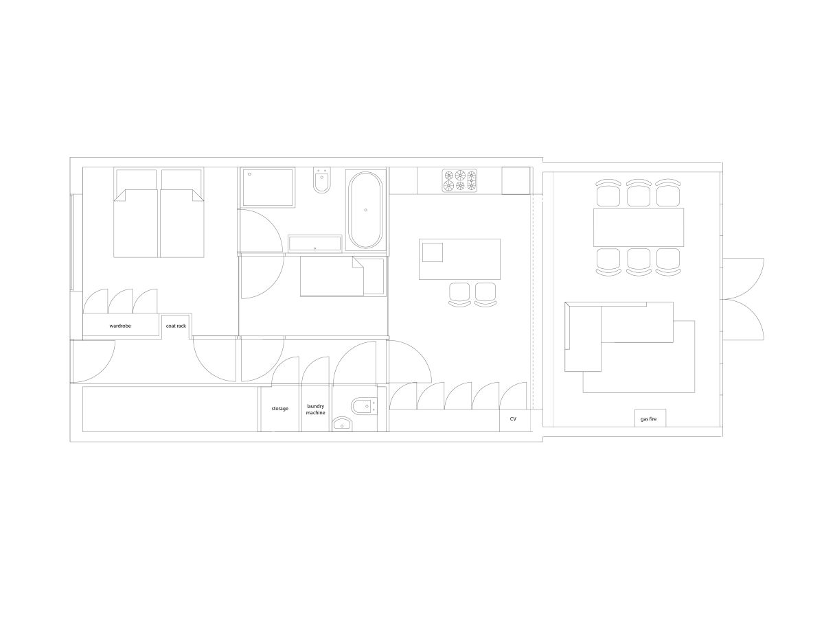
Het appartement heeft door het ingetogen materiaalgebruik een evenwichtig karakter gekregen. Alle kasten en opbergplekken zijn geïntegreerd in de wanden. De kastdeuren zijn vervaardigd van eikenhout met eenvoudige grepen. Het kookeiland van roestvast staal vormt hiermee een mooi contrast.
De facade van glas en staal is voortgezet over de volledige breedte van het appartement. Hierdoor wordt de tuin een vanzelfsprekende extensie van de woonruimte.
Het gebruik van glazen wanddelen geeft het appartement duidelijke zichtlijnen en optimaliseren het ruimtelijk effect. Daarnaast is op deze wijze elke ruimte in het appartement voorzien van daglicht.



