Het monumentale gebouw kreeg haar industriële karakter terug door verlaagde plafonds en binnenwanden te verwijderen. Binnen de robuuste kwaliteit en karaktervolle structuur is met een aantal gerichte ingrepen een nieuwe sfeer gecreëerd, die tegelijk recht doet aan de historie.

Flexibel
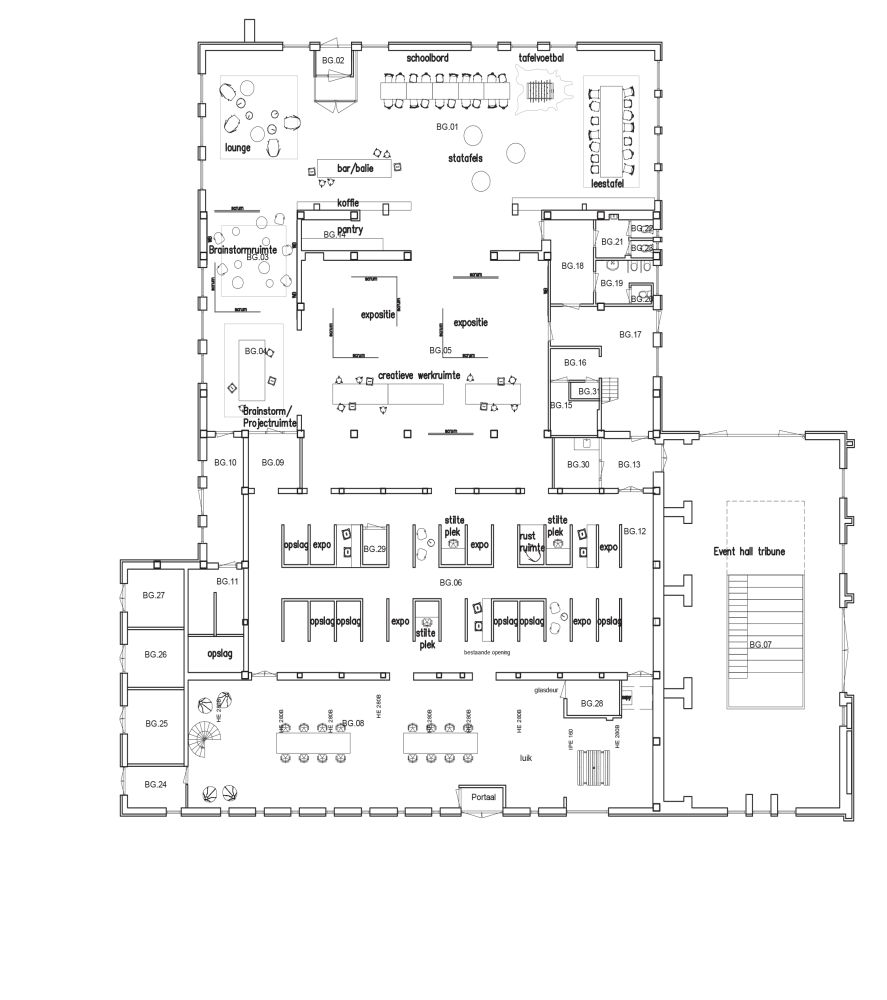
Het hart van het innovatiecentrum is het café, een flexibele ruimte voor werken, ontmoeten en ontspannen. De oude transformatorhal is getransformeerd tot ruimte voor presentaties, exposities en bijeenkomsten. Een knalgele tribune kan over de oude rails naar buiten worden geschoven om multifunctioneel gebruik mogelijk te maken.

Hergebruik
Daar waar vroeger transformatoren herrie stonden te maken, zijn nu stilte-, overleg- en belplekken gemaakt. In het interieur zijn veel meubels hergebruikt, aangevuld met 2e hands aangeschafte inrichtingselementen. Het verouderde gebouw heeft een ware metamorfose ondergaan naar een bijzondere werkomgeving om te inspireren, co-creëren en realiseren.




