Architect Tjeerd Bloothoofd beschrijft hoe hij in de schetsfase telkens een gewone versie en een ambitieuzere versie van de uitbouw voorlegde aan de opdrachtgevers. “In deze ‘wild cards’ zet ik op papier wat mijn intuïtie me zegt, niet wat wordt voorgeschreven.” Aangestoken door de visuals kreeg Bloothoofd het echtpaar zover dat ze kozen voor de gedurfdere versie.
Bovenop hun recreatiewoning uit de jaren vijftig pronkt nu een sculpturale opbouw, met twee slaapvertrekken en een wasmeubel. Van hieruit is het dak toegankelijk, zodat kan worden genoten van de ondergaande zon en het omringende bos.
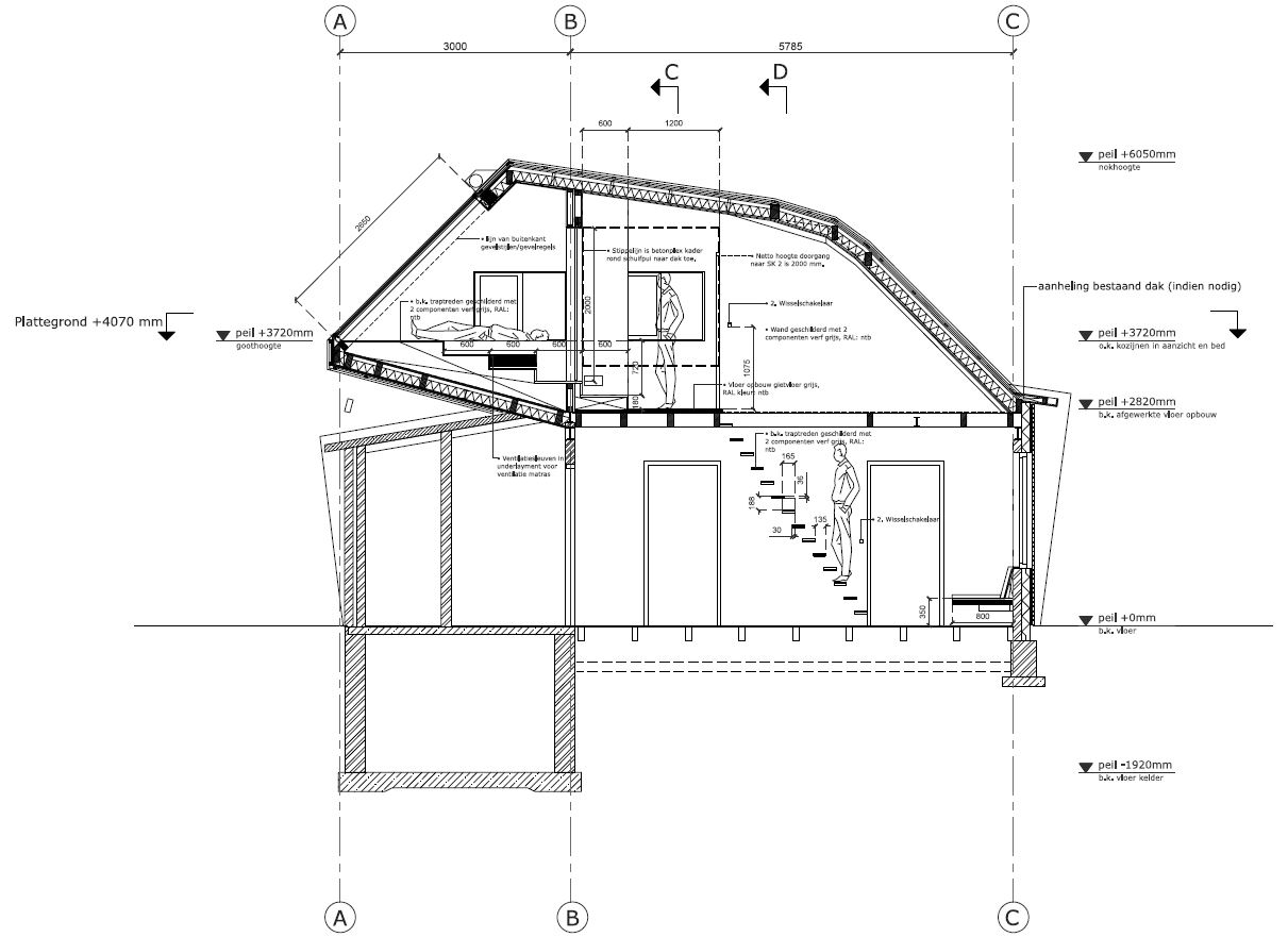
De dakopbouw bevind zich in het bladerendek en voelt aan als een boomhut. De sculpturale vorm past met zijn schuine daken en wanden precies binnen de kaders van het bestemmingsplan die een maximale goot- en nokhoogte voorschrijft.
De dakopbouw bestaat grotendeels uit houtskeletbouw, is geïsoleerd met vlaswol en is rondom bekleed met onbehandeld Lariks. Vanuit de bestaande woonkamer klim je via een hangende trap naar de compacte woninguitbreiding.
Om de opbouw te kunnen verbinden met de vakantiewoning moest een gat in het dak gezaagd worden van 6 bij 3 meter.
In een volgende ontwerpfase zal de bestaande woning duurzaam gerenoveerd worden. Het doel is een volledig autarkische woning te realiseren. Er komt een off-grid zonnesysteem, de verwarming gaat via een houtkachel en het afvalwater zal in de toekomst worden gezuiverd door een helofytenfilter.



