Voor het woningbouwproject werkte concrete aan de architectuur en het interieur van alle collectieve voorzieningen, zoals de entree en het clubhuis op de top. Samen met P&T architects en landschapsarchitecten ALN is de top ontworpen als serie tussenruimten. De vrije schakeling van volumes deelt het park en het clubhuis op in verschillende kleinere plekken.
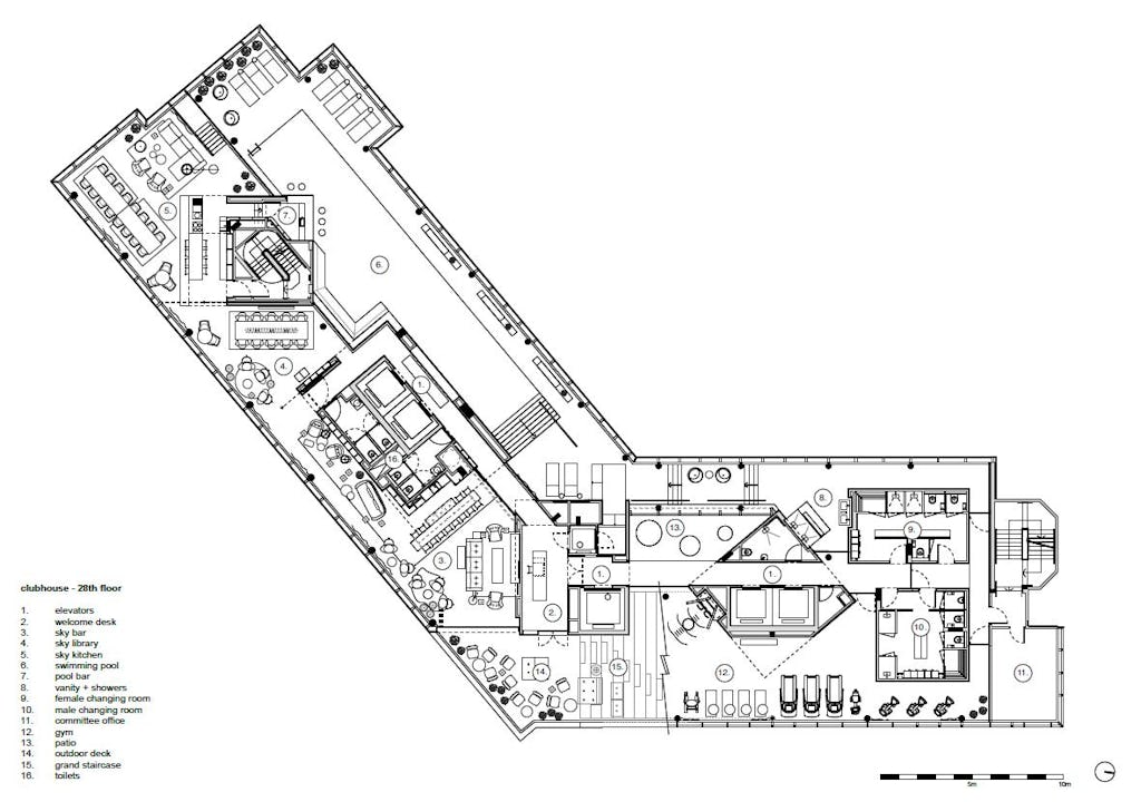
 plattegrond clubhuis, beeld: concrete
 plattegrond clubhuis, beeld: concrete
Clubhuis
De ruimtes in het clubhuis zijn open en transparant en worden slechts gescheiden door glazen wanden en schuifdeuren. In de lange vleugel liggen een keuken, bibliotheek en bar aan de oostzijde en een zwembad aan de westzijde. De korte vleugel beschikt over een fitness en een salon. Op het scharnierpunt van de vleugels ligt een buitendeck, dat middels een tribunetrap toegang biedt tot het dakpark. Deze trap wordt tevens gebruikt als buitenbioscoop.
 beeld: concrete
 beeld: concrete
Oase
Ook in het Skypark zijn de volumes dominant in het definiëren van de ruimte. Doordat de installaties hierin zijn weggewerkt, is het dak vrij van zichtbare techniek. De travertijn bekleding en beplanting creëren een haast rustiek beeld, dat sterk contrasteert met de stedelijke skyline.
 beeld: concrete
 beeld: concrete




