Lakerlopen is een voorstadbuurt van Eindhoven. Een grootscheepse stadsvernieuwingsoperatie stuitte op het ongenoegen van de bewoners en strandde door hun verzet in 2001. Het Amsterdamse stedenbouwkundige bureau must zocht met de betrokken partijen naar een nieuwe basis om op door te gaan. Het Rotterdamse bureau BIQ stadsontwerp van Hans van der Heijden en Rick Wessels deed de architectuur. Delen van de tuinwijk zijn gesloopt en vervangen door een nieuwe tuinwijk waarin alle maten wat groter zijn. Het vergt enige precisie om uit te leggen waarom dat voor de Nederlandse woningbouw en architectuur heuglijk is. Immers, niets in dit verhaal is opzienbarend.

Oud en nieuw
Wat de bewoners wilden waren straten waarin het wonen zich kon voortzetten. Daarom moesten de auto’s van de straat worden gehaald. De maat van de bouwblokken is vergroot, zodat in de binnenterreinen kon worden geparkeerd.Vanaf de straat vang je door de hekken een glimp op van de parkeerterreinen, omgord door de kroonlijst van de tuinbergingen waarachter niet zichtbaar de achtertuinen liggen. Op de stoep zijn de huizen verlengd met lage muren, waartussen her en der, met de rug naar de gevel, tuinstoelen staan. In de stegen zit tussen raam en straat niet meer dan een plantenbak, net als de gevels gemetseld in oranje, af en toe bruinig kleurende baksteen en afgedekt met rood beton. Alleen aan de Kempensebaan, de met bomenrijen uitgeruste hoofdstraat, komen de voordeuren direct uit op de straat. Dat volstaat om deze hoofdstraat enige vormelijkheid aan te meten.
Ook al is de straatkant soms wat informeler, en is de met parkeerterreinen gevulde binnenkant wat formeler, de publieke en de private ruimte zijn helder bepaald. De bouwblokken zijn zorgvuldig gesloten. De huizenrijen zijn op de hoeken met passtukken aaneengesmeed, net als in de oude tuinwijk. Elk bouwblok bestaat zowel uit oude als nieuwe woningen. Bij sommige oude is achteraan ook zo’n tuinberging opgetrokken. Ze zijn in een verbeterde tuinwijk
terechtgekomen, niet alleen op het niveau van de kavel overigens. Er zijn nu minder straten dan vroeger, en hun onderlinge verschillen zijn groter. De wijk is minder monotoon, de routes en de oriëntatie zijn duidelijker geworden. De constructieve wisselwerking tussen oud en nieuw komt duidelijk naar voren aan de Van Ostadenstraat, de verbrede, autoloze en dus het meest voor straatleven geschikte straat in de buurt, haaks op de Kempensebaan. Aan het verre einde van het perspectief, ingeleid door een vernauwing en ingelijst door stoepen en balkons, staat het poortgebouw van gemeentearchitect Louis Kooken, dat dateert uit de jaren twintig. Onder kruinen op rijzige stammen evoceert het bedaagde bouwwerk met groen geverfde glasroeden en kornissen een vagelijk landelijke afkomst. De strakke oranjerode woningen, ook al hebben de meesten een kap, zijn generaties van dat rurale karakter verwijderd, maar ze gunnen het oude poortgebouw het respect waar het op rekent.

Analoge stad
Aan de hand van een schilderij van Canaletto waarop zich rond niet gebouwde ontwerpen van Palladio een herkenbaar Venetië ontvouwde, ontwikkelde Aldo Rossi het begrip van de analoge stad.1 De verbeelding van de kunstenaar imiteert de geschiedenis die generaties ontwerpen opstapelt tot een door zijn wisselingen herkenbare plek. Aan de Van Ostadenstraat verschijnt de pas opgeleverde wijk als een analoog Lakerlopen.
“Architecten zouden niet alleen hun bijdrage moeten leveren aan het ontwerp van de toekomst, maar ook aan de ordening van het verleden”, schrijft Hans van der Heijden in het boek Architectuur in de kapotte stad, dat zowel een pleidooi is voor, als een handboek van behoedzame stadsvernieuwing. Anders dan bij Aldo Rossi interesseren hem niet zozeer de monumenten, maar de grote bouwstromen, zeg maar de vloed van woningbouw die de stad vult en die om een meer structurele, niet puur stilistische relatie met het verleden vraagt. “ Snijden in de historische erfenis (is) een daad van vormgeving”, aldus Van der Heijden.2

Hier wordt duidelijk wat men, buiten de concrete ongenoegens van de buurtbewoners om, kan verwijten aan de stadsvernieuwingsplannen die voor 2001 waren opgesteld. Hierin wordt Kookens relict door de in hun nieuwheid verzonken patiowoningen ernaast nauwelijks opgemerkt. De woningen van BIQ zijn daarentegen op typologisch vlak gemeengoed, maar hun nieuwheid is concreet afmeetbaar aan de tuinwijk, waarvan ze de van rurale ressentimenten ontvoogde telgen zijn. Verder is de keuze voor de Kleine Geschiedenis die een lokale, particuliere, gemuteerde, vertraagde of verdunde versie vormt van de Grote Geschiedenis, tevens een kritiek op een beroep dat nog altijd doet alsof er een avant-garde is.
Vocabulaire
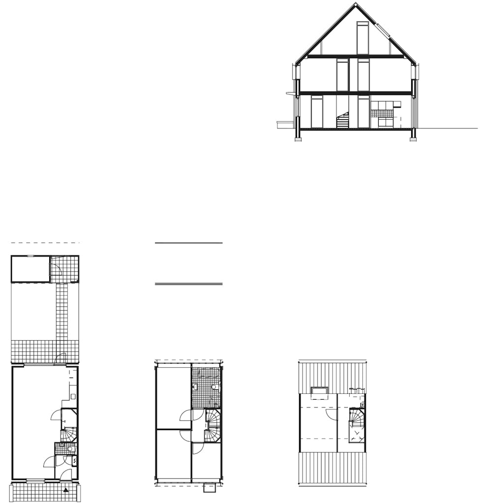
In het eerdere werk van BIQ wordt de woning in een rij vaak verbijzonderd, bijvoorbeeld door een kroonlijst die zich als een accolade om een dakkapel vouwt. De vormgeving van Lakerlopen gaat de andere kant uit. Aan de voorkant ondoorboorde dakvlakken en strookramen die als een fries boven deuren en ramen lopen, creëren lange bouwstroken waarmee straatruimtes zijn gecomponeerd en die zijn uitgerust met abrupte, rechtopstaande onderbrekingen. De fries verhult verschillen in de breedte, maar vergroot verschillen in de hoogte. Schaalcontrasten van hooguit één bouwlaag zijn opgerekt tot hun expressieve maximum. Een huis met fries en kap lijkt half zo hoog als een buur met drie gemetselde lagen in de gevel, een luifel boven een voordeur gaat zonder fries de hoek om als een overmaatse, laag door de steeg scherende kroonlijst die de huizen op schaal van de steeg brengt. Met dit eenvoudige, verbazingwekkend effectieve bouwkundige vocabulaire worden niet zozeer woningen of volumes, maar stedelijke ruimtes gecomponeerd. Architectuur maakt de publieke ruimte.

Dat Lakerlopen geen abstract dichtheidsmodel is, maar is ontwikkeld uit het concrete historische model van de tuinwijk, vertaalt zich in de inspiratiebronnen. Dankzij essentiële bouwkundige details kan de stroeve architectuur worden toegeëigend als een huis, zoals Heinrich Tessenow het in gebouwen en tekeningen talloze keren voordeed. Met de lange horizontale lijnen is J.J.P. Ouds Kiefhoek niet veraf. Het stadsbeeld volgt op de letter de raad van diens vriend W.M. Dudok, ontwerper van het Witte Dorp in Eindhoven, dat “blokken met platte daken tot contrapunt (worden) in een omgeving bestaande uit huizen met een steil dak.”3 Dat deze respectabele, met overtuiging ingezette referenties niet ouwelijk zijn, maar juist jeugdig lijken, toont aan dat architectuur geen millimeterspurt met de Zeitgeist is, maar gaat voor de lange duur (‘longue durée’).
Van der Heijden werkte ooit bij Meccanoo toen dat bureau Alvaro Siza in Den Haag bijstond bij zijn opmerkelijke tussenkomst in de Nederlandse volkswoningbouw. Van Siza komt de intuïtie voor relevant historisch stadsmateriaal, maar diens nadrukkelijke fragmentatie is Van der Heijden vreemd gebleven, op één plaats na, het grote kavel waar Lakerlopen aan de randweg raakt en de flats zich achter een glazen geluidsscherm terugtrekken. Hier ontstaat een schermutseling en een vergelijk, dat neerkomt op een gedeeld adres: de toegang bevindt zich aan de laan, terwijl de balkons naar de tuinwijk kijken. Dat liep goed af. Kookens tijd is lang voorbij. De tuinwijk van nu is al generaties lang geen idyllisch alternatief meer voor de boze stad, maar maakt er gewoon deel van uit.
NOTEN
1 Aldo Rossi, L’Architettura della Città, Marsilio Editori, Padua, 1969
2 Hans van der Heijden, Architectuur in de kapotte stad, Uitgeverij THOTH, Bussum, 2008
3 Geciteerd in: Herman van Bergeijk, Willem Marinus Dudok, 010 Publishers, Rotterdam, 2001



